Thông tin dự án:
- Họ và tên khách hàng: Anh Quỳnh
- Diện tích: 6x20m
- Loại hình: Thiết kế nhà phố 4 tầng diện tích 6x20m
- Địa chỉ: Bùi Văn Ninh, Thành phố Phan Rang – Tháp Chàm, Ninh Thuận
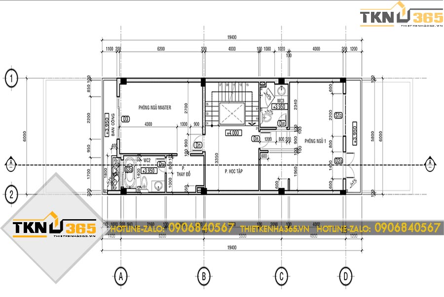
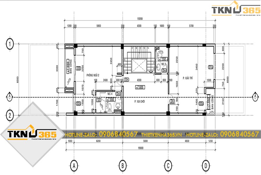
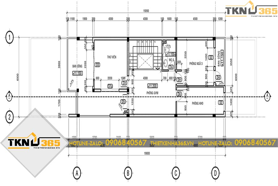
Mẫu thiết kế nhà phố 6 x 20 m rất nổi bật với hệ mái xếp tầng độc đáo. Ngôi nhà bốn tầng được các kiến trúc sư thiết kế với các đường nét hiện đại và khoẻ khoắn. Ngoài phần mái chéo, công trình còn có điểm nhấn đặc biệt đó chính là phần không gian mở xuyên suốt các tầng, vừa tạo điểm nhấn, vừa cung cấp các giải pháp giúp cho ngôi nhà thêm thoáng khí.






Liên hệ ngay với Công Ty Thiết Kế Nhà 365 để nhận bảng giá thi công nhà phố trọn gói và được tư vấn miễn phí từ Kiến Trúc Sư!
Công Ty TNHH Thiết Kế Nhà 365
- Địa chỉ office: 294 Lê Trọng Tấn, Phường Tây Thạnh, Quận Tân Phú, Thành Phố Hồ Chí Minh
- Email: thietkenha365@gmail.com
- Số điện thoại: 0906840567 – Mr. Thắng
- Website: https://demo.thietkenha365.vn/










