Thiết kế nội thất nhà phố tân cổ điển cho gia đình anh Đồng tại Ninh Thuận đã được thực hiện với sự tâm huyết và kiến thức sâu rộng của anh Đồng. Từ nguồn cảm hứng và đam mê của anh, chúng tôi đã xây dựng một ngôi nhà 4 tầng vớikhông gian sống đẳng cấp và đầy nghệ thuật. Mời quý vị cùng khám phá sự hòa quyện giữa phong cách tân cổ điển và cá tính riêng của gia đình anh Đồng.
Thông tin dự án:
- Họ và tên khách hàng: Anh Đồng
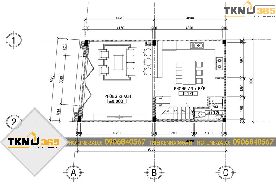
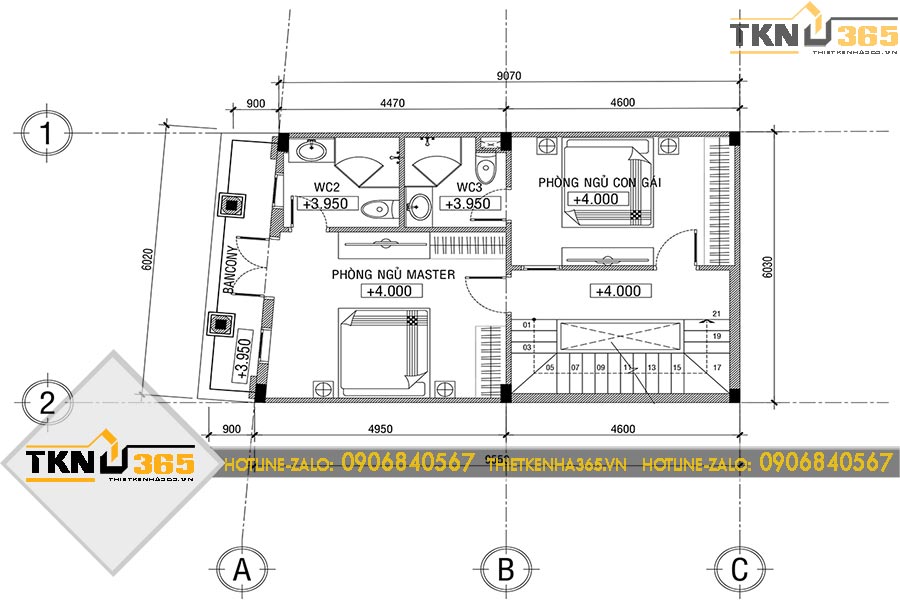
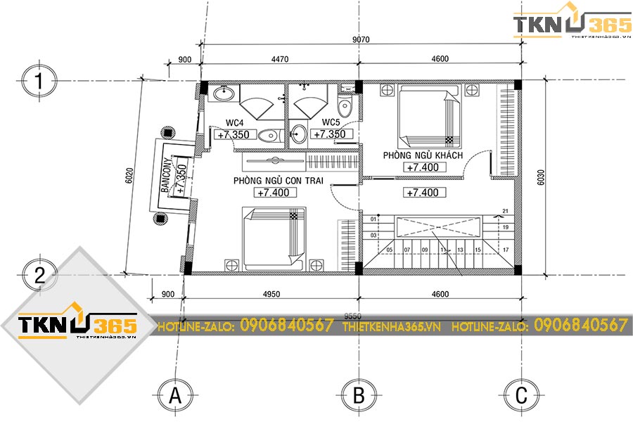
- Diện tích: 6x9.5m
- Loại hình: Thiết kế nhà mặt tiền 6m
- Địa chỉ: Thnah Sơn, Thành phố Phan Rang – Tháp Chàm, Ninh Thuận






Liên hệ ngay với Công Ty Thiết Kế Nhà 365 để nhận báo giá thi công nhà phố tphcm trọn gói và được tư vấn miễn phí từ Kiến Trúc Sư!
Công Ty TNHH Thiết Kế Nhà 365
- Địa chỉ office: 294 Lê Trọng Tấn, Phường Tây Thạnh, Quận Tân Phú, Thành Phố Hồ Chí Minh
- Email: thietkenha365@gmail.com
- Số điện thoại: 0906840567 – Mr. Thắng
- Website: https://demo.thietkenha365.vn/










