Bạn đã từng cầm bản vẽ kiến trúc và cảm thấy bối rối, không biết nên bắt đầu từ đâu? Bạn muốn tìm hiểu cách đọc bản vẽ nhà để theo dõi và giám sát công trình hiệu quả? Hãy cùng Thiết kế nhà 365 tìm hiểu cách đọc bản vẽ xây dựng đơn giản, dễ nắm bắt, giúp bạn hình dung rõ ràng hơn về tổ ấm của mình.
Bản vẽ xây dựng là gì? Có những loại nào?
Bản vẽ xây dựng là gì?
Bản vẽ xây dựng là tập hợp các bản vẽ kỹ thuật mô tả chi tiết hình dáng, kích thước, cấu tạo và thông số kỹ thuật khác của công trình. Đây là cơ sở quan trọng để các bên liên quan hiểu chính xác yêu cầu thiết kế nhà để triển khai thi công, giám sát, kiểm tra và nghiệm thu công trình theo đúng tiêu chuẩn.
Bản vẽ xây dựng không chỉ là căn cứ giúp lập dự toán ngân sách chính xác, mà còn là tài liệu bắt buộc khi nộp hồ sơ xin cấp phép xây dựng. (Theo Thư viện pháp luật).

Các loại bản vẽ xây dựng phổ biến
Bản vẽ mặt bằng tổng thể
Bản vẽ mặt bằng tổng thể là hình chiếu bằng (từ trên nhìn xuống) của toàn bộ công trình trên khu đất xây dựng. Bản vẽ này thể hiện bố cục tổng quan, vị trí ngôi nhà, đường đi, cây cối và các hạng mục phụ trợ… Đây là cơ sở quan trọng để thiết kế cấu trúc, bố trí không gian hợp lý, đảm bảo rằng công trình hài hòa với địa hình, bối cảnh xung quanh.

Bản vẽ kiến trúc
Bản vẽ kiến trúc mô tả hình dáng, bố cục không gian và kích thước tổng thể của công trình. Đây là loại bản vẽ cơ bản, đóng vai trò nền tảng để triển khai các bản vẽ kỹ thuật khác. Một bộ bản vẽ kiến trúc thường bao gồm:
- Bản vẽ phối cảnh: Thể hiện công trình ở dạng 3D trực quan, sinh động
- Bản vẽ mặt bằng: Trình bày bố cục phân chia không gian, vị trí và kích thước các phòng theo từng tầng.
- Bản vẽ mặt đứng: Miêu tả hình dáng bên ngoài của công trình, bao gồm mặt tiền và các mặt bên.
- Bản vẽ mặt cắt: Thể hiện các mặt cắt ngang, dọc vuông góc với mặt đất, mô tả chi tiết cấu trúc bên trong và kích thước các thành phần theo chiều cao.
- Bản vẽ chi tiết cấu tạo kiến trúc: Bao gồm tường, cột, dầm, sàn, cửa, mái và các mối nối…

Bản vẽ kết cấu
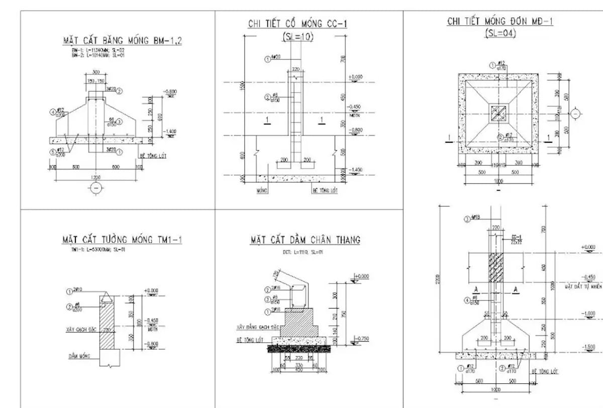
Bản vẽ kết cấu thể hiện chi tiết hệ thống chịu lực của công trình như móng, cột, dầm, sàn… quyết định trực tiếp đến độ an toàn và tuổi thọ của ngôi nhà. Vì vậy, chúng cần được tính toán và thiết kế cẩn thận bởi kỹ sư kết cấu có chuyên môn. Thường bao gồm:
- Bản vẽ móng, mái
- Bản vẽ cột, dầm, sàn, cầu thang cho từng tầng
- Các bản vẽ chi tiết cấu kiện

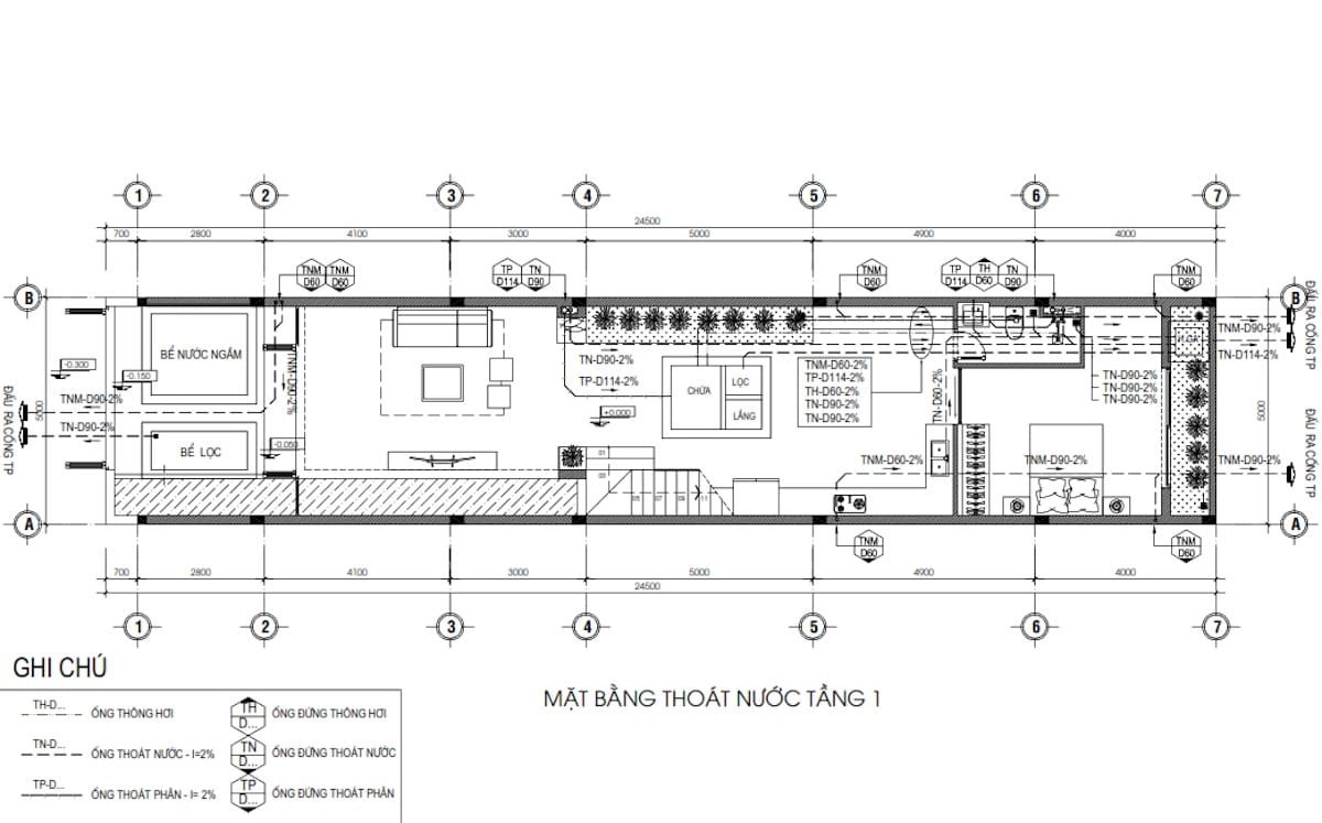
Bản vẽ điện nước (MEP)
Bản vẽ thiết kế kỹ thuật thi công điện nước giúp đảm bảo hệ thống hoạt động an toàn, đáp ứng nhu cầu sử dụng – vừa đơn giản, tiện nghi, vừa kinh tế và thẩm mỹ.
- Bản vẽ hệ thống cấp thoát nước: Thể hiện đường ống, van, vị trí thiết bị vệ sinh.
- Bản vẽ hệ thống điện: Bao gồm đường dây, ổ cắm, công tắc, đèn chiếu sáng và thiết bị điện khác.
- Bản vẽ hệ thống PCCC: Minh họa vị trí và kết cấu hệ thống phòng cháy chữa cháy trong toàn bộ công trình.


Tầm quan trọng của việc hiểu bản vẽ
Đọc bản vẽ xây dựng đúng cách và hiểu tường tận giúp công trình được triển khai suôn sẻ, tiết kiệm thời gian, chi phí và nâng cao chất lượng. Một số lợi ích nổi bật có thể kể đến như:
- Giao tiếp hiệu quả hơn: giúp gia chủ dễ dàng trao đổi, thảo luận và làm việc với các bên liên quan.
- Tính toán và kiểm soát chi phí hiệu quả: nắm được khối lượng vật tư, nhân công cần thiết, hạn chế lãng phí.
- Giám sát thi công chính xác: Kiểm tra việc thi công có đúng theo thiết kế, tránh sai sót hay phát sinh chi phí sửa chữa.
- Hiểu rõ kết cấu và hệ thống điện nước: Hỗ trợ sử dụng công trình, bảo trì và sửa chữa một cách an toàn, hiệu quả.

Xem thêm: 8 nguyên tắc thiết kế kiến trúc nhà ở đúng tiêu chuẩn
Cách đọc bản vẽ xây dựng cho người mới bắt đầu
Nắm vững ký hiệu và quy ước chung
Ký hiệu bản vẽ xây dựng
Bản vẽ xây dựng sử dụng nhiều ký hiệu chuyên ngành để truyền tải thông tin một cách ngắn gọn và chính xác. Việc nắm vững các ký hiệu phổ biến sẽ giúp đọc hiểu bản vẽ dễ dàng hơn. Dưới đây là một số ký hiệu bản vẽ xây dựng cơ bản:




Tỷ lệ bản vẽ
Tỷ lệ bản vẽ là tỷ số giữa kích thước của một vật thể biểu diễn trong bản vẽ với kích thước thực tế của vật thể. Thông thường, tỷ lệ được ghi trong khung tên của bản vẽ. Tỷ lệ bản vẽ được chia thành ba loại:
- Tỷ lệ thực tế 1:1
- Tỷ lệ thu nhỏ 1:X (X là 2, 5, 10, 20, 25, 50, 100, 200, 500,…)
- Tỷ lệ phóng to X:1 (X là 2, 5, 10, 20, 50)
Kích thước bản vẽ
Kích thước thường không được ghi kèm đơn vị, điều này có thể gây nhầm lẫn trong quá trình đọc bản vẽ xây dựng. Để đảm bảo tính chính xác và thống nhất, Tiêu chuẩn quốc gia TCVN 5671:2012 quy định cụ thể như sau:
- Kích thước các chiều được ghi bằng mm
- Cao độ được ghi bằng m
- Diện tích ghi bằng m2, nếu đo bằng đơn vị khác cần được ghi chú rõ trong mỗi bản vẽ.
Ngoài ra, các kích thước trên bản vẽ luôn là kích thước thực tế của vật thể

Đọc từ tổng quan đến chi tiết
Khi làm việc với hồ sơ thiết kế thi công, bạn có thể bắt đầu bằng việc xem bản vẽ tổng mặt bằng để nắm bắt tổng thể ngôi nhà: bố cục, vị trí, hình dáng, kích thước, diện tích, cao độ các phòng và giao thông trong nhà. Sau đó, mới đi sâu vào các bản vẽ kiến trúc, tiếp đến là bản vẽ kết cấu và hệ thống MEP để dễ dàng hình dung và đối chiếu hơn.
Trình tự đọc bản vẽ xây dựng cụ thể có thể thực hiện theo các bước sau:
- Khung tên: Kiểm tra tên gọi và tỷ lệ bản vẽ.
- Hình biểu diễn: Xác định loại hình biểu diễn (mặt bằng, mặt đứng, mặt cắt…).
- Các bộ phận: Xem xét số phòng, số cửa đi, cửa sổ và các bộ phận khác.
- Kích thước: Đọc kích thước tổng thể và kích thước chi tiết từng bộ phận.

Sử dụng màu sắc và ghi chú để dễ hiểu hơn
Khi đọc bản vẽ xây dựng, việc sử dụng bút màu đánh dấu sẽ giúp bạn phân biệt các khu vực, hệ thống và chi tiết một cách trực quan, dễ nhớ hơn. Đồng thời, ghi chú nhanh các thông tin quan trọng như kích thước, cao độ, vật liệu hay các điểm cần lưu ý trực tiếp trên bản vẽ sẽ hỗ trợ việc theo dõi và đối chiếu dễ dàng, hạn chế nhầm lẫn.

Xem thêm: Làm nền nhà bếp cao hơn phòng khách: Ưu nhược điểm & 5+ lời khuyên từ chuyên gia
Những sai lầm thường gặp khi đọc bản vẽ xây dựng
Dưới đây là một số lỗi phổ biến mà người mới thường mắc phải khi đọc bản vẽ xây dựng:
- Bỏ qua tỷ lệ: Chỉ nhìn vào kích thước mà không kiểm tra tỷ lệ bản vẽ, dẫn đến việc đo đạc và ước lượng sai lệch kích thước thực tế.
- Hiểu sai ký hiệu: Các ký hiệu kỹ thuật có thể trông giống nhau nhưng mang ý nghĩa khác biệt, cần đối chiếu kỹ phần chú thích để tránh nhầm lẫn.
- Không đối chiếu các bản vẽ: các bản vẽ kiến trúc, kết cấu, kỹ thuật đều bổ sung thông tin cho nhau. Việc chỉ đọc một bản vẽ riêng lẻ dễ dẫn đến sai sót.
- Không đọc kỹ ghi chú của kiến trúc sư hoặc kỹ sư: dễ bỏ lỡ những hướng dẫn và thông tin quan trọng.

Xem thêm: 10+ cách lấy ánh sáng cho phòng ngủ – Sâu giấc ngủ ngon
Mẹo giúp người không chuyên đọc bản vẽ dễ dàng hơn
Việc đọc bản vẽ xây dựng sẽ trở nên đơn giản hơn nếu áp dụng một số mẹo sau đây:
- Tham khảo bản vẽ thực tế: Bắt đầu từ các công trình nhỏ để làm quen với ký hiệu, tỷ lệ, đơn vị đo và cách trình bày.
- Đọc kỹ các ghi chú, thuyết minh: Giúp nắm bắt nhanh các chi tiết quan trọng
- Hỏi ý kiến chuyên gia: Tham khảo kỹ sư hoặc kiến trúc sư khi gặp ký hiệu hoặc chi tiết chưa rõ.
- Sử dụng các phần mềm hỗ trợ: FreeCAD, Autodesk Viewer, CAD Viewer… giúp xem bản vẽ trực quan, dễ hình dung không gian và hình dáng tổng thể.
- Luyện tập thường xuyên: Đọc bản vẽ đều đặn để quen mắt, dần dần sẽ tự tin nắm bắt các chi tiết kỹ thuật.

Tham khảo: 10 Lưu ý khi ký hợp đồng xây dựng nhà ở không thể bỏ qua
Câu hỏi thường gặp (FAQ)
- Bản vẽ xây dựng có khó đọc không?
Với người không chuyên, bản vẽ xây dựng có thể hơi khó đọc do chứa nhiều yếu tố kỹ thuật. Tuy nhiên, người mới hoàn toàn có thể đọc hiểu được nội dung chính của các bản vẽ bằng cách tìm hiểu kiến thức cơ bản và thực hành thường xuyên.
- Người không chuyên có thể tự đọc bản vẽ để giám sát thi công không?
Có. Người không chuyên có thể đọc các bản vẽ cơ bản để giám sát tổng quan tiến độ thi công. Để hiểu sâu hơn về kỹ thuật, kết cấu, nên nhờ kiến trúc sư hoặc kỹ sư hỗ trợ.
- Đọc bản vẽ xây dựng có cần phần mềm đặc biệt không?
Không bắt buộc. Bạn có thể đọc bản vẽ xây dựng trực tiếp trên giấy. Tuy nhiên, sử dụng phần mềm như AutoCAD DWG Viewer, Mini CAD Viewer, FreeCAD… sẽ rà soát chi tiết, so sánh và đối chiếu các bản vẽ dễ dàng hơn.
- Làm sao phân biệt bản vẽ kiến trúc và bản vẽ kết cấu?
Bản vẽ kiến trúc mô tả hình dáng, vị trí, kích thước các không gian. Trong khi bản vẽ kết cấu tập trung vào phần chịu lực của công trình như móng, mái, cột, dầm, sàn…
- Có khóa học ngắn hạn nào giúp đọc bản vẽ nhanh chóng không?
Có. Hiện có nhiều khóa học hướng dẫn đọc bản vẽ xây dựng online hoặc trực tiếp, thường kéo dài từ vài buổi đến vài tuần. Những khóa này giúp người học nắm vững kỹ năng đọc bản vẽ cơ bản, bóc tách khối lượng và ứng dụng vào giám sát công trình thực tế.

Tóm lại, đọc bản vẽ xây dựng là kỹ năng mà bất kỳ gia chủ nào cũng có thể học hỏi, không còn là “ngôn ngữ riêng” của dân kỹ thuật. Việc hiểu bản vẽ mang lại sự chủ động trong quá trình làm nhà, giảm thiểu sai sót và giám sát công trình hiệu quả. Bắt đầu từ kiến thức cơ bản, luyện tập với bản vẽ đơn giản sẽ giúp bạn tiến bộ nhanh chóng và tăng sự tự tin. Như vậy, Thiết Kế Nhà 365 vừa chia sẻ chi tiết cách đọc bản vẽ xây dựng nhằm giúp bạn hiểu rõ hỡn về công dụng và chức năng của từng bản vẽ và thành phần bên từ đó hiểu rõ công năng căn nhà để có hướng điều chỉnh nếu chưa phù hợp.










