Bạn đang muốn tìm kiếm một mẫu nhà đẹp 4 tầng 4x16m lý tưởng cho tổ ấm của mình nhưng chưa tìm được mẫu thiết kế nào cho phù hợp. Bởi vì bạn đang cần một ngôi nhà có ngoại thất bắt mắt, bố trí mặt bằng công năng phù hợp và không gian nội thất tiện nghi, hiện đại. Đừng lo lắng, trong bài viết hôm nay, Thiêt Kế Nhà 356 sẽ giới thiệu đến quý bạn đọc một mẫu nhà 4 tầng 4x16m đẹp, tiện nghi, chi phí cực thấp hiện đang được các kiến trúc sư nổi tiếng đánh giá cao và nhiều chủ đầu tư ưa chuộng.
Phối cảnh ngoại thất nhà 4 tầng 4x16m
Đây là một mẫu thiết kế nhà 4 tầng 4x16m mang vẻ đẹp trẻ trung, hiện đại phù hợp với mong muốn và gu thẩm mỹ của gia chủ. Việc thiết kế một ngôi nhà có diện tích hẹp chỉ 64m2 mà vẫn đáp ứng được các tiêu chí về thẩm mỹ, công năng sử dụng là điều không hề đơn giản. Tuy nhiên, điều này đã không làm khó được đội ngũ kiến trúc sư của Thiết Kế Nhà 365. Họ đã phát huy hết tài năng của mình để mang đến một mẫu thiết kế nhà 4 tầng có phối cảnh ngoại thất cực kỳ đẹp mắt.
Thông tin về mẫu nhà phố:
- Kết cấu: 4 tầng
- Diện tích xây dựng: 4 x 16 = 64m2
- Thời gian hoàn thiện ngôi nhà: khoảng 4 tháng
- Phong cách kiến trúc: Nhà mái bằng theo phong cách hiện đại.
Mẫu nhà này có mái bằng, được thiết kế theo phong cách hiện đại. Kiến trúc sư đã chọn cho ngôi nhà tông màu sơn trắng tinh khôi, sang trọng. Cạnh bên của ngôi nhà và các góc cửa đều được bo tròn một cách nhẹ nhàng, tinh tế tạo nét đẹp mềm mại trong kiến trúc.
Bên cạnh đó, để tạo được sự thông thoáng và tận dụng ánh sáng tự nhiên triệt để cho ngôi nhà, hệ thống cửa đều có kích thước lớn và được làm bằng vật liệu kính cường lực trong suốt. Bên trong lớp kính là bộ rèm cửa để gia chủ có thể điều chỉnh ánh sáng một cách chủ động hơn. Ban công của ngôi nhà được bố trí một số chậu cây cảnh để làm tăng giá trị thẩm mỹ và mang đến không gian sống xanh cho gia đình.

Phối cảnh mặt tiền của mẫu nhà đẹp 4 tầng 4x16m
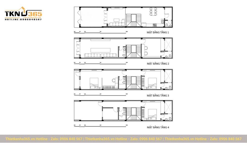
Bố trí công năng nhà 4 tầng 4x16m
Mặc dù ngôi nhà có diện tích khá hẹp nhưng các kiến trúc sư đã có cách bố trí các khu vực chức năng một cách thông minh vừa mang đến sự tiện nghi trong sử dụng vừa đáp ứng đầy đủ các nhu cầu sinh hoạt của tất cả các thành viên trong gia đình.
Cụ thể mặt bằng công năng của ngôi nhà 4 tầng 4x16m được bố trí cụ thể như sau:
- Tầng 1: Ở tầng này các kiến trúc sư bố trí một khoảng sân rộng, đi sâu vào là phòng khách, tiếp theo là nhà bếp kết hợp phòng ăn và cuối cùng là một nhà vệ sinh chung.
- Tầng 2: Ở tầng này các kiến trúc sư bố trí một phòng sinh hoạt chung, một phòng học và 2 nhà vệ sinh chung.
- Tầng 3: Tầng 3 được bố trí bao gồm 2 phòng ngủ, 1 WC chung và 1 WC riêng.
- Tầng 4: Ở tầng 4 sẽ được bố trí thêm 1 phòng ngủ, 2 WC, 1 phòng kho và sân thượng.

Mặt bằng công năng 4 tầng của ngôi nhà
Phối cảnh nội thất hiện đại nhà 4 tầng 4x16m
Đối với những ngôi nhà có diện tích hẹp 4x16m thì gia đình cần phải tính toán cẩn thận để bố trí các đồ nội thất cho phù hợp. Việc bố trí nội thất hợp lý sẽ giúp gia đình có thêm không gian để sinh hoạt. Việc lựa chọn đồ nội thất cũng vô cùng quan trọng, không nên lựa chọn quá nhiều đồ dùng nội thất mà hãy chọn những loại vật dụng đa chức năng, thiết kế nhỏ gọn. Bên cạnh đó, bạn cũng không nên chọn quá nhiều màu sắc rực rỡ cho ngôi nhà bởi vì chúng sẽ tạo cảm giác rối mắt và khiến không gian trở nên hẹp hơn.Thay vào đó, hãy chọn những màu sắc đơn giản, ít họa tiết sẽ mang đến cảm giác rộng rãi, thoải mái khi sinh hoạt.
Cụ thể, ở mẫu thiết kế nhà 4 tầng 4x16m này, các kiến trúc sư đã bố trí một khoảng sân trước khá rộng rãi để gia đình có thể đậu xe, vui chơi. Phía bên phải được trồng một lối cây xanh và kèm thêm một hồ cá nhỏ xinh vô cùng bắt mắt. Bên trái là nơi dựng xe máy và tủ để giày dép gọn gàng, sạch sẽ.

Sân trước của ngôi nhà khá rộng rãi
Bởi vì ngôi nhà có diện tích hẹp nên phòng khách được thiết kế liên thông với phòng bếp kết hợp phòng ăn. Tất cả được thiết kế theo phong cách hiện đại với tông màu trắng xám làm chủ đạo. Một bộ ghế sofa màu xám với điểm nhấn là những chiếc gối có họa tiết sọc và chiếc bàn hình dáng lạ mắt. Kệ tivi màu nâu gỗ vuông vắn, đơn giản. Phía sau là một tấm kính trong suốt có thể nhìn ra lối giếng trời được trồng nhiều cây xanh. Chiếc đèn chiếu sáng có thiết kế đơn giản nhưng mang đến sự độc đáo và tinh tế cho cả không gian ngôi nhà.

Phòng khách được thiết kế liền bếp là lựa chọn thông minh cho ngôi nhà có diện tích hẹp
Phòng bếp được thiết kế tủ bếp hình chữ L có thêm bàn đảo để mang đến không gian rộng rãi để các thành viên có thể cùng nhau nấu ăn. Trong phòng bếp còn được bố trí thêm một phòng ăn để cả gia đình quây quần bên nhau dùng bữa. Không gian dưới cầu thang được tận dụng để làm tủ đựng rượu, đồ trang trí vô cùng hợp lý.

Phòng bếp với tông màu trắng xám làm chủ đạo

Trong phòng bếp được bố trí thêm một bàn đảo và một bộ bàn ăn
Cuối cùng, không gian phòng ngủ có thiết kế tối giản với một chiếc giường đôi mang đến cảm giác dễ chịu cho gia chủ khi nghỉ ngơi.

Phòng ngủ có thiết kế tối giản mang đến cảm giác thoải mái, cho giấc ngủ ngon
Vừa rồi, Thiết Kế Nhà 365 vừa giới thiệu đến quý bạn đọc một các kiểu nhà đẹp 4 tầng 4x16m. Hy vọng, những thông tin về thiết kế của mẫu nhà này sẽ giúp bạn có được ý tưởng tuyệt vời cho tổ ấm của riêng mình. Nếu bạn đang có nhu cầu tìm hiểu thêm về bản thiết kế, hãy liên hệ đến số hotline của chúng tôi để được tư vấn cụ thể hơn .
Công Ty TNHH Thiết Kế Nhà 365
- Địa chỉ office: 294 Lê Trọng Tấn, Phường Tây Thạnh, Quận Tân Phú, Thành Phố Hồ Chí Minh
- Email: thietkenha365@gmail.com
- Số điện thoại: 0906840567 – Mr. Thắng
- Website: https://demo.thietkenha365.vn/









