Search
Close this search box.

199+ Mẫu nhà phố 1 tầng đẹp, hiện đại nhất 2024

Nhà phố 1 tầng đẹp hiện đại đang là xu hướng thiết kế của nhiều gia chủ hiện nay bởi tính tiện dụng và tiết kiệm không gian của nó. Mẫu nhà phố đẹp đã chứng minh sự đa dạng trong thiết kế và sự tinh tế trong tổng thể, tạo nên sự hài hòa giữa kiến trúc và môi trường sống. Sau đây, Thiết Kế Nhà 365 xin chia sẻ đến quý bạn đọc những thiết kế nhà 1 tầng đẹp hiện đại nhất hiện nay, mời bạn đọc tham khảo.

Mục lục hiện

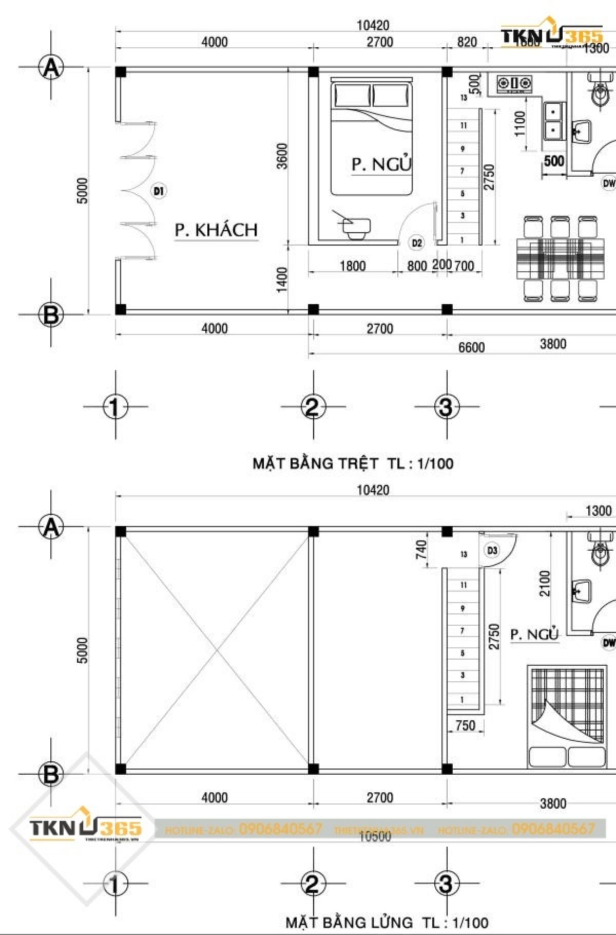
Mẫu nhà 1 tầng mái thái chi phí dự kiến 850 triệu

Mẫu nhà 1 tầng mái thái này có tổng chi phí đầu tư chỉ khoảng 850 triệu đồng. Tuy nhiên ngôi nhà lại sở hữu phong cách thiết kế và kiến trúc vô cùng ấn tượng và đầy đủ mọi chức năng.

mẫu thiết kế nhà 1 tầng
Thiết kế mặt tiền mẫu nhà đẹp 1 tầng mái thái chi phí 850 triệu

Ở bên trong, các khu vực chức năng được bố trí vô cùng hợp lý. Căn nhà có đến 3 phòng ngủ khác nhau, có thể đáp ứng nhu cầu sinh hoạt của từ 3 – 6 thành viên. Phòng vệ sinh được bố trí ở cuối nhà, cách xa phòng bếp và phòng thờ để đảm bảo sự hài hòa về phong thủy.

bản vẽ thiết kế nhà 1 tầng
Bản vẽ thiết kế mặt bằng biệt thự 1 tầng mái thái chi phí 850 triệu

Tham khảo thêm: 101+ mẫu cửa phòng ngủ đẹp nhất 2024

Mẫu nhà 1 tầng mái thái 4 phòng ngủ

Mẫu nhà 1 tầng mái thái này có thiết kế mặt tiền vô cùng rộng rãi. Ngoại thất của ngôi nhà đơn giản nhưng trang nhã, tinh tế. Sân vườn phía trước nhà thoáng đãng để gia chủ có thể đỗ xe, trang trí cây cảnh.

mẫu thiết kế nhà 1 tầng
Mặt tiền nhà phố 1 tầng mái thái 4 phòng ngủ

Mặc dù có đến 4 phòng ngủ nhưng ngôi nhà không hề bí bách. Ngôi nhà đã được kiến trúc sư dành nhiều khoảng không gian trống để đảm bảo sự thông thoáng cho căn nhà.

bản vẽ thiết kế nhà 1 tầng
Bản vẽ thiết kế nhà phố 1 tầng và có 4 phòng ngủ được thiết kế mái thái

Mẫu nhà phố mái bằng 1 tầng kiến trúc hiện đại

Mặt tiền căn nhà mái bằng này được xây dựng theo lối kiến trúc đơn giản, hiện đại. Chủ nhà sử dụng cửa ra vào bằng kính và bậc tam cấp đá cẩm thạch. Phía trước và bên hông nhà cũng được tạo điểm nhấn bởi những mảng xanh cây cối.

mẫu thiết kế nhà 1 tầng
Mẫu thiết kế nhà 1 tầng hiện đại mái bằng

Về thiết kế mặt bằng, ngôi nhà gồm có ba phòng ngủ. Trong đó có 1 phòng ngủ dành cho bố mẹ. Phòng khách được bố trí ngay cửa ra vào, có sự liên thông với phòng thờ. Bếp ăn và khu giặt rửa nằm ở phía sau cùng của căn nhà.

Bản vẽ thiết kế nhà 1 tầng
Bản vẽ thiết kế nhà 1 tầng hiện đại mái bằng có ba phòng ngủ

Mẫu thiết kế nhà phố 1 tầng có gác lửng mái bằng hiện đại

Thiết kế mặt tiền căn nhà mái bằng có gác lửng hiện đại này chủ yếu xoay quanh 2 tone màu trắng và nâu. Chất liệu cửa sổ kính trong suốt giúp chủ nhà tận dụng tốt nguồn ánh sáng tự nhiên. Phần mái nhà có thiết kế mái bằng hiện đại tạo sự đồng bộ với cửa chính.

mẫu thiết kế nhà 1 tầng
Thiết kế nhà phố 1 tầng đẹp hiện đại mái bằng có gác lửng

Về bố cục thiết kế bên trong ngôi nhà, phòng khách rộng lớn nằm ngay hướng cửa chính, là nơi gia chủ tiếp đón các vị khách quý và thư giãn sau một ngày làm việc mệt mỏi. Phòng bếp và khu vực ăn uống được gộp chung trên cùng một không gian để tiết kiệm diện tích. Hai phòng ngủ được bố trí đều cả ở tầng trệt và tầng lửng.

mẫu thiết kế nhà 1 tầng
Thiết kế nhà 1 tầng mái bằng có gác lửng hiện đại

Mẫu biệt thự 1 tầng sang trọng

Ở căn biệt thự 1 tầng này toát lên vẻ đẹp cổ điển xen lẫn hiện đại. Sự cổ điển nằm ở thiết kế mái thái hòa quyện với nét hiện đại với việc sử dụng chất liệu cửa kính, tường ốp đá. Khoảng không gian hiên ngoài trời là nơi gia đình có thể thư giãn, ngắm cảnh.

mẫu thiết kế nhà 1 tầng
Thiết kế ngoại thất biệt thự 1 tầng sang trọng

Kiến trúc sư đã vô cùng tinh tế khi bố trí nhiều lối vào ngôi nhà. Ngoài sảnh chính thì còn có các sảnh phụ ở hai bên để gia chủ và khách dễ dàng ra vào. Căn biệt thự được thiết kế với ba phòng ngủ, phòng bếp và khu ăn nằm liên thông. Đặc biệt từ sảnh chính vào còn có một khoảng thoáng dẫn vào các khu vực chức năng của ngôi nhà.

bản vẽ thiết kế nhà đẹp 1 tầng
Bản vẽ thiết kế mặt bằng biệt thự 1 tầng sang trọng

Mẫu nhà 140m2 mái Nhật 1 tầng đẹp hiện đại

Mẫu nhà mái Nhật 140m2 này có cửa chính nằm lệch về bên trái. Bên phải là cửa sổ bằng kính kết hợp gỗ tự nhiên và có bồn hoa bên dưới để tạo điểm nhấn. Hai bên cửa cũng được bố trí 2 chậu cây cảnh trang trí vô cùng đẹp mắt.

mẫu thiết kế nhà 1 tầng
Thiết kế mặt tiền nhà mái Nhật diện tích 140m2

Bố cục bên trong của ngôi nhà được thiết kế khoa học. Từ sảnh chính đi vào là khu vực phòng khách rộng lớn. Ngoài ra còn có sảnh phụ dẫn vào phòng ăn của ngôi nhà. Phòng bếp được bố trí tách biệt với phòng ăn và nằm ở phía cuối nhà.

bản vẽ thiết kế nhà 1 tầng
Mặt bằng chi tiết ngôi nhà mái Nhật 140m2

Mẫu nhà vườn đẹp 1 tầng 120m2 được yêu thích ở nông thôn

Đây là mẫu nhà vườn mái thái rất được ưa chuộng tại các vùng nông thôn vì có không gian sân vườn thoáng đãng. Sàn nhà được ốp lát bằng đá cẩm thạch cùng tone màu ghi với màu sơn tường.

mẫu thiết kế nhà 1 tầng
Thiết kế ngoại thất nhà vườn 1 tầng 120m2

Ngôi nhà được thiết kế theo bố cục truyền thống với phòng khách nằm ngay cạnh sảnh chính. Kế đến là phòng bếp và khu vực ăn uống, 2 phòng ngủ, 1 toilet được bố trí đều ở hai bên đáp ứng nhu cầu sinh hoạt của gia đình đông người.

bản vẽ thiết kế nhà 1 tầng
Bản vẽ thiết kế nội thất nhà vườn 1 tầng 120m2 được ưa chuộng ở nông thôn

Nhà 1 tầng 1 phòng thờ 3 phòng ngủ khách trang nghiêm

Mẫu nhà 1 tầng 3 phòng ngủ 1 phòng thờ này có vẻ đẹp hiện đại kết hợp truyền thống. Ngôi nhà sử dụng hệ thống cửa sổ và cửa ra vào bằng kính rộng mở kết hợp đèn trần để tăng cường ánh sáng và độ thoáng. Ngôi nhà có thiết kế mái thái lợp ngói tone màu xanh nước biển bắt mắt, tạo sự tương phản với tường nhà sơn trắng.

mẫu thiết kế nhà 1 tầng
Thiết kế mặt tiền nhà 1 tầng có phòng thờ

Ngôi nhà này có phòng khách và phòng thờ liên thông với nhau tạo sự trang nghiêm. Thiết kế 3 phòng ngủ được bố trí đồng đều. Phòng ăn nằm bên trái cửa chính nhưng không được xây kín để đảm bảo sự thông thoáng.

Bản vẽ mặt bằng nhà 3 phòng ngủ 1 phòng khách thờ
Bản vẽ mặt bằng nhà 3 phòng ngủ 1 phòng thờ

Mẫu nhà chữ L mái thái xây dựng 1 tầng đẹp giá rẻ

Mẫu nhà 1 tầng mái thái này được thiết kế khá đơn giản nhưng tinh tế và thoáng đãng. Chủ nhà đã bố trí hệ thống cửa sổ kính áp mái để tối đa hóa nguồn ánh sáng tự nhiên.

mẫu thiết kế nhà 1 tầng
Mẫu nhà mặt tiền nhà chữ L mái thái thiết kế 1 tầng đẹp giá rẻ

Đây là mẫu thiết kế nhà chữ L giá rẻ với 1 phòng ngủ, phòng khách rộng rãi. Bếp và khu vực ăn uống cùng nằm trên một không gian để tiết kiệm diện tích sử dụng.

bản vẽ thiết kế nhà 1 tầng
Bản vẽ mẫu nhà 1 tầng chữ L mái thái đẹp và rẻ

Mẫu nhà 1 tầng mái tôn đẹp nhất ở quê

Mẫu nhà mái tôn cấp 4 này đang rất thịnh hành tại các vùng thôn quê. Ngôi nhà có mặt tiền khá hẹp nhưng lại có lợi thế về chiều dài. Xung quanh nhà có hàng rào bao kín đảm bảo sự an toàn, kín đáo. Trước cửa nhà có khoảng sân vườn để gia chủ đỗ xe.

mẫu thiết kế nhà 1 tầng
Mẫu nhà 1 tầng mái tôn đẹp nhất ở quê

Nội thất bên trong của ngôi nhà có thiết kế khá hiện đại. Bước vào từ cửa chính là phòng khách rộng rãi, phòng thờ nằm bên tay phải so với cửa ra vào. Có 3 phòng ngủ được xây liên tiếp nhau, phù hợp cho gia đình nhiều thế hệ sinh sống. Đối diện là phòng bếp và ăn rộng rãi.

bản vẽ thiết kế nhà 1 tầng
Bản vẽ thiết kế mẫu nhà 1 tầng mái tôn

Mẫu nhà ở quê kết hợp nhà thờ họ có tiểu cảnh sân vườn đẹp

Đây là mẫu nhà đẹp kết hợp nhà thờ họ truyền thống kết hợp 2 tone màu đỏ và trắng tạo sự trang nghiêm cho ngôi nhà.

mẫu thiết kế nhà 1 tầng
Mặt tiền ngôi nhà ở quê kết hợp nhà thờ họ có sân vườn

Mặc dù kết hợp với nhà thờ họ tuy nhiên không gian sinh hoạt của gia đình vẫn vô cùng rộng rãi.

Mặt bằng chi tiết nhà ở quê kết hợp nhà thờ họ có sân vườn
Mặt bằng chi tiết nhà ở quê kết hợp nhà thờ họ có sân vườn

Mẫu nhà chữ U đẹp kiểu hiện đại cho đại gia đình

Thiết kế mặt tiền của ngôi nhà gây ấn tượng với hồ nước ngay trước nhà. Nhà được lợp mái ngói tạo sự gần gũi với thiên nhiên, ấm áp về mùa đông và mát mẻ về mùa hè.

mẫu thiết kế nhà 1 tầng
Mặt tiền mẫu nhà chữ U đẹp hiện đại

Đây là mẫu nhà chữ U với thiết kế hiện đại. Trước nhà có sân vườn và hồ cá, bên trong ngôi nhà từ cửa chính bước vào là gara ô tô, bên phải là phòng khách và phòng bếp. Điểm đặc biệt của ngôi nhà chữ U này là có nhiều diện tích sân vườn.

Bản thiết kế nhà 1 tầng chữ U đẹp hiện đại
Bản thiết kế nhà 1 tầng chữ U đẹp hiện đại

Mẫu thiết kế nhà đẹp 1 tầng ở quê 770 triệu

Thiết kế nhà 1 tầng đẹp ở quê này rất gần gũi với thiên nhiên. Đây là mẫu nhà có phần mái hiên nhô ra với các khe thoáng vừa che nắng che mưa, vừa đảm bảo sự thông thoáng.

mẫu thiết kế nhà 1 tầng
Mặt tiền nhà đẹp 1 tầng ở quê 770 triệu

Mẫu nhà này có đầy đủ các không gian phòng chức năng như phòng khách, phòng ngủ, phòng thờ, phòng bếp + ăn và 2 phòng vệ sinh. Với tổng chi phí đầu tư chỉ 770 triệu đồng.

Bản vẽ thiết kế nhà đẹp ở quê chi phí 770 triệu
Bản vẽ thiết kế nhà đẹp ở quê chi phí 770 triệu

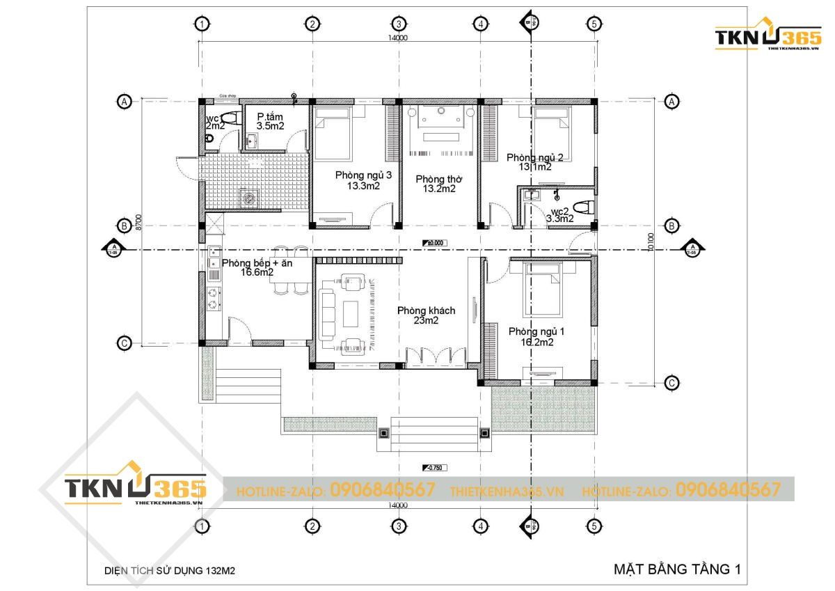
Mẫu nhà 1 tầng 140m2 kiến trúc tân cổ điển

Về thiết kế ngoại thất, ngôi nhà có khoảng sân khá rộng ở trước mặt để làm sân chơi trẻ em hoặc để xe ô tô. Nhà được xây cao so với mặt đường để tránh nước mưa tràn vào nhà. Thiết kế bậc thang dẫn vào nhà hợp phong thủy, giúp tăng độ bề thế của căn biệt thự.

mẫu thiết kế nhà 1 tầng
Mặt tiền nhà 140m2 1 tầng tân cổ điển

Về thiết kế bên trong, ngôi nhà có ba phòng ngủ và 1 phòng khách diện tích lớn. Phòng bếp và phòng ăn được gộp chung trong cùng một không gian.

bản vẽ thiết kế nhà 1 tầng
Bản vẽ thiết kế nhà 1 tầng 140m2 tân cổ điển

Mẫu nhà kiến trúc hiện đại 1 tầng 3 phòng ngủ

Mặt tiền ngôi nhà được thiết kế đơn giản, hiện đại nhưng tinh tế. Kiến trúc sư đã sử dụng gạch bông gió để tạo độ thoáng cho không gian.

mẫu thiết kế nhà 1 tầng
Thiết kế mặt tiền mẫu nhà hiện đại 1 tầng

Đây là thiết kế nhà 1 tầng diện tích 9x15m với 3 phòng ngủ sang trọng, hiện đại. Ngôi nhà được bố trí công năng hợp lí cho gia đình từ 4 – 6 người.

bản vẽ thiết kế nhà 1 tầng
Thiết kế chi tiết nhà 1 tầng hiện đại

Mẫu nhà kiểu Pháp 1 tầng đẳng cấp chi phí thiết kế rẻ

mẫu thiết kế nhà 1 tầng
Mặt tiền nhà kiểu Pháp 1 tầng chi phí rẻ
bản vẽ thiết kế nhà 1 tầng
Mặt bằng nhà kiểu Pháp 1 tầng chi phí rẻ

Mẫu nhà biệt thự 1 tầng kiến trúc Châu u

Điểm nhấn mặt tiền của ngôi nhà nằm ở thiết kế trụ cột hai bên và bậc ngũ cấp ốp đá cẩm thạch sang trọng. Ngoài cửa ra vào bằng gỗ tự nhiên thì gia chủ sử dụng cửa sổ kính để đón nhận nguồn sáng tự nhiên.

Ngoại thất biệt thự 1 tầng kiến trúc Châu  u
Ngoại thất biệt thự 1 tầng kiến trúc Châu u

Biệt thự có kiểu dáng chữ L với 2 phòng ngủ nhỏ và 1 phòng ngủ Master. Phòng khách và phòng bếp được gộp chung trong một không gian.

Thiết kế mặt bằng biệt thự 1 tầng kiểu Châu  u
Thiết kế mặt bằng biệt thự 1 tầng kiểu Châu u

Mẫu thiết kế nhà phố 1 tầng 4 phòng ngủ hiện đại

Mẫu nhà 1 tầng 4 phòng ngủ là kiểu nhà kết hợp hài hòa với cửa ra vào bằng gỗ tự nhiên đậm chất cổ điển. Kiến trúc sư cũng bố trí những mảng xanh cây cối tạo điểm nhấn ở khu vực hàng rào hay phía trước nhà tạo sự thoáng đãng.

mẫu thiết kế nhà 1 tầng
Mẫu thiết kế nhà phố 1 tầng 4 phòng ngủ hiện đại

Bản vẽ công năng nhà phố 1 tầng 4 phòng ngủ theo phong cách hiện đại và đầy đủ tiện nghi. Căn nhà bao gồm 1 phòng khách và 1 phòng ăn lớn phục vụ cho gia đình có đông thành viên sinh hoạt.

Phía ngoài là sân vườn rộng rãi, thoáng mát với hồ cá Koi được bố trí cạnh bàn trà. Phía sau nhà là mảnh đất rộng để gia chủ có thể trồng thêm rau sạch và cây ăn trái cho gia đình.

bản vẽ thiết kế nhà 1 tầng
Thiết kế mặt tiền nhà 1 tầng 4 phòng ngủ hiện đại

Mẫu thiết kế nhà 1 tầng mái Nhật đẹp độc đáo

Mẫu thiết kế nhà 1 tầng mái Nhật đẹp và độc đáo thường mang đến không gian sống gần gũi với thiên nhiên và phản ánh sự thanh lịch, tinh tế của văn hóa Nhật Bản.

mẫu thiết kế nhà 1 tầng
Mẫu thiết kế nhà 1 tầng mái Nhật đẹp độc đáo 13x11m

Bản vẽ thiết kế mặt bằng mẫu nhà đẹp 1 tầng 13x11m bao gồm 4 phòng ngủ rộng rãi tạo nên không gian thoải mái và tiện nghi để gia chủ có thể thư giãn và nghỉ ngơi sau một ngày làm việc căng thẳng. Bên cạnh đó, phòng khách và bếp được thiết kế hiện đại và tiện nghi, với bàn làm việc rộng và tủ bếp đa năng để tối ưu hóa không gian lưu trữ.

Bản vẽ thiết kế mặt bằng nhà 10x11m đẹp
Bản vẽ thiết kế mặt bằng nhà 10x11m đẹp

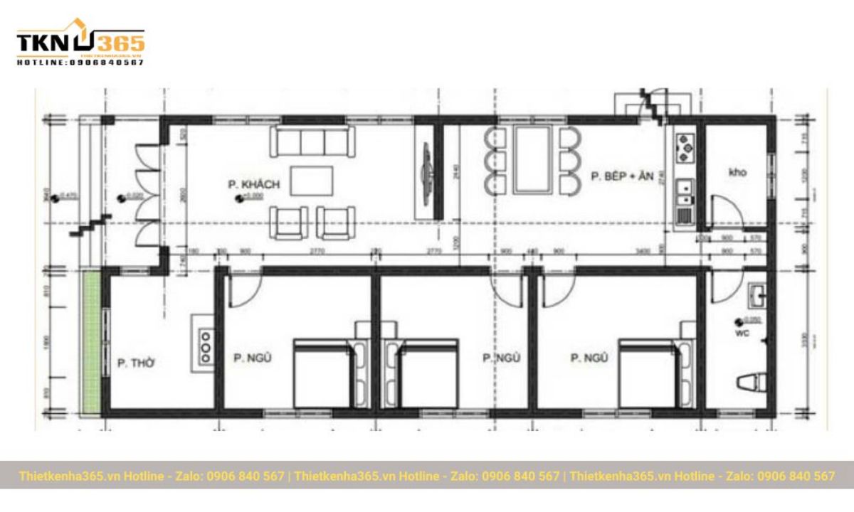
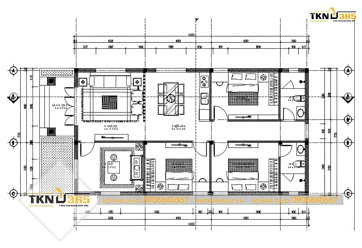
Mẫu nhà 1 tầng 4 phòng ngủ phong cách tân cổ điển

Mẫu nhà 1 tầng 4 phòng ngủ phong cách tân cổ điển mang đến không gian sống thoáng đãng và hài hòa. Nhà được xây dựng với thiết kế hiện đại và tối giản, tận dụng tối đa diện tích nhằm đảm bảo tính chức năng và tiện ích cho gia đình.

mẫu thiết kế nhà 1 tầng
Mẫu nhà 1 tầng 4 phòng ngủ phong cách tân cổ điển

Bản vẽ mẫu nhà 1 tầng 4 phòng ngủ phong cách tân cổ điển được thiết kế đều đặn và hợp lý, bao gồm: 4 phòng ngủ, 1 phòng khách, 1 phòng thờ và sảnh phụ.

Phòng khách được ưu tiên thiết kế rộng rãi và thoáng đãng, với diện tích khoảng 25m2. Không gian này được bố trí cửa và cửa sổ lớn, tối ưu hóa ánh sáng tự nhiên và luồng không khí. Nội thất được chọn lọc và sắp xếp hợp lý, mang đến cảm giác ấm cúng và hiện đại cho ngôi nhà.

Phòng ngủ chính, với diện tích khoảng 15m2, được thiết kế để mang lại sự riêng tư và thoải mái cho chủ nhà. Ngoài ra, ngôi nhà còn có 2 phòng ngủ phụ, mỗi phòng có diện tích khoảng 12m2 và 10m2. Đây là những không gian tiện nghi, được trang bị đầy đủ nội thất, phù hợp cho các thành viên trong gia đình hoặc khách mời.

bản vẽ thiết kế nhà 1 tầng
Bản vẽ nhà 1 tầng 4 phòng ngủ phong cách tân cổ điển

Mẫu nhà 1 tầng 60m2 đẹp hiện đại, chi phí rẻ

Mẫu nhà hiện đại và tiết kiệm chi phí có 1 tầng diện tích 60m2 được thiết kế rất sáng sủa và hợp thời. Kiến trúc của ngôi nhà mang phong cách hiện đại với các đường nét thanh thoát, sạch sẽ và tối giản. Màu sắc bên ngoài được lựa chọn tươi sáng và tương phản, tạo điểm nhấn và làm cho ngôi nhà trở nên lôi cuốn hơn.

mẫu thiết kế nhà 1 tầng
Mẫu nhà 1 tầng 60m2 đẹp hiện đại, chi phí rẻ

Bản vẽ mẫu nhà 1 tầng 60m2 đẹp hiện đại với chi phí hợp lý bao gồm 2 phòng ngủ, 1 phòng khách, 1 bếp kết hợp phòng ăn và sảnh, cùng sân trước. Nhà được thiết kế với lối kiến trúc hiện đại, tận dụng tối đa không gian 60m2 một cách thông minh. Bên ngoài, ngôi nhà có một khu sân trước nhỏ xinh, có thể trồng cây xanh và cỏ để tạo không gian thư giãn.

Phía bên trong nhà là hai phòng ngủ được bố trí hợp lý, mỗi phòng được trang bị cửa sổ lớn mang lại ánh sáng tự nhiên và không gian thoáng đãng. Phòng bếp được kết hợp hài hòa với phòng ăn, tạo nên không gian thoải mái và tiện nghi.

bản vẽ thiết kế nhà 1 tầng
Bản vẽ mẫu nhà 1 tầng 60m2 đẹp hiện đại, chi phí rẻ

Mẫu nhà 1 tầng 100m2 đẹp tinh tế, đầy đủ tiện nghi

Một mẫu nhà 1 tầng diện tích 100m2 tinh tế và đẹp thường được xem như một sự kết hợp hài hòa giữa thiết kế hiện đại và sự tiện nghi. Kiến trúc của ngôi nhà này mang đậm phong cách tối giản, với các đường nét mềm mại và tỉ mỉ. Sân vườn hay ban công nhỏ được trang trí với cây cỏ và nội thất ngoài trời tinh tế là điểm nhấn hoàn hảo cho ngôi nhà tuyệt vời này.

mẫu thiết kế nhà 1 tầng
Mẫu nhà 1 tầng 100m2 đẹp tinh tế, đầy đủ tiện nghi

Mặt bằng nội thất của ngôi nhà 1 tầng diện tích 100m2 được thiết kế vô cùng tinh tế và đầy đủ tiện nghi, gồm 3 phòng ngủ, 1 phòng bếp, 1 phòng khách và 1 toilet.

Phòng khách được bố trí ngay khi bước vào ngôi nhà, tạo ấn tượng mở và thoáng đãng. Phòng bếp được thiết kế mở, nối liền với phòng khách, tạo cảm giác rộng rãi và tiện lợi. Bàn ăn được đặt ở gần cửa sổ để tận dụng ánh sáng tự nhiên. Bếp được trang bị đầy đủ thiết bị hiện đại và lưu trữ thông minh, mang lại tiện ích cho gia đình.

Có tổng cộng 3 phòng ngủ, mỗi phòng được thiết kế rộng rãi và thoáng đãng. Các phòng ngủ được trang bị giường ngủ thoải mái, tủ quần áo, bàn làm việc và kệ sách. Màu sắc và thiết kế nội thất mang phong cách riêng, tạo không gian riêng biệt và phong cách cho từng phòng.

bản vẽ thiết kế nhà 1 tầng
Mặt bằng nội thất nhà 1 tầng 100m2 đẹp tinh tế, đầy đủ tiện nghi

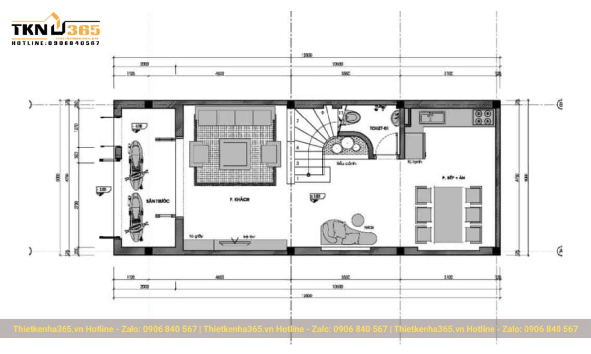
Mẫu nhà phố 1 tầng gác lửng 5x15m

Với kích thước 5x15m, ngôi nhà có không gian rộng rãi cho các phòng chức năng. Tầng trệt chủ yếu là khu vực sinh hoạt chung, bao gồm phòng khách, phòng bếp và phòng ăn. Thiết kế mở giữa các khu vực này mang lại cảm giác thoáng đãng và tiện ích cho việc di chuyển trong gia đình.

mẫu thiết kế nhà 1 tầng
Mặt tiền và thiết kế nội thất nhà 1 tầng gác lửng 5x15m

Bản vẽ nhà 1 tầng gác lửng kích thước 5x15m mang đến cái nhìn tổng thể về ngôi nhà với thiết kế sáng tạo và tối giản, hài hòa trong không gian.

Tầng trệt của ngôi nhà được thiết kế rộng rãi với khu vực tiếp khách, gian bếp và phòng ăn mở, tạo không gian thông thoáng và rất thuận lợi cho sinh hoạt gia đình. Cửa và cửa sổ lớn được bố trí hợp lý để đảm bảo ánh sáng tự nhiên và thông gió.

Phía trên, tầng lửng được thiết kế thành khu vực phòng ngủ riêng tư. Các phòng ngủ ở tầng này được bố trí hợp lý, với các cửa sổ lớn mang lại không gian thoáng đãng và ánh sáng tự nhiên. Gác lửng tận dụng diện tích cao tạo nên không gian sạch sẽ, tiện lợi và thoải mái.

bản vẽ thiết kế nhà 1 tầng
Bản vẽ nhà 1 tầng gác lửng kích thước 5x15m

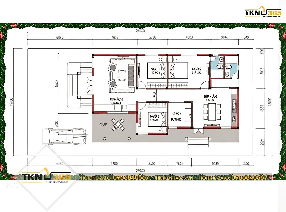
Mẫu nhà 1 cấp 4 mái thái 3 phòng ngủ 100m2

Nhà cấp 4 đẹp mái thái 3 phòng ngủ cũng đang thu hút nhiều sự quan tâm của các hộ gia đình. Ngôi nhà được tối ưu hóa về công năng sử dụng với mức chi phí thi công chỉ trong khoảng 650 triệu đồng. Dưới đây là thiết kế mặt tiền nhà cáo 4 mái thái đơn giản nhưng vô cùng sang trọng, tinh tế.

mẫu thiết kế nhà 1 tầng
Thiết kế mẫu nhà 1 tầng đẹp hiện đại mái thái diện tích 100m2

Nội thất ngôi nhà được kiến trúc sư tính toán và thiết kế vô cùng tỉ mỉ. Khi bước vào ngôi nhà, không gian đầu tiên mà gia chủ và khách nhìn thấy sẽ là phòng khách. Phòng thờ được bố trí ở khu vực bên tay trái và được ngăn cách bởi vách ngăn thay vì cách xây tường truyền thống để đảm bảo độ thông thoáng.

bản vẽ thiết kế nhà 1 tầng
Bản vẽ thiết kế nhà 1 tầng mái thái 100m2 với 3 phòng ngủ

Thiết Kế Nhà 365 – Công ty thiết kế nhà phố 1 tầng số 1 TPHCM

Bạn chưa tìm được đơn vị thiết kế nhà 1 tầng uy tín, chất lượng? Công ty Thiết Kế Nhà 365 sẽ là điểm đến hàng đầu không thể bỏ qua. Với bề dày hơn 10 năm kinh nghiệm trong nghề, Công ty Thiết Kế Nhà 365 nhận thiết kế thi công nhà ở cho khách hàng tại tất cả các tỉnh lân cận TPHCM từ tỉnh Bình Thuận trở vào và các tỉnh miền Tây.

Công ty Thiết Kế Nhà 365 quy tụ đội ngũ kiến trúc sư, nhân viên, thợ xây dựng vô cùng đông đảo đã có thâm niên trong lĩnh vực thiết kế, thi công nhà ở. Ngoài ra chúng tôi còn trang bị đầy đủ các loại trang thiết bị, máy ép khoan cọc tiên tiến. Chính vì vậy mà quý khách có thể hoàn toàn yên tâm về tiến độ cũng như chất lượng thi công công trình.

đội ngũ nhân viên tại Thiết Kế Nhà 365
Tại Thiết Kế Nhà 365 có đội ngũ nhân viên chuyên nghiệp, tận tâm đáp ứng mọi nhu cầu của khách hàng
đội ngũ kiến trúc sư và thi công của Thiết Kế Nhà 365
Công ty Thiết Kế Nhà 365 quy tụ đội ngũ kiến trúc sư có thâm niên trong ngành hơn 10 năm
đội ngũ kiến trúc sư và thi công của Thiết Kế Nhà 365
Công ty Thiết Kế Nhà 365 – Chuyên thiết kế nhà 1 tầng uy tín, chất lượng nhất hiện nay

Khi sử dụng dịch vụ thiết kế, thi công xây dựng nhà 1 tầng trọn gói tại Công ty Thiết Kế Nhà 365, quý khách sẽ được:

  • Thiết kế nội ngoại thất nhà 1 tầng miễn phí 100%.
  • Báo giá dịch vụ trọn gói chi tiết, cam kết không có bất cứ chi phí nào phát sinh ngoài hợp đồng,
  • Công trình bền bỉ với thời gian nhờ được thiết kế, xây dựng và quản lý giám sát theo tiêu chuẩn ISO, đảm bảo thi công đúng theo những hạng mục đã báo giá trọn gói với khách hàng.
  • Quý khách có nhu cầu thiết kế thi công nội thất sẽ được miễn toàn bộ chi phí vận chuyển nội thất đến tận công trình.
  • Giá vật liệu xây dựng cạnh tranh nhất thị trường do được nhập trực tiếp từ các nhà sản xuất uy tín. Chi tiết số lượng, chủng loại, đơn giá thiết kế nhà phố… vật liệu sử dụng sẽ được Công ty Thiết Kế Nhà 365 thống kê rõ ràng, cụ thể.

Liên hệ ngay với Công Ty Thiết Kế Nhà 365 để nhận báo giá thiết kế thi công nhà phố trọn gói và được tư vấn miễn phí từ Kiến Trúc Sư!

call

Hiện nay Công ty Thiết Kế Nhà 365 đang cung cấp nhiều dịch vụ thi công, thiết kế nhà 1 tầng khác nhau gồm sửa chữa nhà cũ, thiết kế cảnh quan, thiết kế thi công nhà theo mẫu khách hàng gửi, thiết kế nội thất nhà 1 tầng theo nhiều phong cách đa dạng,… Quý khách quan tâm vui lòng để lại thông tin trên website hoặc liên hệ với Công ty Thiết Kế Nhà 365 để được tư vấn 24/24!

Quý khách hàng có thể tham khảo các mẫu thiết kế nhà khác:

Công Ty TNHH Thiết Kế Nhà 365

  • Địa chỉ office: 294 Lê Trọng Tấn, Phường Tây Thạnh, Quận Tân Phú, Thành Phố Hồ Chí Minh
  • Email: thietkenha365@gmail.com
  • Số điện thoại: 0906840567 – Mr. Thắng
  • Website: https://demo.thietkenha365.vn/

Hoàng Đức Thắng

Hoàng Đức Thắng là kiến trúc sư đồng thời là CEO của Công ty Thiết Kế Nhà 365, tôi luôn cập nhật những xu hướng mới nhất trong lĩnh vực xây dựng, kiến trúc và nội thất để mang đến cho bạn đọc những thông tin bổ ích nhất. Tôi luôn sẵn sàng chia sẻ những kinh nghiệm của mình để giúp bạn đọc có thể xây dựng được những ngôi nhà không chỉ đẹp mà còn hoàn hảo về mọi mặt.
Hoàng Đức Thắng – CEO của Công ty TNHH Thiết Kế Nhà 365

HẸN GẶP SAU 1H

Trực tiếp với chuyên gia

Gọi: 0906.840.567

(Mr. Thắng)

NHẬN TƯ VẤN MIỄN PHÍ

Trao đổi trực tiếp với KTS 10 năm kinh nghiệm.

Nhận thiết kế và thi công nhà ở khu vực miền Nam





    Gợi ý viết yêu cầu: bạn cần sửa nhà hay xây mới, diện tích bao nhiêu, ngân sách dự kiến,...

    ĐỂ THÔNG TIN NHẬN TƯ VẤN NGAY





      Gợi ý viết yêu cầu: bạn cần sửa nhà hay xây mới, diện tích bao nhiêu, ngân sách dự kiến,...