Nhà phố 2 mặt tiền là một trong những lựa chọn phổ biến để tận dụng không gian sống kết hợp phục vụ mục đích thương mại tại các đô thị của Việt Nam.
Với mong muốn đem đến cho khách hàng những mẫu thiết kế tiện nghi và hiện đại, Công Ty Thiết Kế Nhà 365 tự hào chia sẻ 200+ mẫu thiết kế nhà 2 mặt tiền kinh doanh đẹp, phù hợp với mỹ quan đô thị và mang lại sự tiện dụng tối đa cho khách hàng.
Nhà 2 mặt tiền là gì?
Nhà 2 mặt tiền là một dạng công trình được xây dựng tại vị trí tiếp giáp giữa hai mặt đường, thường nằm ở ngã ba, ngã tư hoặc hai con đường. Vì vậy, nhà hai mặt tiền được xem là một trong những mẫu thiết kế nhà phố đẹp có vị trí đắc địa nhất, đặc biệt ở các khu vực trung tâm thành phố. Nhà thường có kiến trúc đẹp mắt, tạo nên sự khác biệt và góp phần nâng cao giá trị bất động sản. Tuy nhiên, việc xây dựng và sở hữu kiến trúc này cũng đòi hỏi một chi phí đầu tư cao hơn so với các loại nhà khác.

Ưu điểm của nhà hai mặt tiền
- Do có 2 mặt tiền, nhà sẽ tiếp nhận được nhiều ánh sáng tự nhiên hơn, giúp không gian sống trong nhà trở nên rộng rãi, thoáng đãng và gần gũi với thiên nhiên hơn.
- Có thể được sử dụng để kinh doanh hoặc buôn bán giúp gia chủ tăng thêm nguồn thu nhập và giá trị sử dụng.
- Với khối kiến trúc, đường nét độc đáo và thẩm mỹ được tôn lên, những công trình nhà phố 2 mặt tiền sẽ thu hút được sự chú ý và đánh giá cao hơn về mặt thẩm mỹ.
- Tọa lạc tại vị trí đắc địa, tiện lợi cho việc đi lại, dễ dàng cho khách hàng tìm đến.
Top những mẫu thiết kế nhà 2 mặt tiền đẹp
Thiết kế nhà ống 2 mặt tiền 2 tầng
Nhà ống 2 mặt tiền 2 tầng thường được thiết kế với phong cách đơn giản, tinh tế nhưng không kém phần sang trọng và hiện đại.



















Thiết kế nhà phố 2 mặt tiền 4 tầng
Thiết kế nhà phố 2 mặt tiền 4 tầng là một trong những loại hình nhà ấn tượng, và nó có thể được áp dụng với rất nhiều phong cách thiết kế khác nhau, tạo ra những mẫu nhà phố đẹp và đa dạng. Dưới đây là một số ví dụ về các phong cách thiết kế khác nhau mà bạn có thể áp dụng cho những ngôi nhà phố 2 mặt tiền 4 tầng đẹp hiện đại,… mời bạn đọc chiêm ngưỡng:

















Thiết kế nhà 2 mặt tiền hiện đại 5 tầng
Kiến trúc 5 tầng khó xây dựng hơn so với các thiết kế ít tầng khác. Để đảm bảo tính thẩm mỹ, công năng và yếu tố an toàn đòi hỏi kiến trúc sư phải dày dặn kinh nghiệm. Chưa kể chi phí xây một ngôi nhà như thế này cũng không hề nhỏ. Tuy nhiên, so với những lợi ích mà căn nhà hai mặt tiền 5 tầng mang lại.






Tham khảo 40+ mẫu thiết kế nhà 2 mặt tiền kinh doanh đẹp nhất 2023
Mẫu nhà 2 mặt tiền kinh doanh 2 tầng
Nhà hai mặt tiền kinh doanh là một loại nhà đặc biệt thường được xây dựng với 2 tầng và nằm ở ngã ba hoặc ngã tư. Kiểu thiết kế này giúp ngôi nhà dễ dàng thu hút và tiếp cận khách hàng.



Thiết kế nhà 2 mặt tiền kinh doanh 3 tầng
Với thiết kế nhà 2 mặt tiền kinh doanh 3 tầng gia chủ còn có thể bố trí một không gian để làm việc hoặc học tập tại nhà trên tầng 2. Tầng 3 có thể là không gian phòng ngủ và phòng tắm riêng biệt cho gia đình.



Mẫu nhà 2 mặt tiền kết hợp kinh doanh 4 tầng
Với 4 tầng, ngôi nhà sẽ mang lại không gian sống rộng rãi hơn cho gia đình. Thiết kế bao gồm tầng trệt làm mặt bằng kinh doanh và các tầng trên dành cho sinh hoạt gia đình. Tầng trệt rộng rãi, thoáng mát, phù hợp cho nhiều loại hình kinh doanh khác nhau. Các tầng trên sẽ được thiết kế theo phong cách hiện đại, tiện nghi và đầy đủ tiện ích.



Nhà đẹp 2 mặt tiền kinh doanh 5 tầng
Với thiết kế này, ngôi nhà phù hợp với cả những gia đình đông thành viên. Tuy nhiên, nếu trong gia đình có người già và trẻ nhỏ, việc lắp đặt thang máy trong hoặc ngoài nhà sẽ giúp cho việc di chuyển dễ dàng và an toàn hơn. Ngoài khu vực chức năng phục vụ việc mua bán, gia chủ có thể bố trí thêm nhiều không gian xa xỉ như phòng tập thể dục, hồ bơi trong nhà và nhiều loại khác.


Nhà phố kinh doanh 2 mặt tiền hiện đại
Kiểu thiết kế này thường sử dụng nhiều vật liệu và có lối tư duy hình khối sáng tạo, đặc trưng là tối ưu hóa không gian sống và ưu tiên sự tinh gọn, tối giản. Nhờ những đặc điểm này, công trình có chi phí thi công thấp hơn so với những kiểu phong cách khác, đặc biệt là so với những công trình cổ điển và tân cổ điển.


Nhà phố kinh doanh 2 mặt tiền phong cách tân cổ điển
Kiểu nhà này thường có xu hướng phương Tây, đặc biệt là phong cách thế kỉ 17-18. Các công trình tân cổ điển thường được thiết kế với nhiều chi tiết trang trí và ưu tiên sử dụng bê tông trong quá trình xây dựng. Thiết kế này nổi bật nhiều chi tiết chạm trổ tinh xảo và cầu kỳ, có thể là phù điêu, phào chỉ, các hoa văn, họa tiết hoặc tượng điêu khắc.

Nhà 2 mặt phố kinh doanh đẹp cổ điển
Mẫu nhà 2 mặt tiền phong cách cổ điển là sự lựa chọn lý tưởng cho những ai yêu thích sự sang trọng và tinh tế. Với nét đặc trưng là sự kết hợp giữa các yếu tố trang trí tinh xảo, họa tiết phức tạp và vật liệu chất lượng cao, các công trình cổ điển thường có diện mạo ấn tượng và đầy mê hoặc.

Thiết kế nhà 2 mặt tiền kinh doanh cà phê
Thiết kế nhà 2 tầng mặt tiền kinh doanh cà phê được nhiều người lựa chọn để khai thác tối đa ưu thế về vị trí của mảnh đất. Thông thường, kiến trúc sư sẽ sử dụng toàn bộ không gian tầng trệt để thiết kế quán cafe, và đôi khi sẽ tận dụng thêm cả không gian tầng hai nếu được yêu cầu bởi chủ nhà.


Mẫu thiết kế nhà phố 2 mặt tiền kinh doanh thời trang
Thiết kế nhà phố 2 mặt tiền kinh doanh thời trang thường có diện tích rộng rãi để phù hợp với việc trưng bày và giới thiệu sản phẩm thời trang. Với mỗi không gian của ngôi nhà, kiến trúc sư tận dụng ánh sáng tự nhiên và sử dụng màu sắc phù hợp để tạo nên một không gian trang nhã và sang trọng. Đồng thời, cũng có sự tập trung vào các chi tiết trang trí, mang đến cảm giác đẳng cấp và tinh tế cho không gian.
Mẫu nhà ống 2 mặt tiền kinh doanh đơn giản
Mẫu nhà ống 2 mặt tiền kinh doanh đơn giản là sự lựa chọn tuyệt vời cho những ai muốn trải nghiệm cuộc sống trong không gian sống mở rộng và tiết kiệm diện tích. Không chỉ vậy, thiết kế đơn giản cũng giúp gia chủ tiết kiệm được nhiều chi phí trong quá trình thiết kế và xây dựng. Nhờ đó, ngân sách có thể được sử dụng để bố trí không gian nội thất, xây dựng tiểu cảnh đẹp mắt hoặc đầu tư kinh doanh.


Mẫu thiết kế nhà 2 mặt tiền kinh doanh có vườn
Một điểm đặc biệt của mẫu nhà này là không gian sân vườn được bố trí ở giữa hai mặt tiền, tạo ra không gian xanh mát, giúp tạo ra một không gian sống thoải mái và gần gũi với thiên nhiên. Khu vườn này là trợ thủ đắc lực cho gia chủ dự định kinh doanh các mô hình như: quán cà phê, spa, tiệm nail, các dịch vụ có tính dưỡng sinh,…


Kiến trúc 2 mặt kết hợp tiền kinh doanh nhà hàng
Với vị trí đắc địa, nhà hàng 2 mặt tiền sẽ thu hút được nhiều khách hàng và tăng tính cạnh tranh trên thị trường. Việc sử dụng các vật liệu cao cấp và tối ưu hóa không gian để bố trí bàn ghế cũng là một yếu tố quan trọng.


Kiến trúc nhà 2 mặt tiền kinh doanh 6m
Kiến trúc 2 mặt tiền kinh doanh 6m luôn là lựa chọn hàng đầu của những người muốn sở hữu một căn nhà vừa đẹp, vừa tiện nghi, lại nằm trên vị trí đắc địa. Điểm đặc biệt của kiểu nhà này là thiết kế đa dạng và linh hoạt. Các kiến trúc sư luôn tìm cách tối ưu hóa không gian bên trong để các phòng đều rộng rãi và thoáng mát.


Kiến trúc nhà 2 mặt tiền kinh doanh 7m
Với diện tích rộng rãi hơn so với nhà 2 mặt tiền 6m, những công trình này mang lại sự thoải mái và tiện nghi cho gia chủ. Gia chủ có thể sắp xếp và bố trí các phòng ốc một cách linh hoạt cũng như cho phép bổ sung nhiều công năng hơn như phòng tự học, phòng đọc sách, phòng thể thao để phục vụ nhu cầu cá nhân của từng thành viên trong gia đình.


Kiểu nhà 2 mặt tiền kinh doanh đẹp 8m
Với đường rộng 8m, ngôi nhà sở hữu không gian rộng rãi và tối ưu hóa diện tích sử dụng. Chủ nhà có thể tận dụng phần sân để trồng cây cảnh, tạo không gian xanh mát, thoáng đãng. Đối với những gia đình có nhu cầu kinh doanh, đây cũng là lựa chọn tuyệt vời để mở các cửa hàng, nhà hàng, quán cafe hoặc văn phòng công ty.


Nhà 2 mặt tiền hiện đại mái bằng
Thiết kế nhà 2 mặt tiền hiện đại mái bằng có thể linh hoạt phù hợp với nhiều phong cách kiến trúc khác nhau, từ cổ điển đến hiện đại, tùy thuộc vào sở thích và phong cách sống của chủ nhà. Kiến trúc cũng cho phép chủ nhà tận dụng được không gian trên cao để làm các khu vực sinh hoạt, thư giãn hoặc trồng cây cảnh.


Nhà 2 mặt tiền hiện đại mái Thái
Mái Thái được xem là một trong những kiểu mái đẹp và phổ biến nhất hiện nay, với đặc trưng là hình dạng dốc hai bên và có đỉnh cao giữa. Với thiết kế hai mặt tiền, ngôi nhà sẽ có nhiều không gian mở và thoáng mát hơn, giúp ánh sáng tự nhiên lan tỏa đều trong không gian sống. Các phòng được bố trí hợp lý, phù hợp với nhu cầu của gia đình.


Nhà 2 mặt tiền hiện đại mái lệch
Mái lệch không chỉ tạo nên nét đẹp riêng, mà còn giúp thông gió và điều hòa nhiệt độ trong nhà một cách hiệu quả hơn. Để tận dụng tối đa diện tích, nhà thường được thiết kế theo phong cách mở, với không gian thông thoáng và ánh sáng tự nhiên. Các tường kính lớn, cửa sổ to và cửa điện tử giúp tạo nên không gian mở và kết nối giữa bên trong và bên ngoài.


Top 5 bản vẽ thiết kế nhà 2 mặt tiền kinh doanh
Bản vẽ thiết kế nhà 2 mặt tiền kinh doanh 2 tầng
Đây là bản vẽ thiết kế nhà 2 mặt tiền kinh doanh 2 tầng theo phong cách đơn giản và tiện nghi. Tầng 1 được thiết kế với công năng cơ bản bao gồm phòng khách, phòng bếp, phòng ngủ và 2 WC. Đặc biệt, tầng này còn có một gara rộng đủ để đậu được 1 chiếc xe hơi và 2 chiếc xe máy.

Tầng 2 của căn nhà này có 2 phòng ngủ và 1 phòng sinh hoạt chung, đặc biệt thiết kế riêng 2 phòng ngủ này để đảm bảo sự riêng tư cho con cái trong gia đình. Khoảng trống phía sau tầng 2 được bố trí làm ban công giúp gia đình có thể thư giãn, hóng mát và tận hưởng không gian sống trong lành.

Bản vẽ thiết kế nhà 2 mặt tiền kinh doanh 3 tầng
Đây là một mẫu thiết kế nhà với cấu trúc hình chữ L, gồm có phòng khách và phòng ăn được tách bằng một vách tường nhỏ hoặc tủ sách/tủ trưng bày. Bên ngoài là gara và sân để đỗ 1 chiếc xe hơi và 4 chiếc xe máy.

Tầng 2 bao gồm 2 phòng ngủ, 2 WC và 1 ban công. Điểm nhấn của tầng này là phòng thay đồ riêng cho gia đình và gian sinh hoạt chung tương tự như phòng khách.


Tầng 3 có các công năng nâng cao như phòng xông hơi, phòng thể dục, sân chơi thể thao, 1 phòng ngủ cỡ lớn, 1 sân phơi và 1 phòng thờ ông bà tổ tiên.
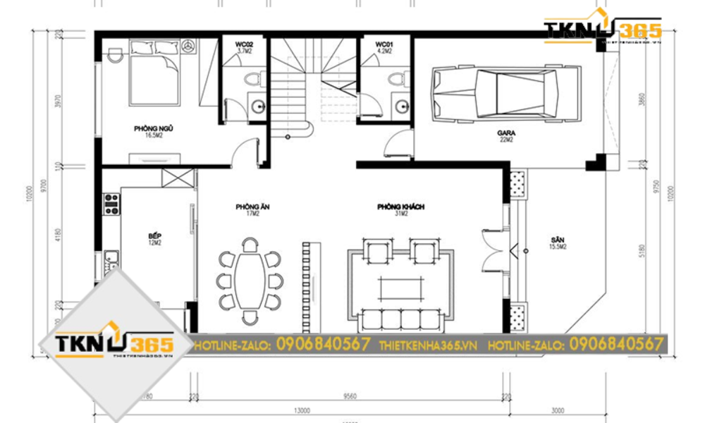
Bản vẽ thiết kế nhà 2 mặt tiền kinh doanh 4 tầng
Kiến trúc sư đã dành nhiều sự chăm chút để tạo ra không gian sống hoàn hảo với sự trau chuốt trong từng chi tiết. Tầng 1 được thiết kế đặc biệt để mở quán ăn, tận dụng ưu thế 2 mặt tiền của công trình để thu hút khách hàng.

Kể từ tầng 2 trở lên là không gian sinh hoạt riêng của gia đình. Theo đó, tầng thứ 2 sẽ chứa không gian riêng của từng thành viên với 4 phòng ngủ riêng biệt với nhau cùng với 2 nhà vệ sinh.

Tầng thứ 3 chứa các gian sinh hoạt chung của các thành viên với 1 phòng khách, 1 bếp ăn, 1 nhà kho và nhiều công năng khác. Điểm đặc biệt ở đây là cách bố trí này cho phép gia đình có nhiều lựa chọn địa về điểm ăn uống. Theo đó, nếu không muốn ăn trong nhà thì có thể ra ban công để tận hưởng không khí mát mẻ để giúp ăn ngon miệng hơn. Còn tầng 4 thì không có nhiều nổi bật vì chỉ có các thiết bị và sản phẩm kỹ thuật hỗ trợ cho ngôi nhà.


Bản vẽ thiết kế nhà 2 mặt tiền kinh doanh trên mảnh đất nền bị xéo
Mẫu thiết kế này rất phù hợp với những người sở hữu đất 2 mặt tiền không vuông vức. Kiến trúc sư đã chỉ trích một phần đất hình chữ nhật để xây dựng nhà và phần còn lại được sử dụng làm sân hoặc trang trí tiểu cảnh.
Công trình này được xây dựng theo hình chữ L, gồm 3 gian kiểu truyền thống. Tầng 1 có 1 phòng khách và 1 phòng ăn, được đặt ở phía đầu của ngôi nhà để che lấp phần không gian riêng tư là hai phòng ngủ ở phía sau.

Tầng thứ 2 bao gồm 3 phòng ngủ và 1 phòng thờ. Ngoài ra, tầng này còn có 1 phòng tắm lớn và sân phơi quần áo rộng rãi. Kiến trúc sư còn tích hợp 2 ban công tại tầng này để các thành viên trong gia đình có thể hóng mát và đón gió vào nhà.

Bản vẽ thiết kế nhà 2 mặt tiền kinh doanh 8m hiện đại
Đây là ngôi nhà 2 mặt tiền được thiết kế dành cho những người sở hữu đất nền rộng lớn, với bề ngang lên đến 8m. Tầng 1 của ngôi nhà có công năng chính là gara với sức chứa lớn, có thể chứa tối đa 1 xe hơi và 5 xe máy để tạo sự thông thoáng cho không gian sống.
Bên cạnh đó, ngôi nhà còn được trang trí 2 lối đi lót đá hoặc gạch đẹp mắt, trong đó lối đi bên phải có thể thông ra bên ngoài để giúp di chuyển thuận tiện hơn. Ngoài ra, tầng này còn có các công năng cơ bản để phục vụ sinh hoạt hàng ngày.

Tầng 2 của ngôi nhà được thiết kế với các không gian nâng cao như giếng trời, phòng thay đồ riêng và 1 phòng đọc. Điểm đặc biệt của tầng này là có một không gian được đánh dấu X lớn, tạo cảm giác rộng rãi và có thể nhìn xuống và quan sát tầng 1.

Để sở hữu mẫu thiết kế nhà 2 mặt tiền kết hợp kinh doanh đẹp và phù hợp với phong thủy của gia đình bạn, hãy liên hệ với chúng tôi – Công Ty Thiết Kế Nhà 365. Đội ngũ kiến trúc sư sẽ tư vấn các phương án thiết kế, bố trí nội thất và vật liệu xây dựng tốt nhất để tạo ra một ngôi nhà trong mơ của bạn. Với đội ngũ kiến trúc sư, kỹ sư có kinh nghiệm, chúng tôi cam kết mang đến cho bạn một không gian sống tiện nghi, đẳng cấp và độc đáo nhất.
Liên hệ ngay với Công Ty Thiết Kế Nhà 365 để nhận báo giá thi công nhà phố trọn gói và được tư vấn miễn phí từ Kiến Trúc Sư!

Xem thêm xu hướng thiết kế nhà ống 2 mặt tiền mới nhất 2023:
Công Ty TNHH Thiết Kế Nhà 365
- Địa chỉ office: 294 Lê Trọng Tấn, Phường Tây Thạnh, Quận Tân Phú, Thành Phố Hồ Chí Minh
- Email: thietkenha365@gmail.com
- Số điện thoại: 0906840567 – Mr. Thắng
- Website: https://demo.thietkenha365.vn/









