Search
Close this search box.

37+ Mẫu thiết kế nhà ống 2 tầng 5x20m hiện đại, có kèm bản vẽ

Nhà ống 2 tầng 5x20m hiện đang là mẫu thiết kế nhà phố hiện đại được nhiều gia đình trẻ ưa chuộng. Ưu điểm của thiết kế này là chiều sâu lý tưởng, có thể bài trí không gian tiện nghi phù hợp với lối sống hiện đại. Trong bài viết dưới đây, hãy cùng Thiết Kế Nhà 365 điểm qua một số mẫu thiết kế nhà ống 2 tầng 5x20m hiện đại, có kèm bản vẽ chi tiết. 

Mục lục hiện

Tổng hợp các mẫu thiết kế nhà ống 2 tầng 5x20m hiện đại

Mẫu thiết kế nhà ống 2 tầng 5x20m hài hòa với thiên nhiên

Mẫu thiết kế nhà ống 2 tầng 5x20m nổi bật bởi sự hiện đại và ấn tượng. Ngoại thất bố trí nhiều cửa sổ để đón ánh nắng tự nhiên. Ban công các tầng đều được trồng nhiều cây xanh, mang đến không khí trong lành và thoáng đãng. 

Mẫu nhà rộng 5m dài 20m 2 tầng
Mẫu thiết kế nhà ống 2 tầng 5x20m đơn giản, sang trọng

Tổng thể mẫu nhà vuông vắn, góc cạnh với những chi tiết, đường nét tinh xảo. Sử dụng gam màu xám làm chủ đạo cùng phần cửa thiết kế tối giản tạo nên không gian sống đơn giản và tiện nghi. 

Mẫu thiết kế nhà 2 tầng 5x20m hiện đại
Nhà 2 tầng 5x20m có ban công trồng cây xanh mát mẻ, dễ chịu

Điểm đặc trưng của mẫu thiết kế này là không gian mở thoáng đãng, hài hòa với thiên nhiên. Cấu trúc cửa có nhiều lỗ thông giúp không khí và ánh sáng trong nhà được điều hòa hiệu quả.

Nhà ống 2 tầng 5x20m
Nhà ống 2 tầng 5x20m có gam màu trắng tạo cảm giác rộng rãi, thoáng mát

Mẫu nhà 2 tầng 1 tum 5x20m màu vàng nổi bật

Mẫu thiết kế nhà ống 2 tầng 5x20m hiện đại, tối giản cũng được nhiều người ưa chuộng. Tổng thể căn nhà toát lên vẻ đơn giản, tiện nghi, không bố trí quá nhiều nội thất. Gam màu vàng chủ đạo cùng thiết kế cửa tròn là điểm nhấn đặc trưng. 

Nhà 2 tầng 1 tum 5x20m
Mẫu nhà 5x20 2 tầng có 1 tum ấn tượng

Mẫu thiết kế nhà 5x20m 2 tầng hiện đại, tối giản lấy tông màu trắng làm chủ đạo. Cửa sổ và cửa chính đều có thiết kế đơn giản, làm bằng chất liệu kính để dễ dàng lấy được ánh sáng tự nhiên. Xung quanh có nhiều cây xanh để tăng độ thoáng đãng. 

Mẫu nhà 2 tầng 1 tum 5x20m
Mẫu nhà 2 tầng 1 tum 5x20m chất liệu kính dễ lấy được ánh sáng tự nhiên

Mẫu thiết kế nhà ống 2 tầng này có thêm tum phía trên để tối ưu không gian sống. Tổng thể hiện đại, đơn giản nhưng không kém phần sang trọng với những đường cong tinh xảo. 

Mẫu nhà 2 tầng 1 tum 5x20m
Mẫu nhà 2 tầng 1 tum 5x20m thiết kế cửa vòm sang trọng, độc đáo

Mẫu nhà đẹp 2 tầng 5x20m mái bằng

Thiết kế nhà ống 2 tầng mái bằng được nhiều người lựa chọn bởi sự chắc chắn, bền bỉ. Tầng 2 có ban công để trồng cây xanh. Cửa sổ có kích thước lớn, làm bằng kính trong giúp thu hút ánh sáng hiệu quả.

Nhà đẹp 2 tầng 5x20m mái bằng
Mẫu nhà mái bằng 2 tầng 5x20 hiện đại

Mẫu nhà 2 tầng mái bằng lấy tông màu xám và đen làm chủ đạo tạo cảm giác sang trọng và tối giản. Hệ thống ánh sáng bố trí phù hợp, mỗi tầng đều có ban công và được trồng nhiều cây xanh nên không gây cảm giác bí bách, khó chịu. 

Mẫu nhà đẹp 2 tầng 5x20m mái bằng
Mẫu nhà đẹp mái bằng 2 tầng 5x20m tông xám tạo cảm giác quyền quý, sang trọng

Mẫu thiết kế này có phần mái được tận dụng để trồng cây xanh. Tổng thể nổi bật với thiết kế cửa vòm cổ điển cùng tông màu nhã nhặn, sang trọng. 

Mẫu nhà rộng 2 tầng 5x20m mái bằng
Mẫu nhà rộng 2 tầng 5x20m mái bằng, sử dụng gam màu trung tính ấm cúng

Mẫu nhà 2 tầng 5x20 mái Thái

Ngoại thất mẫu nhà 2 tầng mái Thái có tông màu trắng nhã nhặn và sang trọng. Cửa kính tối ưu về diện tích giúp ánh sáng tự nhiên dễ đi vào phòng. Mỗi tầng đều được bố trí hệ thống chiếu sáng đầy đủ, phù hợp. 

Nhà 2 tầng 5x20 mái Thái
Mẫu nhà rộng 5m dài 20m 2 tầng thiết kế mái Thái độc đáo

Mẫu nhà 2 tầng 5x20 phổ biến nhất hiện nay

Mẫu thiết kế nhà ống 2 tầng 5x20m màu trắng hiện đang được nhiều người ưa chuộng nhất. Phần mái thiết kế mới lạ, hệ thống cửa gian tầng có lỗ thông giúp không khí lưu thông hiệu quả. Ban công tầng 2 được sử dụng để trồng cây xanh thoáng mát. 

Nhà 2 tầng 5x20m phổ biến hiện nay
Nhà đẹp 2 tầng 5x20 đơn giản, hiện đại
Nhà 2 tầng 5x20
nhà 2 tầng 5x20 xung quanh trồng nhiều cây xanh thoáng mát

Mẫu thiết kế nhà ống 2 tầng 5x20m có 4 phòng ngủ

Mẫu nhà lấy tông màu nâu làm chủ đạo mang lại cảm giác ấm cúng. Phần cửa làm từ gỗ chắc chắn, bền bỉ, ban công tầng 2 trồng nhiều cây xanh để tạo cảm giác mát mẻ, thông thoáng.

Nhà ống 2 tầng 5x20m có 4 phòng ngủ
Thiết kế nhà ống 5x20 2 tầng có 4 phòng ngủ rộng rãi
Nhà ống 2 tầng 5x20m 4 phòng ngủ
Nhà ống 2 tầng 4 phòng ngủ 5x20m Thiết kế mái nhọn độc đáo, mới lạ
Mẫu nhà ống 2 tầng 5x20m có 4 phòng ngủ
Thiết kế nhà ống 5x20m 2 tầng 4 phòng ngủ với những đường nét vuông vức tinh xảo

Mẫu nhà đẹp 2 tầng 5x20 có sân rộng để xe

Mẫu thiết kế nhà ống 2 tầng 5x20m có gara để xe nổi bật với phần sân trước rộng rãi. Thiết kế cửa sổ tròn cùng cửa vòm mang đến cảm giác cổ điển, sang trọng. Tầng áp mái được dùng để trồng hoa giấy, mang đến màu sắc và sức sống cho toàn bộ không gian. 

Nhà đẹp 2 tầng 5x20
Mẫu nhà 2 tầng 5x20 có gara để xe chuyên dụng
Nhà đẹp 2 tầng 5x20 có sân rộng để xe
Nhà đẹp 2 tầng 5x20 có cấu trúc bất cân xứng mới lạ và độc đáo

Mẫu thiết kế nhà ống 2 tầng 5x20m đẹp ấn tượng

Nếu đang tìm kiếm mẫu nhà ấn tượng, hãy thử thiết kế mái Thái hiện đại. Tường tầng 2 được làm từ gỗ, bố trí ánh sáng đầy đủ và có trồng nhiều cây xanh. Tầng dưới tối giản về nội thất mang đến không gian thoáng đãng, tiện nghi cho gia chủ. 

Thiết kế nhà ống 2 tầng 5x20m
Mẫu nhà ống 5x20 2 tầng thiết kế đẹp ấn tượng
Thiết kế mẫu nhà ống 2 tầng 5x20m
Mẫu nhà ống 2 tầng 5x20m có ban công bằng kính lấy ánh sáng tự nhiên hiệu quả

Mẫu thiết kế nhà 5x20m hiện đại có sân vườn

Mẫu thiết kế nhà ống 2 tầng 5x20m có sân vườn mang đến cảm giác hài hòa với thiên nhiên. Tổng thể hiện đại, sang trọng với những đường nét vuông vức, chắc chắn. Cửa làm từ chất liệu kính hấp thụ ánh sáng tự nhiên hiệu quả. 

Thiết kế nhà 5x20m có sân vườn
Thiết kế nhà ống 2 tầng có sân vườn thoáng mát, hiện đại
Nhà 5x20m hiện đại có sân vườn
Nhà 5x20m hiện đại có sân vườn, gam màu xám đen làm chủ đạo mang đến vẻ đẹp hiện đại

Tham khảo bản vẽ thiết kế nhà ống 2 tầng 5x20m đẹp và chi tiết

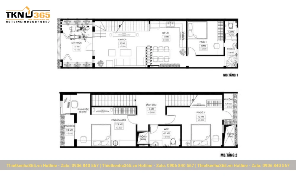
Mẫu thiết kế nhà ống 2 tầng 5x20m gồm 4 phòng ngủ

Mặt bằng tầng 1 gồm phòng khách, phòng bếp, phòng ăn và phòng ngủ của bố mẹ. Phòng khách và khu vực bếp ăn thiết kế thông với nhau để tiết kiệm diện tích 

Mặt bằng tầng 2 bao gồm 3 phòng ngủ, phòng thờ và khu vực ban công. Phía ngoài bố trí thêm khu vực giặt phơi có diện tích rộng rãi.

Bản vẽ thiết kế nhà ống 2 tầng 5x20m
Bản vẽ nhà 2 tầng 5x20 có 4 phòng ngủ

Bản vẽ thiết kế nhà ống 1 trệt 1 lầu 5x20m sang trọng

Mặt bằng tầng 1 được sử dụng cho không gian phòng khách, phòng bếp và phòng ăn. Bên cạnh khu vực bếp ăn là phòng ngủ dành cho khách.

Mặt bằng tầng 2 bao gồm 3 phòng ngủ và khu vực giặt phơi. Ngoài ra còn có phòng sinh hoạt chung cho các thành viên trong gia đình. 

Bản vẽ thiết kế nhà 5x20m
Bản vẽ nội thất bên trong nhà ống 1 trệt 1 lầu 5x20m

Mẫu thiết kế nhà ống 2 tầng 5x20m đơn giản

Mặt bằng tầng 1 không có sân trước, thay vào đó là khu vực sân sau có diện tích lớn. Phòng khách và khu vực bếp, ăn được thiết kế thông với nhau. Mỗi phòng đều trang bị đầy đủ nội thất.

Tầng 2 là khu vực nghỉ ngơi với 2 phòng ngủ. Bên ngoài mỗi phòng đều có ban công để trồng cây xanh. 

Bản vẽ nhà ống 2 tầng 5x20m đơn giản
Mẫu thiết kế nhà ống 2 tầng 5x20m đơn giản

Bản vẽ nhà 2 tầng 5x20m có sân xe, mái chéo

Mặt bằng tầng 1 có khu vực sân trước và sân sau diện tích lớn, trong đó sân trước được dùng để làm gara xe hơi. Khu vực bếp ăn và phòng khách thông với nhau để tối ưu về diện tích.

Mặt bằng tầng 2 bao gồm phòng ngủ, khu vực giặt phơi và ban công phía bên ngoài để phơi quần áo. 

Bản vẽ thiết kế nhà ống 2 tầng 5x20m
Bản vẽ nhà ống 5x20m 2 tầng có gara để xe

Bản vẽ thiết kế nhà ống 2 tầng 5x20m mũi nhọn lạ mắt

Mặt bằng tầng 1 có sân trước lớn, dùng để làm gara xe hơi. Phòng bếp và phòng ăn được tách riêng. Đây là thiết kế nhà ở khá mới lạ, mang đến cảm giác thoải mái và hạn chế được khói bụi, dầu mỡ từ khu vực bếp.

Mặt bằng tầng 2 là khu vực sinh hoạt chung với phòng khách lớn và phòng ngủ riêng tư. Phía ngoài phòng khách là ban công được trồng nhiều cây xanh thoáng đãng.

Bản vẽ thiết kế nhà ống 2 tầng 5x20m
Bản vẽ nội thất nhà ống 5x20m 2 tầng thiết kế ấn tượng

Bản vẽ nhà 5x20 2 tầng đơn giản, không cầu kì

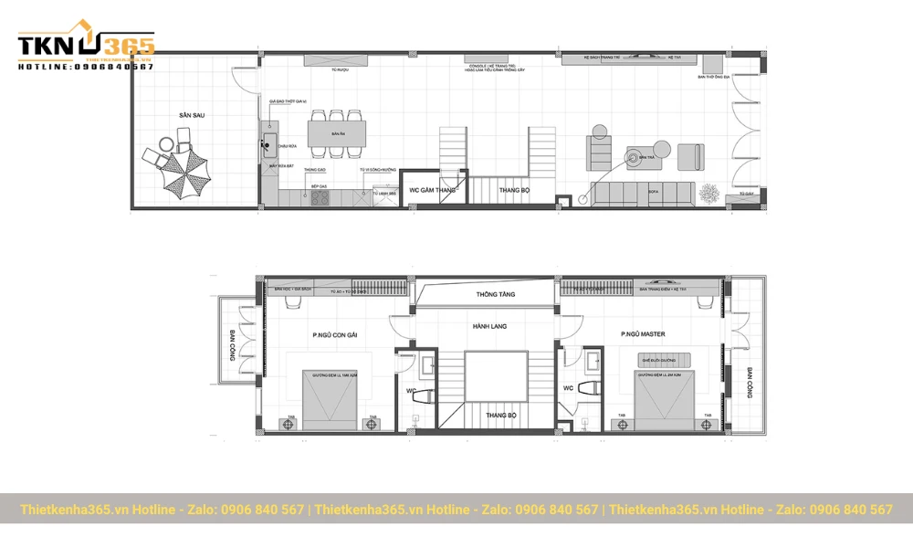
Mặt bằng tầng 1 có phòng khách diện tích lớn, nối thông với khu vực bếp ăn. Sân trước sử dụng để đặt xe hơi, sân sau nhỏ hơn dùng để trồng cây xanh mát mẻ, thoáng đãng. Phòng ngủ cho khách được đặt ở cạnh khu vực bếp ăn. 

Tầng 2 bao gồm 2 phòng ngủ, 1 phòng ngủ master cho bố mẹ kết hợp phòng làm việc và 1 phòng ngủ nhỏ hơn cho con cái. Cả 2 đều có ban công trồng cây xanh bên ngoài. 

Bản vẽ thiết kế nhà ống 2 tầng 5x20m
Bản vẽ thiết kế nhà ống 2 tầng 5x20m phổ biến

Mẫu thiết kế nhà ống 2 tầng 1 tum 5x20m với phong cách hiện đại 

Mặt bằng tầng 1 bao gồm phòng khách và khu vực bếp ăn thông với nhau giúp tối ưu diện tích. Phòng ngủ cho khách được đặt sát với khu vực sinh hoạt chung. Sân trước có diện tích rộng đủ để làm gara xe hơi.

Tầng 2 bao gồm 2 phòng ngủ và phòng sinh hoạt chung cho gia đình. Khu vực giặt phơi, sân thượng được chuyển lên tầng tum. Thiết kế thông tầng mang đến cảm giác thoáng đãng, thoải mái. 

Bản vẽ thiết kế nhà ống 2 tầng 5x20m
Bản vẽ nhà ống 2 tầng 1 tum 5x20m với phong cách hiện đại

Bản vẽ nhà 2 tầng 5x20 mái bằng

Mặt bằng tầng 1 được thiết kế để sử dụng cho việc sinh hoạt chung, bao gồm khu vực sân trước, phòng khách và khu vực bếp ăn. Ngoài ra, tầng này còn có phòng ngủ cho khách.

Tầng 2 bao gồm 2 phòng ngủ, mỗi phòng đều có ban công và được trồng cây xanh. Không gian còn lại dùng để giặt phơi. Thiết kế thông tầng giúp không khí và ánh sáng được lưu thông hiệu quả. 

Bản vẽ thiết kế nhà ống 2 tầng 5x20m
Bản vẽ nhà 2 tầng 5x20 mái bằng hiện đại

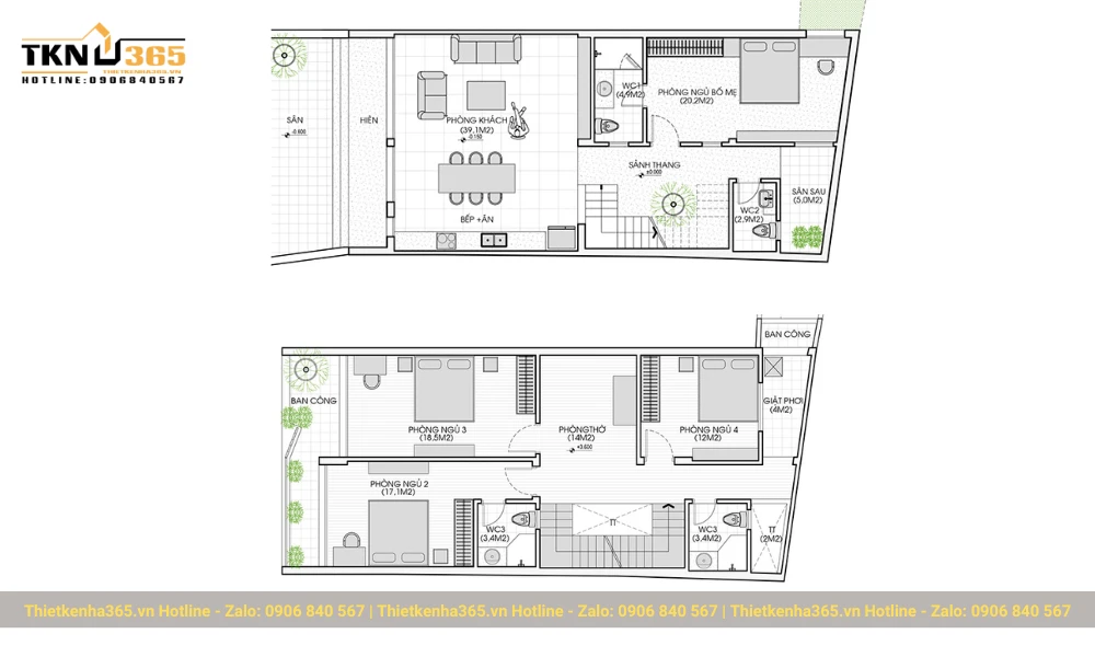
Bản vẽ thiết kế nhà ống 2 tầng 5x20m đẹp và độc đáo 

Mặt bằng tầng 1 có khu vực sân trước, phòng khách và không gian bếp + ăn. Diện tích sân trước rộng, có thể sử dụng để đặt xe hơi. Tầng 1 còn có thêm nhà kho để cất những đồ vật không cần thiết. 

Tầng 2 có diện tích gần như tương đương với tầng 1, bao gồm 2 phòng ngủ. Khu vực ban công trồng nhiều cây xanh mang lại cảm giác thoáng mát. Ngoài ra, còn bố trí thêm phòng thay đồ chung cho gia chủ. 

Bản vẽ thiết kế nhà ống 2 tầng 5x20m
Bản vẽ thiết kế nhà ống 5x20m 2 tầng đẹp và độc đáo

Bản vẽ nhà 5x20 2 tầng đẹp và hiện đại

Mặt bằng tầng 1 bao gồm phòng khách, khu vực bếp, ăn và sân trước. Sân có diện tích rộng, có thể đặt bàn ghế để gia chủ ngồi thư giãn hay tiếp khách. 

Mặt bằng tầng 2 là khu vực nghỉ ngơi của gia đình với thiết kế 2 phòng ngủ. Không gian còn lại được dùng để đặt các đồ vật trưng bày, trang trí. 

Bản vẽ thiết kế nhà ống 2 tầng 5x20m
Bản thiết kế nhà nhà ống 2 tầng 5x20m hiện đại

Thiết Kế Nhà 365 – Nhà thầu thiết kế nhà ống 2 tầng 5x20m trọn gói chuyên nghiệp

Nếu bạn đang tìm kiếm một địa chỉ chuyên thiết kế nhà ống 2 tầng uy tín, chất lượng với giá cả phải chăng thì có thể tham khảo ngay thông tin tại Thiết Kế Nhà 365. Với hơn 10 năm kinh nghiệm trong lĩnh vực thiết kế xây dựng, chúng tôi cam kết sẽ mang đến cho khách hàng những bản thiết kế đúng theo yêu cầu, sẵn sàng giải đáp mọi thắc mắc và tư vấn tận tình. 

Ngoài ra, Thiết Kế Nhà 365 cũng cam kết chỉ sử dụng những nguyên vật liệu chất lượng, cung cấp các giải pháp hàng đầu cho quý khách hàng trong vấn đề thi công xây dựng, là địa chỉ để khách hàng trao trọn niềm tin.

Đừng quên liên hệ ngay với Thiết Kế Nhà 365 qua thông tin dưới đây để được tư vấn và báo giá cụ thể:

CÔNG TY TNHH THIẾT KẾ NHÀ 365

  • Địa chỉ 1: 294 Lê Trọng Tấn, Phường Sơn Kỳ, Quận Tân Phú, Thành Phố Hồ Chí Minh
  • Địa chỉ 2: 45 TK2, Xã Bà Điểm, Huyện Hóc Môn, TP. Hồ Chí Minh
  • Điện thoại: 0906.840.567
  • Email: info@thietkenha365.vn

Công Ty TNHH Thiết Kế Nhà 365

  • Địa chỉ office: 294 Lê Trọng Tấn, Phường Tây Thạnh, Quận Tân Phú, Thành Phố Hồ Chí Minh
  • Email: thietkenha365@gmail.com
  • Số điện thoại: 0906840567 – Mr. Thắng
  • Website: https://demo.thietkenha365.vn/

Hoàng Đức Thắng

Hoàng Đức Thắng là kiến trúc sư đồng thời là CEO của Công ty Thiết Kế Nhà 365, tôi luôn cập nhật những xu hướng mới nhất trong lĩnh vực xây dựng, kiến trúc và nội thất để mang đến cho bạn đọc những thông tin bổ ích nhất. Tôi luôn sẵn sàng chia sẻ những kinh nghiệm của mình để giúp bạn đọc có thể xây dựng được những ngôi nhà không chỉ đẹp mà còn hoàn hảo về mọi mặt.
Hoàng Đức Thắng – CEO của Công ty TNHH Thiết Kế Nhà 365

HẸN GẶP SAU 1H

Trực tiếp với chuyên gia

Gọi: 0906.840.567

(Mr. Thắng)

NHẬN TƯ VẤN MIỄN PHÍ

Trao đổi trực tiếp với KTS 10 năm kinh nghiệm.

Nhận thiết kế và thi công nhà ở khu vực miền Nam





    Gợi ý viết yêu cầu: bạn cần sửa nhà hay xây mới, diện tích bao nhiêu, ngân sách dự kiến,...

    ĐỂ THÔNG TIN NHẬN TƯ VẤN NGAY





      Gợi ý viết yêu cầu: bạn cần sửa nhà hay xây mới, diện tích bao nhiêu, ngân sách dự kiến,...