Mẫu nhà 1 tầng 3 phòng ngủ 120m2 đang là mẫu thiết kế nhà ở mơ ước của nhiều gia đình hiện nay. Bởi vì mẫu nhà này có diện trúc rộng rãi, dễ dàng lựa chọn phong cách thiết kế và thể hiện được cá tính riêng của gia chủ. Trong bài viết hôm nay, Thiết Kế Nhà 365 sẽ gửi đến bạn những mẫu nhà 1 tầng 3 phòng ngủ 120m2 đẹp và tối ưu chi phí nhất hiện nay.
Một số ưu điểm mẫu nhà 1 tầng 3 phòng ngủ 120m2
Mẫu nhà 1 tầng 3 phòng ngủ 120m2 thường được xây dựng trên mảnh đất có diện tích lớn. Chính vì thế mà loại hình nhà ở này thường bắt gặp ở vùng nông thôn hoặc vùng ngoại thành.
Hơn nữa, nhà có diện tích 120m2 thiết kế 3 phòng ngủ thường dễ dàng bố trí khu vực sân vườn xanh mát ở xung quanh nhà. Thiết kế nhà với kết cấu 1 tầng thường chú trọng thiết kế các tiểu cảnh, cây xanh mang đến một không gian sống gần gũi với thiên nhiên. Do đó, mẫu nhà này sẽ mang đến không gian sống xanh thoáng đãng, đảm bảo cho sức khỏe và chất lượng của cuộc sống.
Ngoài ra, nhà 1 tầng có 3 phòng ngủ dễ dàng lựa chọn phong cách kiến trúc từ hiện đại đến tân cổ điển và các kiểu mái cho phù hợp với gu thẩm mỹ của gia chủ.

Lựa chọn mẫu nhà 1 tầng 3 phòng ngủ 120m2 theo tiêu chí nào?
Để chọn được một mẫu nhà 3 phòng ngủ đẹp 120m2 thích hợp với nhu cầu của một gia đình là không hề dễ. Chính vì thế, gia chủ cần xem xét đến một số tiêu chí sau đây để lựa chọn mẫu thiết kế nhà ở phù hợp nhất với sở thích và tình hình tài chính của mình:
Diện tích xây dựng
Thường thì diện tích của mỗi phòng ngủ sẽ dao động ở mức từ 10m2 đến 12m2 là đủ. Tuy nhiên, nhiều người lại thích diện tích phòng ngủ rộng hơn một chút từ 12m2 – 15m2. Do đó, bạn cần tính toán cẩn thận diện tích của các khu vực chức năng cho phù hợp với diện tích xây dựng.

Công năng sử dụng nhà
Đây là một tiêu chí vô cùng quan trọng giúp bạn chọn được một mẫu nhà 1 tầng đẹp 3 phòng ngủ 120m2. Bạn cần xác định được nhà có bao nhiêu phòng ngủ, bao nhiêu phòng vệ sinh. Phòng khách, phòng bếp và phòng ăn được thiết kế như thế nào. Từ đó, bạn sẽ phân bố xem kích thước các khu vực chức năng làm sao cho phù hợp.

Chi phí tối ưu
Tài chính là một yếu tố quan trọng giúp bạn hiện thực được mẫu nhà mơ ước của mình. Khi bạn đảm bảo được tài chính thì quá trình xây dựng ngôi nhà sẽ không bị gián đoạn và đảm bảo được chất lượng của công trình. Bên cạnh đó, bạn cần chú trọng lựa chọn các vật liệu xây dựng và vật liệu hoàn thiện cho phù hợp với tình hình tài chính của mình.

Mẫu thiết kế phù hợp
Khi bạn muốn xây dựng bất cứ ngôi nhà nào cũng cần xem xét mẫu thiết kế đó có phù hợp với nhu cầu và sở thích của mình hay không. Xem xét về cả mặt thẩm mỹ và cả mặt công năng sử dụng của mẫu thiết kế đó. Thiết kế mặt tiền ra sao, có đẹp hay không, thiết kế mặt bằng công năng như thế nào, có đầy đủ các khu vực chức năng hay không.

Phong cách thiết kế
Bạn cần lựa chọn phong cách kiến trúc phù hợp cho ngôi nhà. Chẳng hạn như đối với mẫu nhà cấp 4 3 phòng ngủ 120m2 thì bạn có thể lựa chọn phong cách hiện đại, tân cổ điển hay phong cách cổ điển cho công trình tổ ấm của mình. Việc lựa chọn phong cách thiết kế sẽ thể hiện được gu thẩm mỹ và cá tính riêng của gia chủ.

Tổng hợp 25+ Mẫu nhà 1 tầng 3 phòng ngủ 120m2 đẹp tinh tế
Mẫu nhà 1 tầng 3 phòng ngủ 120m2 mái ngói
Mẫu thiết kế nhà 120m2 đẹp 1 tầng 3 phòng ngủ có mái ngói thường được thiết kế theo phong cách hiện đại. Bạn có thể lựa chọn mái ngói đất nung theo kiểu truyền thống hoặc ngói kiểu tráng men hoặc ngói màu. Hiện nay mái ngói cũng có nhiều màu sắc cho bạn lựa chọn với giá trị thẩm mỹ cao.
Bạn có thể chọn nhà kiểu mái thái màu xám kết hợp với màu sơn tường màu hồng cam nhạt và màu trắng. Cách phối màu này sẽ tạo nên vẻ đẹp hiện đại, sang trọng trong thiết kế. Cửa chính và cửa sổ đều được làm bằng cửa kính kết hợp với rèm che đẹp mắt.

Thiết kế nhà 120m2 1 tầng 3 phòng ngủ phong cách tân cổ điển
Phong cách tân cổ điển thể hiện ở các họa tiết trang trí cầu kỳ ở hai đầu cột nhà, lớp trang trí trên cửa sổ, phần mái hiên nhà. Hơn nữa, hệ thống cửa được làm bằng gỗ vừa tăng sự sang trọng vừa mang tính truyền thống và đảm bảo an toàn cho gia đình. Hệ mái Nhật to lớn làm tăng thêm vẻ kiên cố, đồ sộ và bề thế của công trình nhà ở.

Mẫu nhà 3 phòng ngủ 120m2 1 tầng phong cách Châu Âu
Hoặc nếu bạn thích vẻ đẹp sang trọng của trời Tây thì hãy lựa chọn mẫu thiết kế nhà cấp 4 3 phòng ngủ theo phong cách châu Âu. Ngôi nhà có mái màu xanh đậm nổi trội trên nền sơn trắng sang trọng, hiện đại. Vẻ đẹp nhẹ nhàng, tinh tế của ngôi nhà khiến bao gia chủ quan tâm nghiên cứu. Không chỉ thế, sân vườn được thiết kế đơn giản nhưng đủ để làm không gian sống trở nên dễ chịu hơn.

Mẫu nhà 3 phòng ngủ 1 tầng 120m2 mái thái
Nhà mái thái luôn là mẫu nhà ở được đánh giá cao đối với các gia chủ người Việt. Mái thái không những được đánh giá cao về khả năng thoát nước, chống thấm mà còn được đánh giá cao về giá trị thẩm mỹ.
Mái thái có độ đốc lớn làm tăng chiều cao của ngôi nhà lên đáng kể. Do đó, trông ngôi nhà mái thái sẽ cao lớn, bề thế hơn các mẫu nhà mái bằng. Cách phối màu hiện đại cũng tạo nên điểm nhấn ấn tượng trong mắt người xem. Phần mái nhà có màu xanh xám đậm, sơn nhà màu xanh nhạt với các đường sọc ngang đậm màu nổi bật.

Mẫu nhà cấp 4 3 phòng ngủ 120m2 mái bằng
Ngôi nhà này được phối màu xám trung tính với màu vàng tươi sáng, điểm thêm một chút sơn trắng đã tạo nên vẻ ngoài cực kỳ ấn tượng. Nhà được thiết kế theo kiểu không gian mở với sân trước của ngôi nhà rộng rãi, hệ cửa kính rộng lớn để tăng độ lưu thông không khí. Xung quanh ngôi nhà được trồng nhiều cây xanh tươi giúp không khí ngôi nhà trở nên mát mẻ, dễ chịu và tốt cho sức khỏe hơn.

Thiết kế nhà 3 phòng ngủ 120m2 1 tầng có gara hiện đại
Ngôi nhà có gara sẽ phù hợp với các gia đình có phương tiện ô tô để đi lại. Gara sẽ giúp gia chủ tiết kiệm được một khoản lớn tiền cho bãi đỗ xe hàng năm nên được nhiều người quan tâm.
Ngôi nhà tầng 3 phòng ngủ 120m2 được thiết kế theo phong cách châu Âu đẹp giản dị, hiện đại. mái của ngôi nhà màu xanh đậm có ống khói. Màu sơn chủ đạo là màu vàng nhạt. Trước nhà được ốp gạch thẻ màu đá tự nhiên trông cực kỳ ấn tượng. Gara ô tô được bố trí ở ngay lối ra với hệ cửa cuốn để đảm bảo sự thuận tiện trong di chuyển.

Mẫu nhà cấp 4 1 tầng 3 phòng ngủ 120m2 chỉ 650 triệu
Đây là một mẫu nhà 1 tầng 3 phòng ngủ 120m2 với mức chi phí chỉ 650 triệu đồng. Do đó, ngôi nhà được thiết kế theo phong cách hiện đại tối giản để tối ưu chi phí. Kiến trúc sư đã hạn chế tối đa các họa tiết trang trí cầu kỳ của ngôi nhà.
Mái nhà được thiết kế kiểu mái lệch để tạo điểm nhấn ấn tượng trong kiến trúc của công trình. Mặt tiền của ngôi nhà được ốp gạch màu vàng trắng. Toàn bộ hệ thống cửa được làm bằng kính để tận dụng ánh sáng và tăng độ thông thoáng cho ngôi nhà. Trước sân nhà có bố trí tiểu cảnh đẹp mắt tạo nên một không gian sống cực kỳ lý tưởng.

Thiết kế biệt thự 120m2 1 tầng 3 phòng ngủ sang trọng
Được thiết kế theo phong cách tân cổ điển sang trọng, thể hiện được địa vị của gia chủ trong xã hội. Một biệt thự được thiết kế theo hệ mái Nhật bề thế, vững chắc. Mặt tiền của ngôi nhà được ốp gạch màu ri xám trông cực kỳ ấn tượng. Các đường chỉ phào nổi thể hiện được vẻ đẹp riêng của phong cách tân cổ điển. Cửa chính của ngôi nhà được làm bằng gỗ tự nhiên đẹp mắt, chắc chắn. Còn cửa kính lại được làm bằng vật liệu kính với khung màu gỗ một cách hài hòa.

Mẫu nhà vườn rộng 120m2 1 tầng 3 phòng ngủ thoáng mát
Để có được độ thông thoáng nhất định cho ngôi nhà, các kiến trúc sư đã lựa chọn mái thái để thiết kế cho công trình. Bên cạnh đó, họ còn chọn cửa kính để giúp ngôi nhà tận dụng được ánh sáng tự nhiên. Cửa sổ lớn được bố trí xung quanh ngôi nhà để giúp mọi không gian sống đều được thông thoáng, dễ chịu và đảm bảo tốt cho sức khỏe của các thành viên trong gia đình.

Mẫu nhà cấp 4 120m2 3 phòng ngủ tại nông thôn
Ở nông thôn, các gia đình thường có diện tích đất rộng rãi để xây nhà chứ không chật hẹp giống như khu vực thành thị. Các gia chủ sẽ được thoải mái lựa chọn phong cách thiết kế. Bạn cũng có thể lựa chọn kiểu nhà mái Nhật với phong cách đơn giản, gần gũi như trong hình. Vật liệu gỗ được sử dụng nhiều ở hệ thống cửa và phần mái hiên. Thiết kế này sẽ giúp bạn cảm thấy được hòa mình với thiên nhiên, cảm thấy gần gũi và thoải mái mỗi khi về nhà.

Mẫu nhà cấp 4 3 phòng ngủ 120m2 1 tầng 1 phòng thờ
Phòng thờ thường được bố trí một cách riêng biệt so với các khu vực riêng hoặc nằm cạnh khu vực phòng khách để đảm bảo sự sạch sẽ và tôn nghiêm của khu vực này. Ngoài các khu vực phòng ngủ, phòng chức năng khác thì hãy bố trí phòng thờ một cách hợp lý trong mẫu nhà cấp 4 120m2 3 phòng ngủ 1 phòng thờ. Chẳng hạn như bạn có thể sử dụng vách ngăn trong phòng khách để làm phòng thờ hoặc treo bàn thờ ở trên cao trong phòng khách.

Bản vẽ thiết kế nhà 1 tầng 3 phòng ngủ 120m2 hiện nay
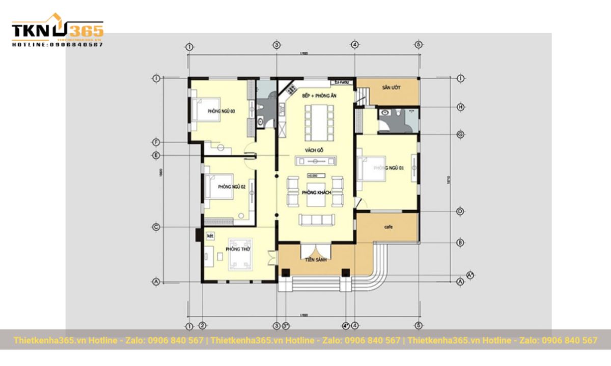
Mẫu bản vẽ 1
Trong mẫu thiết kế nhà 1 tầng 3 phòng ngủ 120m2 này thì các kiến trúc sư bố trí các khu vực chức năng một cách thông minh để tạo sự thuận tiện trong khu sử dụng. Cụ thể như phòng khách được bố trí ở ngay lối ra vào của cửa chính – trung tâm của ngôi nhà.
Đi thẳng vào từ phòng khách là phòng bếp kết hợp với phòng ăn. Phòng thờ được bố trí ở khu vực lồi của ngôi nhà nằm bên trái phòng khách. Nằm ở cùng phía với phòng thờ là 2 phòng ngủ. Ở bên phải phòng khách được bố trí 1 phòng ngủ và 1 sân phơi phía sau.

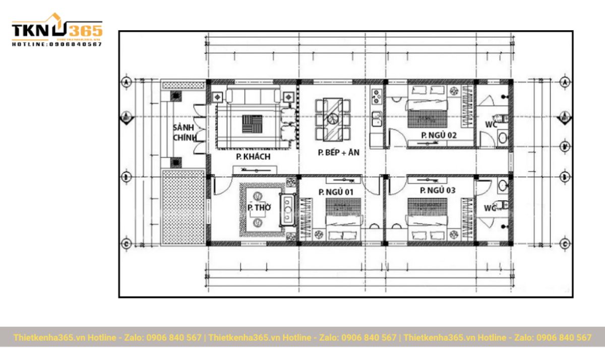
Mẫu bản vẽ 2
Trong mẫu bản vẽ này, các kiến trúc sư đã bố trí có 1 phòng khách nằm ở ngay sảnh chính đi vào. Khu vực này được thiết kế liên thông với phòng bếp kết hợp với phòng ảnh. Phía sau cùng là 2 phòng ngủ và 1WC chung. Nằm cạnh bên phải phòng khách là một phòng thờ được thiết kế riêng biệt. Đi sâu vào khu vực này là 2 phòng ngủ và 1 WC riêng.

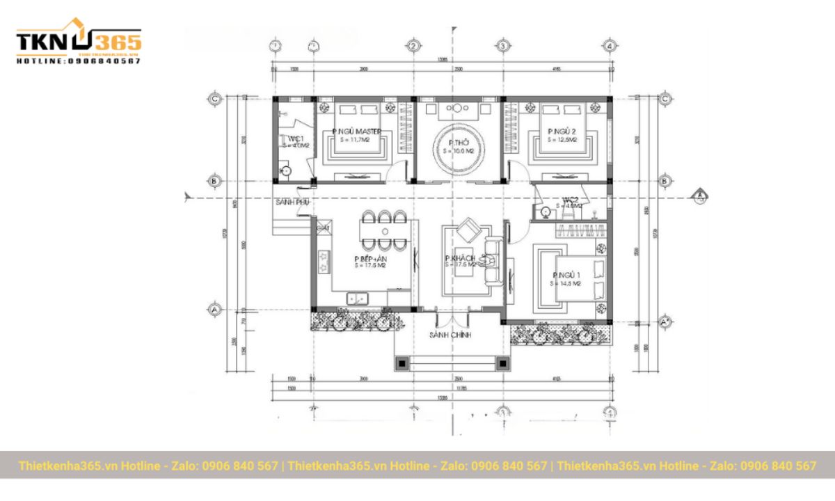
Mẫu bản vẽ 3
Trong mẫu thiết kế nhà 1 tầng 3 phòng ngủ này thì khu vực phòng khách liên thông phòng bếp + phòng ăn được bố trí rộng rãi ngay trung tâm ngôi nhà. Phía trong phòng khách là phòng thờ. Phòng ngủ master được bố trí phía sau phòng bếp. 2 phòng ngủ còn lại được bố trí ở bên phải phòng khách và phòng thờ.

Thiết Kế Nhà 365- Đơn vị thiết kế nhà 1 tầng 3 phòng ngủ 120m2 uy tín, chất lượng
Nếu bạn muốn xây dựng một mẫu nhà 1 tầng 3 phòng ngủ 120m2 chất lượng và tối ưu được chi phí thì hãy tìm một đơn vị chuyên thiết kế và thi công uy tín như Công ty Thiết Kế Nhà 365. Chúng tôi sẽ giúp bạn lên ý tưởng cũng như đưa ra phương án xây dựng tốt nhất, giảm thiểu rủi ro, đảm bảo an toàn và rút ngắn thời gian xây dựng. Lý do mà bạn nên tin tưởng và giao trọn công trình mơ ước của mình cho Thiết Kế Nhà 365:
- Có thâm niên hoạt động 10 năm trong lĩnh vực thiết kế thi công nhà ở và đã xây dựng thành công nhiều công trình nhà 1 tầng 3 phòng ngủ 120m2.
- Tư vấn miễn phí 100% cho khách hàng có nhu cầu
- Có đầy đủ các loại giấy tờ quan trọng và thủ tục pháp lý cần thiết.
- Có hợp đồng xây dựng cụ thể với các điều khoản rõ ràng, đầy đủ.
- Giá cạnh tranh, cam kết không có chi phí phát sinh.
- Công trình hoàn thiện để bàn giao giống đến 99% bản thiết kế.
Vừa rồi là tổng hợp những mẫu nhà 1 tầng 3 phòng ngủ 120m2 và những bản vẽ công năng phổ biến để bạn đọc tham khảo. Hy vọng với những thông tin này thì bạn sẽ tìm được ý tưởng tuyệt vời cho ngôi nhà tương lai của gia đình mình. Liên hệ ngay đến Công ty Thiết Kế Nhà 365 để được tư vấn miễn phí về mẫu thiết kế mà bạn đang quan tâm nhé!
>>>>> Xem thêm: Mẫu nhà hiện đại đẹp
Công Ty TNHH Thiết Kế Nhà 365
- Địa chỉ office: 294 Lê Trọng Tấn, Phường Tây Thạnh, Quận Tân Phú, Thành Phố Hồ Chí Minh
- Email: thietkenha365@gmail.com
- Số điện thoại: 0906840567 – Mr. Thắng
- Website: https://demo.thietkenha365.vn/









