Nếu bạn đang sở hữu một thửa đất thích hợp để xây nhà nhưng vẫn chưa quyết định được phong cách thiết kế nào phản ánh đúng cá tính của mình, hãy tham khảo top 55+ mẫu nhà 2 tầng 70m2 đang được ưa chuộng hiện nay. Những mẫu nhà này được Thiết Kế Nhà 365 chú trọng vào tính bền vững, thiết kế đẹp mắt và sang trọng, phù hợp với xu hướng hiện đại.
Tuyển chọn các mẫu nhà 2 tầng 70m2 ai nhìn cũng mê
Mẫu nhà vuông 2 tầng 70m2 được xây dựng dựa trên một bản mẫu hình vuông, có diện tích sử dụng tổng cộng là 70 mét vuông và mặt tiền thường rộng khoảng 7m. Căn nhà này thường bao gồm ba hoặc 4 phòng ngủ, cùng với các không gian sinh hoạt chung như phòng khách, phòng bếp, phòng ăn. Ngoài ra, còn có các không gian phụ như phòng tắm, nhà vệ sinh, phòng giặt và sân phơi, tạo điều kiện thuận lợi cho các hoạt động sinh hoạt hàng ngày của gia đình.
Đặc điểm riêng của mẫu nhà vuông 2 tầng 70m2 bao gồm:
- Diện tích vừa phải: Với diện tích 70m2, căn nhà này đủ rộng để phục vụ cho các gia đình có quy mô từ 3 đến 4 người. Diện tích này được xem là vừa phải, không quá lớn nhưng cũng không quá nhỏ, phù hợp cho nhiều nhu cầu sử dụng của gia đình.
- Kiến trúc đơn giản: Mẫu nhà vuông 2 tầng 70m2 thường được thiết kế với kiến trúc đơn giản, hiện đại, tạo cảm giác trẻ trung và năng động. Kiểu dáng này không chỉ mang lại sự tiện nghi mà còn phản ánh phong cách sống hiện đại của gia chủ.
- Công năng sử dụng linh hoạt: Với diện tích 70m2, căn nhà này có thể được bố trí các không gian sử dụng linh hoạt và hợp lý. Các phòng và không gian chung được thiết kế để đáp ứng nhu cầu sinh hoạt hàng ngày của gia đình một cách tiện lợi và hiệu quả.
- Chi phí xây dựng hợp lý: Thường thì chi phí xây dựng cho một mẫu nhà vuông 2 tầng 70m2 không quá cao, phù hợp với khả năng tài chính của đa số gia đình. Điều này giúp cho nhiều người có thể tiếp cận và sở hữu một căn nhà với chi phí hợp lý. Thông thường, chi phí xây dựng dao động từ 800 triệu đồng đến 1 tỷ đồng, tùy thuộc vào vật liệu và thiết kế cụ thể của từng căn nhà.
Để có thêm những ý tưởng cho mẫu thiết kế nhà phố của mình, hãy cùng Thiết Kế Nhà 365 tham khảo ngay các mẫu thiết kế nhà 70m2 2 tầng nổi bật dưới đây:
Mẫu nhà đẹp 70m2 2 tầng mái Nhật
Sự kết hợp hài hòa giữa phong cách hiện đại đầy sáng tạo và hệ mái Nhật màu xanh đã tạo ra một tổng thể độc đáo và thú vị. Dù có quy mô tối giản chỉ với một trệt và một lầu, ngôi nhà mái Nhật 2 tầng này vẫn mang đến một không gian sống tiện nghi và thoải mái cho cả gia đình.

Mẫu nhà đẹp 2 tầng 70m2 có sân vườn rộng rãi
Thiết kế hình dáng của ngôi nhà tạo ra một ấn tượng mạnh mẽ, toát lên vẻ tươi trẻ và sức khỏe. Mặc dù từ xa, ngôi nhà tỏ ra mạnh mẽ và cứng cáp, nhưng kiến trúc tỏ ra cân đối và chi tiết.
Điểm đặc biệt của ngôi nhà là sân vườn được thiết kế hai bên, với sự xuất hiện của nhiều cây xanh và hoa lá. Điều này tạo ra một sự kết nối gần gũi với tự nhiên, mang lại một không gian thú vị và thư giãn cho ngôi nhà.

Mẫu nhà phố vuông 2 tầng 70m2 phong cách hiện đại
Mặc dù có thiết kế đơn giản, nhưng ngôi nhà này vẫn gây ấn tượng mạnh bởi các đường nét mạnh mẽ và tinh tế, cùng với việc sử dụng diện tích tường ốp đá cao cấp, ngôi nhà tỏ ra nổi bật trong sự tương phản.
Ngôi nhà thiết kế thêm lan can để mở rộng không gian và tạo cảm giác thoáng đãng, cung cấp tầm nhìn tuyệt vời cho gia chủ. Hơn nữa, kiến trúc sư còn tạo điểm nhấn tuyệt vời trong không gian bằng cách bổ sung cây xanh ở các vị trí chiến lược. Đây là một phương án thiết kế đơn giản và tiết kiệm, nhưng lại rất hiệu quả trong việc làm cho căn nhà trở nên tươi mới và đầy sức sống.

Mẫu nhà 70m2 2 tầng mái Thái ở nông thôn
Ngôi nhà nông thôn 2 tầng mang phong cách tân cổ điển và có mức giá 800 triệu là một lựa chọn hợp lý nếu bạn đang phân vân về việc xây nhà. Tuy nhiên mẫu nhà này đòi hỏi chi phí đáng kể ở phần mặt tiền do yêu cầu trang trí phức tạp và nhiều chi tiết họa tiết.

Mẫu nhà vuông 2 tầng 70m2 kiểu chữ L
Thiết kế nhà chữ L có diện tích 70m2 này tạo không gian thoáng đãng cho toàn bộ căn nhà. Phần bên hông còn có thể được sử dụng làm gara hoặc không gian cho trẻ nhỏ chơi đùa. Mặc dù có thiết kế đơn giản, nhưng vẫn mang lại vẻ sang trọng nhờ sự kết hợp màu trắng đen tinh tế. Tầng hai đi kèm với 2 lan can, tạo ra một không gian sống rộng rãi. Hệ mái ngói được sơn màu xanh giúp ngôi nhà trở nên thêm phần tinh tế.

Mẫu nhà 2 tầng 70m2 phong cách tân cổ điển
Mặt tiền của ngôi nhà được thiết kế với hệ thống cột trụ vững chãi, tạo điểm nhấn cho kiến trúc tổng thể. Các cửa sổ được thiết kế theo kiểu vòm cuốn, tạo nên vẻ đẹp mềm mại cho ngôi nhà. Mẫu nhà vuông phong cách tân cổ điển được bố trí công năng sử dụng một cách khoa học, đáp ứng mọi nhu cầu sinh hoạt của gia đình.

Mẫu thiết kế nhà 70m2 2 tầng đơn giản sang trọng
Các công trình nhà 2 tầng 70m2 được tối ưu hóa chi phí thiết kế mà không làm phức tạp hoặc rườm rà, vẫn đảm bảo vẻ đẹp sang trọng và tinh tế. Ngoại thất của chúng nổi bật với hình khối vuông đơn giản, màu sắc trắng trang nhã làm chủ đạo. Sắc trắng không chỉ làm nổi bật ngôi nhà mà còn tạo cảm giác ấn tượng và thu hút, kết hợp hài hòa với nét đẹp tự nhiên và phóng khoáng.

Mẫu nhà 2 tầng 70m2 có 3 phòng ngủ
Ngôi nhà phố 70m2 với 2 hoặc 3 tầng nổi bật với thiết kế hiện đại và đầy cá tính. Sự phối hợp hài hòa giữa màu sắc, vật liệu trang trí và không gian sân vườn xanh mát tạo nên một diện mạo trang nhã và thu hút cho công trình. Loại hình nhà phố này rất phù hợp cho các gia đình có từ 2-3 thế hệ sinh sống, đảm bảo tiện nghi và tiết kiệm chi phí xây dựng.

Mẫu nhà 2 tầng 70m2 có 4 phòng ngủ
Thiết kế của ngôi nhà tạo ra một ấn tượng mạnh mẽ, với vẻ tươi trẻ và mạnh mẽ. Từ xa, ngôi nhà tỏ ra vững chãi và mạnh mẽ, nhưng kiến trúc lại mang đến sự cân đối và chi tiết.
Điểm đặc biệt của ngôi nhà là sân vườn được thiết kế kỹ lưỡng, với nhiều cây xanh và hoa lá. Điều này tạo ra một mối kết nối gần gũi với thiên nhiên, mang lại không gian thú vị và thư giãn cho ngôi nhà.

Mẫu thiết kế nhà phố 2 tầng 70m2 mái nhọn độc lạ
Thiết kế mái nhọn không chỉ mang lại sự mới mẻ và độc đáo cho ngôi nhà, mà còn giúp giảm tác động của tia UV mặt trời chiếu trực tiếp vào mái nhà. Điều này giúp duy trì sự cân bằng về nhiệt độ và ánh sáng bên trong ngôi nhà, tạo điều kiện sinh sống thoải mái hơn. Vì lý do này, các ngôi nhà mái nhọn đang trở nên phổ biến hơn, đặc biệt là ở những vùng có mùa hè nhiều nắng nóng.

Mẫu nhà vuông đẹp 2 tầng 70m2 lấy sáng tối đa
Đây là một mẫu nhà được ưu tiên sự thông thoáng. Kiến trúc sư đã tận dụng khéo léo hệ cửa kính để tối ưu hóa lượng ánh sáng và gió mát cho ngôi nhà. Với phong cách thiết kế hiện đại, ngôi nhà này mang đến không gian mới lạ, phù hợp với các gia chủ có cá tính mạnh mẽ.
Các đường nét chắc chắn, khỏe mạnh của ngôi nhà tạo sự bề thế, dù diện tích không lớn. Tầng 2 được thiết kế nối liền với sân thượng để tạo thêm không gian phơi quần áo và…

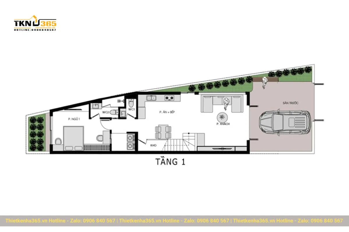
Tư vấn công năng nhà 2 tầng 70m2 đầy đủ tiện nghi
Tầng 1 được kiến trúc sư tận dụng triệt để mọi không gian sử dụng, ưu tiên vẫn là sự thông thoáng và tiện nghi. Công năng tầng 1 được chia thành các khu vực chức năng cụ thể bao gồm: sân vườn trước, phòng khách, phòng bếp + ăn, phòng ngủ và khu vực sân sau được tận dụng làm nơi giặt và phơi đồ.

Khi bước lên tầng 2 từ cầu thang, bạn sẽ thấy khu vực phòng sinh hoạt chung nằm ở trung tâm của căn nhà, kết hợp với nhà vệ sinh chung và lối ra ban công ở bên hông nhà, tạo điều kiện cho không gian thư giãn và thoải mái cho gia đình.
Tiếp theo là hai phòng ngủ có diện tích tương đương, được thiết kế một cách khoa học và theo chuẩn phong thủy. Phòng thiền kết hợp yoga hướng ra phía mặt tiền, có không gian rộng rãi và thông thoáng, mang lại cảm giác yên bình và thư thái.

Nguyên tắc cần nhớ khi thiết kế nhà 70m2 2 tầng
Để tạo ra một mẫu nhà vuông đẹp và tiện nghi, đặc biệt là một ngôi nhà 2 tầng với diện tích 70m2, cần tuân theo những nguyên tắc quan trọng sau:
Chọn một phong cách thiết kế phù hợp
Có đa dạng phong cách thiết kế cho nhà vuông 2 tầng với diện tích 70m2 để bạn lựa chọn, bao gồm: hiện đại, tân cổ điển, cổ điển,… Mỗi phong cách đều mang đến một vẻ đẹp độc đáo cho ngôi nhà. Hãy chọn phong cách thiết kế phù hợp với sở thích và nhu cầu sử dụng của gia đình.
Đánh giá diện tích và các công năng sử dụng
Với diện tích nhà 2 tầng 70m2 không quá rộng, việc bố trí công năng sử dụng phải được thực hiện một cách hợp lý để tận dụng tối đa diện tích. Công năng này cần được thiết kế phù hợp với nhu cầu của gia đình, bao gồm các không gian như: phòng khách, phòng bếp, phòng ngủ, phòng vệ sinh,…
Chọn lựa vật liệu xây dựng và trang trí nội thất
Lựa chọn vật liệu xây dựng chất lượng là yếu tố quan trọng giúp ngôi nhà 2 tầng diện tích 70m2 trở nên bền vững và an toàn. Một trong những cách quan trọng để đảm bảo chất lượng của vật liệu xây dựng là thông qua việc lựa chọn nguồn gốc rõ ràng và được kiểm định. Điều này đảm bảo rằng vật liệu được sử dụng không chỉ đáp ứng các tiêu chuẩn kỹ thuật mà còn tuân thủ các quy định về an toàn và môi trường.
Tận dụng ánh sáng tự nhiên
Đảm bảo ánh sáng tự nhiên là một yếu tố quan trọng để tạo cảm giác thoáng đãng và mát mẻ cho ngôi nhà. Vì vậy, việc thiết kế hệ thống cửa sổ và giếng trời là rất cần thiết để đảm bảo sự lưu thông của ánh sáng và gió tự nhiên vào trong nhà.

Chú ý đến phong thủy
- Hướng nhà: Lựa chọn hướng Đông Nam, Đông, hoặc Nam là lựa chọn tốt nhất cho mẫu nhà vuông 70m2 2 tầng, bởi các hướng này mang lại vượng khí, tài lộc và may mắn cho gia đình.
- Mặt tiền nhà: Mặt tiền nhà cần được thiết kế rộng rãi, thoáng đãng để có thể đón nhận ánh sáng và gió tự nhiên một cách tốt nhất.
- Cửa chính: Đặt cửa chính ở vị trí hợp lý, tránh đối diện với cửa nhà vệ sinh hoặc bếp để tối ưu hóa lưu thông năng lượng.
- Cầu thang: Đặt cầu thang ở vị trí hợp lý, tránh đặt ở trung tâm nhà để không làm cắt ngang lưu thông năng lượng.
- Phòng ngủ:Đặt phòng ngủ ở vị trí yên tĩnh, tránh xa khỏi tiếng ồn bên ngoài và tránh đặt ở tầng trệt để đảm bảo sự riêng tư và thoải mái.
- Phòng bếp:Thiết kế phòng bếp ở vị trí hợp lý, tránh đặt đối diện với phòng ngủ hoặc nhà vệ sinh để tránh xung đột trong sự lưu thông năng lượng và không gian.
- Phòng thờ: Đặt phòng thờ ở vị trí trang nghiêm và linh thiêng, thường ở tầng trên để tạo điều kiện thuận lợi cho việc thực hiện các nghi lễ tâm linh và tránh sự ảnh hưởng của tiếng ồn bên ngoài.
Tuân theo những lưu ý về phong thủy sẽ giúp mang lại vượng khí, tài lộc và may mắn cho gia đình trong ngôi nhà.
Trên đây là tổng hợp mẫu nhà vuông 2 tầng 70m2 đẹp ngất ngây cuốn hút người xem. Mỗi căn nhà là một tác phẩm nghệ thuật, kết hợp giữa vẻ đẹp hiện đại, sự sang trọng và tiện nghi. Hy vọng bạn sẽ tìm được nguồn cảm hứng cho ngôi nhà của mình. Hãy liên hệ với Thiết Kế Nhà 365 để sở hữu những mẫu nhà vuông 2 tầng 70m2 trong mơ, độc đáo theo phong cách riêng của bạn nhé!
Công Ty TNHH Thiết Kế Nhà 365
- Địa chỉ office: 294 Lê Trọng Tấn, Phường Tây Thạnh, Quận Tân Phú, Thành Phố Hồ Chí Minh
- Email: thietkenha365@gmail.com
- Số điện thoại: 0906840567 – Mr. Thắng
- Website: https://demo.thietkenha365.vn/









