Nhà chữ L là mẫu nhà phố đẹp mang có tính thẩm mỹ cao, đáp ứng nhu cầu công năng tốt và tận dụng được tối đa diện tích xây dựng. Ngoài ra, mẫu nhà này sẽ luôn có một khoảng sân vườn để vui chơi, thư giãn cho gia đình, rất thích hợp cho nhà có trẻ em và người lớn tuổi. Trong bài viết này Thiết Kế Nhà 365 sẽ gửi đến bạn đọc tổng hợp 30+ mẫu thiết kế nhà chữ L 1 tầng được ưu chuộng nhất 2023.
Một số ưu điểm khi xây nhà chữ l 1 tầng
Chi phí thấp
Nhà chữ L 1 tầng thường không cần các loại nguyên vật liệu xây dựng cầu kỳ, khó tìm. Do đó, chi phí mua sắm nguyên vật liệu cũng không quá nhiều. Bên cạnh đó, thời gian xây nhà cũng nhanh chóng, gia chủ sẽ tiết kiệm được một khoản lớn tiền chi phí nhân công.

Bền bỉ theo thời gian
Mẫu nhà chữ L 1 tầng thường được lựa chọn xây dựng ở vùng có nhiều thiên tai. Bởi vì, mẫu thiết kế nhà này có kết cấu kiên cố, không cần bảo trì thường xuyên và có khả năng chống chịu tốt với các ảnh hưởng của thời tiết. Nhà 1 tầng hiện đại không phải chịu nhiều sức gió khi mưa bão như những ngôi nhà cao tầng khác nên cũng được ưa chuộng hơn.

Đa dạng phong cách thiết kế
Mẫu thiết kế nhà chữ L phù hợp với đa dạng phong cách thiết kế từ phong cách hiện đại đến tân cổ điển hay cổ điển kiểu châu Âu. Do đó, cho dù gia chủ thích phong cách nào thì cũng có thể lựa chọn mẫu thiết kế nhà chữ L 1 tầng này.
Bên cạnh đó, còn tùy vào nhu cầu công năng sử dụng, diện tích mảnh đất và khả năng tài chính của gia đình để lựa chọn phong cách thiết kế cho phù hợp. Chẳng hạn như những người có tài chính dư giả, mảnh đất xây dựng rộng lớn thì hoàn toàn có thể lựa chọn phong cách tân cổ điển cầu kỳ, xa hoa tráng lệ. Ngược lại thì nên lựa chọn phong cách hiện đại đơn giản để tiết kiệm chi phí xây dựng.

Tổng hợp mẫu nhà 1 tầng chữ L đẹp tiện nghi cho mọi gia đình
Mẫu nhà chữ L mái bằng 1 tầng không gian mở
Nhà mái bằng chữ L 1 tầng không gian mở là một trong các mẫu thiết kế nhà đẹp ngày càng được nhiều người ưa chuộng. Đặc biệt nó cực kỳ thích hợp với các dự án ở khu đô thị đông đúc.

Trong mẫu thiết kế này, vật liệu kính được sử dụng nhiều để giúp ngôi nhà tận dụng được tối đa ánh sáng tự nhiên. Khi ở trong nhà, gia chủ hoàn toàn có thể ngắm cảnh ở ngoài sân vườn để thư giãn. Bên cạnh đó, ngôi nhà còn được bố trí nhiều cửa sổ lớn để giúp không gian sống trở nên thoáng đãng hơn.

Mẫu thiết kế nhà chữ L 1 tầng mái bằng được thiết kế tinh tế
Mẫu nhà chữ L 1 tầng mái bằng tinh tế phù hợp với những cặp vợ chồng trẻ. Mẫu nhà này mang phong cách hiện đại, đơn giản, tiết kiệm chi phí nhưng vẫn đảm bảo đầy đủ công năng sử dụng.

Tông màu chủ đạo được sử dụng là những tông màu trắng tinh khiết, sang trọng nhưng vẫn mang đến một không gian đầm ấm cho cả gia đình. Ngoài ra, kiểu thiết kế này không quá cầu kỳ nên nó sẽ giúp không gian sống trở nên rộng rãi hơn.

Mẫu thiết kế nhà chữ L 1 tầng phong cách hiện đại
Mẫu nhà chữ L 1 tầng được thiết kế theo phong cách hiện đại, trẻ trung năng động được các gia chủ trẻ tuổi vô cùng yêu thích. Trong mẫu thiết kế này, người ta sử dụng các vật liệu quen thuộc như kim loại, kính, gỗ,… mang đến một vẻ đẹp tinh tế và vô cùng bắt mắt. Tuy nhiên, gia chủ cần lưu ý về cách phối màu sắc làm sao cho hài hòa, tránh làm rối mắt.

Đối với phong cách hiện đại thì bạn có thể chọn kiểu mái phù hợp với sở thích của mình như mái bằng, mái nhật hay mái thái,… Ngoài ra, nên bố trí các cửa nhỏ khu vực trồng cây xanh xung quanh nhà.

Mẫu thiết kế nhà chữ L mái bằng 1 tầng 2 phòng ngủ
Nhà chữ L 1 tầng mái bằng có 2 phòng ngủ phù hợp với gia đình nhỏ có 2-4 người sinh sống. Kiểu thiết kế này không chỉ đảm bảo không gian sinh hoạt chung cho cả gia đình mà còn đảm bảo không gian sinh hoạt riêng tư cho các thành viên.
Gia chủ nên đầu từ cho phòng ngủ master cho phù hợp với sở thích của mình. Nên có bố trí các khu vực trồng cây xanh để giúp không gian sống trở nên gần gũi với thiên nhiên hơn.


Mẫu thiết kế nhà chữ L tiện nghi 1 tầng 3 phòng ngủ
Nếu gia đình của bạn có từ 4-5 thành viên sinh sống thì hãy lựa chọn mẫu thiết kế nhà chữ L này. Về cách thiết kế phòng ngủ thì bạn có thể tùy chọn phong cách theo mong muốn của mình. Tuy nhiên, nếu ngôi nhà có diện tích không đủ rộng thì hãy chọn kiểu thiết kế đơn giản để tránh không gian sống trở nên chật chội.


Mẫu thiết kế nhà chữ L cấp 4 2 phòng ngủ 5x20
Nhà cấp 4 là mẫu nhà có thiết kế 1 tầng được ưu chuộng nhất hiện nay. Thiết Kế Nhà 365 sẽ gửi đến bạn đọc hai mẫu thiết kế nhà chữ L cấp 4 với diện tích 5x20m có 2 phòng ngủ dưới đây được nhiều người yêu thích lựa chọn. Hệ thống cửa của ngôi nhà được sử dụng bằng chất liệu kính để giúp thu hút ánh sáng tự nhiên, giúp khắc phục được nhược điểm thiếu ánh sáng của mẫu nhà có chiều sâu dài. Chất liệu kính còn tạo không gian mở, đem đến không gian rộng rãi.


Thiết kế nhà chữ L cấp 4 mái bằng 66m2 đơn giản
Đây là một mẫu nhà cấp 4 đẹp vô cùng phổ biến ở vùng nông thôn. Mẫu thiết kế này thường có thiết kế vô cùng đơn giản, không có nhiều chi tiết trang trí rườm rà, phức tạp.

Tông màu chính được sử dụng trong mẫu thiết kế này là những màu cơ bản trung tính như màu trắng, màu xám và màu đen,… Ngoài ra, người ta còn có thể sử dụng một số vật liệu quen thuộc khác trong khi xây dựng như gạch ốp cột hay cửa gỗ.

Mẫu nhà chữ l 1 tầng 4 phòng ngủ mái bằng rộng rãi
Nhà cấp 4 hình chữ L có mái bằng với 4 phòng ngủ sẽ đảm bảo không gian rộng rãi cho một gia đình có 5-6 thành viên. Trong thiết kế này, các phòng ngủ sẽ được bố trí cân đối và có 1 phòng ngủ master để làm tăng sự sang trọng cho ngôi nhà.


Mẫu nhà chữ L mái bằng mặt phố sang trọng
Đây là một mẫu nhà phố được xây dựng trên một mảnh đất có diện tích không quá lớn. Trong những mẫu thiết kế này, người ta thường sử dụng hệ thống đèn có ánh sáng vàng để mang đến sự ấm áp cho ngôi nhà.

Bên cạnh đó, người ta còn được bố trí thêm cây xanh xung quanh cửa để mang đến một không gian sống dễ chịu, trong lành hơn. Ngoài ra, bạn nên lưu ý đến cách bố trí nội thất làm sao cho khoa học, đảm bảo nhu cầu công năng tốt nhất.

Mẫu nhà chữ L 1 tầng đẹp ở nông thôn
Nhà mái thái hình chữ L là một mẫu thiết kế nhà ở vô cùng được ưa chuộng ở nông thôn. Mẫu nhà này có thiết kế đơn giản nhưng vẫn có vẻ đẹp tinh tế, bắt mắt. Phần mái thái sẽ giúp làm tăng khả năng chống nóng, thoát nước tốt. Hiện nay, phần ngói thái có nhiều màu thời thượng để bạn có thể tùy chọn theo sở thích.
Ngoài ra, những ngôi nhà ở nông thôn thường có một mảnh sân vườn xanh mát. Phần cây cối, hoa lá này sẽ giúp điều hòa không khí, đem đến không gian mát mẻ, tươi mới cho ngôi nhà.


Nhà 1 tầng chữ L mái thái đơn giản
Mẫu nhà này có thiết kế đơn giản, gần gũi nhưng không kém phần ấn tượng. Phần mái thái sẽ làm tôn lên vẻ đẹp thanh thoát cho ngôi nhà. Mặt tiền của ngôi nhà được kết hợp giữa hai tông màu trung tính là màu trắng và màu đen xám. Hệ thống cửa kính trong suốt giúp điều hòa không khí một cách hiệu quả.


Thiết kế nhà 1 tầng chữ l đẹp ấn tượng
Mẫu thiết kế căn nhà cấp 4 này mang đến vẻ đẹp sang trọng, ấn tượng trong mắt người xem. Phần mái thái được lựa chọn lớp mái ngói đỏ truyền thống nhưng lại vô cùng nổi bật. Hệ thống cửa được làm bằng gỗ kết hợp kính phù hợp với màu ngói. Phần dưới mái ngói được trang trí bằng gỗ tạo điểm nhấn đẹp mắt.


Thiết kế nhà chữ l 1 tầng đẹp phong cách Châu Âu
Phong cách châu Âu là một phong cách thiết kế kiến trúc ngày càng trở nên thịnh hành. Phần mái ngói màu xanh xám mang đến sự mộc mạc mà gần gũi cho ngôi nhà.

Nền sơn trắng kết hợp với gỗ nhựa có màu nâu đã tạo nên điểm nhấn cho tổng thể ngôi nhà. Hệ cửa kính mang đến vẻ đẹp sang trọng hiện đại nhưng không kém phần uyển chuyển, đẹp mắt. Đây chính là nơi nghỉ ngơi lý tưởng cho bạn sau một ngày làm việc vất vả.

Thiết kế mẫu nhà chữ l 1 tầng phong cách tân cổ điển
Phong cách tân cổ điển luôn mang đến sự sang trọng, đẳng cấp cho gia chủ. Mẫu thiết kế nhà chữ L 1 tầng mang phong cách tân cổ điển vừa mang đến vẻ đẹp hiện đại vừa có nét truyền thống.

Điểm nổi bật trong thiết kế này là các đường phào chỉ trang trí trên các bức tường cùng với các hình vòm nhẹ nhàng, uyển chuyển. Bên cạnh đó, một vài chi tiết hoa văn trang trí ngay dưới mái nhà cũng tạo nên điểm nhấn ấn tượng.

Thiết kế nhà vườn 1 tầng chữ l phong cách tối giản
Nếu bạn thích có một ngôi nhà với phong cách tối giản. Mọi họa tiết trang trí được tinh giản hoàn toàn và không có một chi tiết trang trí cầu kỳ nào. Tông màu trắng chủ đạo kết hợp với màu nâu của gỗ mang đến một không gian ấm áp và gần gũi hơn bao giờ hết. Phần đá ốp tường có màu xám tạo nên một kiến trúc đơn giản, tinh tế.


Mẫu nhà chữ L 400 triệu đầy đủ tiện nghi
Nếu bạn chỉ có 400 triệu thì mẫu nhà chữ L 1 tầng chính là mẫu thiết kế đáng lựa chọn. Mẫu thiết kế này có đầy đủ tiện nghi, phù hợp với những gia đình có từ 3-5 thành viên. Ngoài ra, ngôi nhà này còn được bố trí sân sau để thuận tiện cho hoạt động giặt phơi của gia đình.

Mẫu nhà chữ L 1 tầng đơn giản với 1 phòng thờ
Việc bố trí công năng ngôi nhà khoa học là tiêu chí hàng đầu cần quan tâm khi thiết kế nhà ở. Nhà chữ L có khu vườn được trồng nhiều cây xanh, gần gũi với thiên nhiên. Không gian phòng thờ được bố trí tách biệt với không gian sinh hoạt để thể hiện lòng thành kính với tổ tiên.


Tham khảo thêm: Mẫu thiết kế nhà chữ L 2 tầng
Mẫu bản vẽ nhà chữ L 1 tầng mái bằng đẹp nhất
Bản vẽ nhà cấp 4 chữ L mái bằng nông thôn đơn giản
Bản vẽ nhà chữ l 1 tầng mái bằng bố trí mặt bằng công năng một cách khoa học. Ngôi nhà này được bố trí phòng khách mở với phòng ăn, 3 phòng ngủ và 1 phòng bếp.

Mẫu bản vẽ nhà chữ L 1 tầng hiện đại
Mẫu bản vẽ nhà chữ L 1 tầng hiện đại với mặt bằng công năng được chia thành hai khối chính. Đi thẳng từ cửa chính vào là phòng khách bố trí liền với phòng ăn kết hợp phòng bếp. Phần còn lại là 3 phòng ngủ được bố trí thẳng hàng bao gồm 1 phòng ngủ master và 2 phòng ngủ thường.

Mẫu bản vẽ nhà cấp 4 mái bằng không gian thoáng mát
Mẫu bản vẽ nhà cấp 4 mái bằng này được chia thành 3 khối chính. Khối ở giữa là trung tâm của ngôi nhà được bố trí phòng khách kế tiếp là phòng bếp kết hợp phòng ăn. Khối bên phải phòng khách được bố trí 1 phòng ngủ, 2 WC. Khối bên trái của phòng khách là 2 phòng ngủ và 1 WC chung.

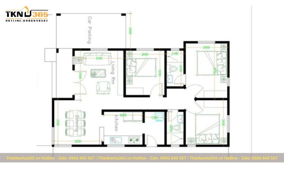
Mẫu bản vẽ nhà chữ L mái bằng có 3 phòng ngủ
Mẫu bản vẽ nhà chữ L mái bằng này được bố trí mặt bằng công năng với 3 phòng ngủ, 1 phòng khách, 1 phòng ăn và 1 phòng bếp.

Mẫu bản vẽ nhà chữ L đơn giản
Bản vẽ này được bố trí mặt bằng công năng một cách khoa học. Ngôi nhà này có 1 phòng khách, 1 phòng bếp, 1 phòng ngủ master và 1 phòng ngủ thường.

Một số điều cần lưu ý khi xây nhà chữ L 1 tầng mái bằng
Thiết kế phòng khách
Trong một ngôi nhà, phòng khách là khu vực trung tâm được quan tâm nhiều nhất. Đây là bộ mặt của ngôi nhà, là nơi tiếp khách và là không gian sinh hoạt chung của gia đình. Phòng khách được bố trí ngay giữa nhà, ưu tiên các tông màu trung tính như màu trắng, màu vàng hoặc màu nâu gỗ.

Thiết kế phòng ngủ
Phòng ngủ là nơi để các thành viên trong gia đình nghỉ ngơi và có những sinh hoạt riêng tư của mình. Do đó, khi thiết kế phòng ngủ thì cần đảm bảo được các yêu cầu sau:
- Đảm bảo diện tích tối thiểu để mang đến cảm giác dễ chịu cho người ở.
- Chọn các tông màu dễ chịu, tránh các tông màu gây chói mắt.
- Phòng ngủ master cần được thiết kế để đón ánh sáng tự nhiên, có lợi cho sức khỏe và cần đầu tư nội thất cẩn thận.
- Cần có 1 cửa sổ lớn để thông gió, đón ánh sáng tự nhiên và tránh sự bí bách, ngột ngạt.

Thiết kế phòng bếp
Phòng bếp là một không gian sinh hoạt chung của gia đình nên thường được bố trí kế với phòng khách. Phòng bếp cần có đầy đủ các dụng cụ, thiết bị cần thiết, thường được kết hợp thêm bàn ăn và đảo bếp rời. Ngoài ra, bạn còn có thể bố trí thêm quầy bar mini để làm tăng thêm sự sang trọng cho không gian phòng bếp.

Trên đây là một số thông tin về mẫu nhà chữ L 1 tầng và 30+ mẫu thiết kế nhà ở đẹp tiện nghi để bạn đọc tham khảo. Nếu bạn đang cần chọn một mẫu thiết kế nhà đẹp và đảm bảo đầy đủ công năng thì hãy liên hệ ngay đến Công ty Thiết Kế Nhà 365 để được tư vấn miễn phí, nhiệt tình.
Công Ty TNHH Thiết Kế Nhà 365
- Địa chỉ office: 294 Lê Trọng Tấn, Phường Tây Thạnh, Quận Tân Phú, Thành Phố Hồ Chí Minh
- Email: thietkenha365@gmail.com
- Số điện thoại: 0906840567 – Mr. Thắng
- Website: https://demo.thietkenha365.vn/









