Nhà mái Nhật 2 tầng đang hiện đang trở thành xu hướng lựa chọn của các gia chủ trong nhiều năm gần đây. Bởi vì đây là mẫu nhà có thiết kế đẹp mắt và có nhiều ưu điểm nổi bật so với nhiều mẫu thiết kế nhà ở khác. Hãy xem ngay bài viết “40+ Mẫu thiết kế nhà 2 tầng mái Nhật đón đầu xu hướng 2024” để có ý tưởng mới cho tổ ấm tương lai của mình bạn nhé!
Nhà mái Nhật 2 tầng là gì?
Nhà mái Nhật 2 tầng là một mẫu thiết kế nhà phố mang phong cách xây dựng có nguồn gốc từ Nhật Bản. Đặc trưng của kiểu thiết kế này là kết cấu vô cùng đơn giản với kiến trúc 2 tầng lầu với phần mái Nhật.
Mái Nhật là một kiểu mái nhà có độ dốc nhẹ được gọi với tên gọi khác là mái lùn. Loại mái nhà này sẽ được mở rộng theo nhiều hướng khác nhau, có độ dốc phù hợp để giúp thoát nước tốt và giảm thiểu tình trạng ứ đọng nước lại trên mái nhà. Khả năng chống nóng của kiểu mái Nhật này cũng được các chuyên gia đánh giá cao. Bên cạnh đó, kiểu mái này còn làm tăng vẻ đẹp thẩm mỹ cho công trình kiến trúc.

Ưu điểm nổi bật của nhà 2 tầng mái Nhật 2 hiện nay
Không phải ngẫu nhiên mà mẫu nhà mái Nhật 2 tầng ngày càng được nhiều người lựa chọn. Ngoài việc đây là một kiểu thiết kế nhà mới mẻ thì mẫu nhà này còn có nhiều ưu điểm nổi bật làm người khác không khỏi yêu thích như:
Chất liệu đa dạng và có hình dáng mở rộng
Với mẫu nhà 2 tầng đẹp mái Nhật thì bạn có thể lựa chọn các vật liệu xây dựng mà bạn yêu thích, để tạo nên vẻ đẹp độc đáo cho không gian sống của mình. Bên cạnh đó, điểm thu hút của nhà mái Nhật 2 tầng còn là kiểu hình dáng mở rộng. Có nghĩa là bạn có thể thỏa sức sáng tạo kiến trúc ngôi nhà theo phong cách mà mình mong muốn. Đây là một mẫu thiết kế nhà ở được người dùng đánh giá cao về kiến trúc cũng như chất liệu làm mái với độ bền vượt trội.

Thiết kế phong cách đơn giản nhưng tinh tế
Trong thực tế thiết kế và thi công nhà ở cho thấy, xây dựng nhà ở theo kiến trúc nhà mái Nhật khá đơn giản. Không có quá nhiều yêu cầu về họa tiết trang trí và chất liệu thi công mà kiểu công trình này sẽ hướng tới sự đơn giản, tinh tế, thuận tiện khi sử dụng kết hợp với không gian mở độc đáo.

Kiểu dáng nhà lạ mắt, đẹp độc đáo
Thiết kế nhà mái Nhật 2 tầng mang vẻ đẹp giao thoa giữa 2 nền kiến trúc của phương Đông và phương Tây. Chính vì thế, những mẫu công trình kiến trúc này kết hợp với sự sáng tạo của các kiến trúc sư mang đến một không gian mới lạ, độc đáo, tạo ấn tượng với mọi người ngay từ cái nhìn đầu tiên.

Tính thẩm mỹ cao
Một ưu điểm vượt trội của mẫu nhà mái Nhật 2 tầng là chúng có tính thẩm mỹ cao. Đặc biệt hệ thống mái ngói Nhật mang đến cảm giác sang trọng, bề thế cho ngôi nhà nên được rất nhiều người ưa chuộng. Chắc hẳn rằng ngôi nhà bạn được thiết kế với kiến trúc 2 tầng có mái Nhật luôn để lại ấn tượng tuyệt vời cho những ai trông thấy nó.

Diện tích nhà linh hoạt
Phong cách xây dựng kiểu nhà mái Nhật có 2 tầng phù hợp với mọi diện tích. Cho dù bạn đang có một mảnh đất với diện tích rộng lớn hay một mảnh đất có diện tích hẹp thì đều có thể lựa chọn mẫu thiết kế nhà ở này để xây dựng.
Đặc biệt, trong trường hợp mảnh đất của bạn có diện tích khiêm tốn thì lựa chọn nhà 2 tầng mái Nhật là một việc làm đúng đắn. Bởi vì, mẫu nhà này sẽ giúp bạn tận dụng được tối đa nhu cầu ánh sáng tự nhiên, mang đến một không gian mở rộng rãi, thoáng đãng cho ngôi nhà.

Phù hợp với khí hậu Việt Nam
Đây là một mẫu nhà phù hợp với khí hậu thời tiết mưa nắng thất thường và đầy khắc nghiệt của Việt Nam. Bởi vì phần mái Nhật sẽ có độ dốc vừa phải cho nên việc thoát nước vô cùng dễ dàng trong mùa mưa. Còn về mùa nắng thì loại hình nhà ở cũng có khả năng chống nắng tốt, khả năng làm mát cũng được nhiều người đánh giá cao.
Bên cạnh đó, mẫu nhà này có thiết kế vững chãi, bề thế nền có tính bền vững cao. Đặc biệt thích hợp với những vùng thường gặp nhiều thiên tai như mưa bão, lũ lụt.

Chi phí xây dựng hợp lý
Kiến trúc nhà 2 tầng mái Nhật thường có kiến trúc đơn giản, vật liệu xây dựng dễ tìm và không có quá nhiều họa tiết trang trí cầu kỳ như nhiều mẫu thiết kế nhà ở khác. Do đó, chi phí dành cho nguyên vật liệu, chi phí nhân công cũng giảm tối đa. Đồng thời, việc hoàn thiện phần mái Nhật sẽ rẻ hơn chi phí hoàn thiện của hệ mái thái. Chính vì thế mà mẫu kiến trúc nhà ở này sẽ giúp bạn tiết kiệm được nhiều chi phí xây dựng.

Tổng hợp những mẫu thiết kế nhà mái Nhật 2 tầng ấn tượng 2024
Mẫu nhà mái Nhật 2 tầng phong cách đơn giản
Đây là một mẫu nhà mái Nhật thiết kế 2 tầng được thiết kế theo phong cách hiện đại đơn giản. Phần mái Nhật có màu xanh lam đậm bắt mắt tạo nên sự nổi bật trên nền sơn chủ đạo màu trắng. Mặt tiền của ngôi nhà được thiết kế khá đơn giản với điểm nhấn là phần ốp gạch tối màu và phần sơn màu xanh lam quanh mái của tầng 1.
Bên cạnh đó, phần cửa chính được làm bằng chất liệu gỗ kết hợp kính để làm tăng độ an toàn cho ngôi nhà. Còn hệ thống cửa sổ và cửa phụ được làm bằng kính cường lực trong suốt để tận dụng tối đa nguồn sáng cho căn nhà. Rèm cửa sẽ giúp bạn có thể dễ dàng điều chỉnh ánh sáng tốt hơn.

Mẫu nhà mái Nhật 2 tầng hiện đại
Đây là một mẫu nhà không chỉ có tính thẩm mỹ cao mà còn thể hiện được sự giàu có và sự đẳng cấp của gia chủ. Ngôi nhà này được thiết kế trên một mảnh đất có diện tích rộng nên tạo cảm giác đây là một công trình nguy nga, bề thế.
Vẫn là tông màu sơn trắng kết hợp với phần cột được ốp đá màu vàng nhạt thể hiện vẻ đẹp hiện đại của kiến trúc ngôi nhà. Điểm nhấn trong thiết kế là phần chân mái được sơn màu xanh đen hợp với màu mái nhà. Phần ban công tầng 2 và xung quanh tầng 1 đều được bố trí cây xanh làm tăng thêm vẻ đẹp hiện đại, bắt mắt của ngôi nhà.

Thiết kế nhà 2 tầng mái Nhật ở nông thôn
Mẫu thiết kế nhà mái Nhật 2 tầng này mang vẻ đẹp vừa hiện đại vừa truyền thống cho chúng ta cảm giác gần gũi. Phần mái ngói đỏ tươi như những ngôi nhà mái ngói nông thôn trước đây tạo điểm nhấn cho cả ngôi nhà. Hệ thống cửa gỗ vừa đảm bảo sự an toàn chắc chắn vừa hợp màu sắc với phần mái ngói Nhật. Màu sơn vàng nhạt làm chủ đạo mang đến cho chúng ta cảm giác ấm áp tuyệt vời.

Thiết kế nhà mái Nhật 2 tầng phong cách tân cổ điển
Nếu bạn có kinh tế mạnh và muốn có một ngôi nhà mái Nhật 2 tầng sang trọng, đẳng cấp thì hãy chọn mẫu thiết kế nhà ở này. Đây là mẫu thiết kế nhà 2 tầng mái Nhật mang phong cách tân cổ điển tuyệt đẹp mang đến không gian sống quý tộc.
Ngôi nhà được chọn sơn màu trắng tinh khôi làm tôn lên vẻ đẹp hiện đại của ngôi nhà. Hệ cột hình tròn với các vòm cửa làm toát lên vẻ đẹp mềm mại, uyển chuyển. Các họa tiết trang trí cầu kỳ như lan can của ngôi nhà, hệ thống đèn trang trí làm toát lên vẻ đẹp cổ điển. Ánh sáng vàng mang đến một không gian sống ấm cúng cho ngôi nhà to lớn này. Tất cả tạo nên một thiết kế tân cổ điển đẹp mắt đến hoàn hảo.

Mẫu nhà 2 tầng mái Nhật có sân vườn thoáng mát
Đây là mẫu nhà 2 tầng mái Nhật được thiết kế ấn tượng được nhiều người yêu thích. Phần mái Nhật được thiết kế màu đen xám ấn tượng. Hệ thống vòm cửa với những đường cong mềm mại tạo nên sự ấn tượng độc đáo trong phong cách này. Xung quanh ngôi nhà được trồng nhiều cây xanh mang đến không gian sống trong lành, tươi mát. Sân trước nhà có diện tích khá rộng để bạn có thể thư giãn mỗi khi rảnh rỗi.

Mẫu thiết kế nhà 2 tầng mái Nhật chữ L
Đây là một mẫu thiết kế nhà 2 tầng mái Nhật chữ L mang đậm phong cách Nhật Bản. Kiến trúc ngôi nhà vô cùng đơn giản với các đường nét vuông vắn tạo ấn tượng. Sơn nhà có màu vàng nhạt nhẹ nhàng làm chủ đạo kết hợp với phần mái Nhật màu xanh lam đậm tạo nên cảm giác quen thuộc, gần gũi. Phần cửa chính được làm bằng gỗ, còn lại các cửa khác được làm bằng vật liệu kính thể hiện vẻ đẹp vừa hiện đại đến cuốn hút.

Mẫu nhà 2 tầng mái Nhật có gara hiện đại
Nếu gia đình bạn có phương tiện ô tô thì nên lựa chọn mẫu thiết kế nhà 2 tầng mái Nhật có gara hiện đại này. Phần gara sẽ mang đến sự thuận tiện trong quá trong trình di chuyển phương tiện cho gia đình. Hơn nữa, kiểu thiết kế này sẽ giúp gia đình bạn tiết kiệm được một khoản chi phí lớn chi cho việc gửi xe ở bãi đỗ xe trong thành phố.

Mẫu nhà mái Nhật 2 tầng 2 mặt tiền
Nếu bạn có muốn xây nhà trên mảnh đất nằm trên lô góc 2 mặt tiền thì đây chắc hẳn là một mẫu thiết kế mà bạn nên tham khảo. Thiết kế 2 mặt tiền cực kỳ đẹp mắt tạo ấn tượng khó quên trong mắt người đi đường.
Tông màu chủ đạo của ngôi nhà là tông màu trắng ở tầng 1 và màu xanh pastel nhẹ nhàng ở tầng 2. Phần mái Nhật có màu xanh đen ở cả hai tầng tạo nên sự đồng bộ thống nhất trong kiến trúc. Hệ thống cửa lớn được làm bằng gỗ và kính vừa đảm bảo an toàn vừa giúp chủ nhà tận dụng tốt ánh sáng.

Mẫu nhà mái Nhật 2 tầng sang trọng
Mẫu nhà mái Nhật 2 tầng sang trọng không chỉ phù hợp để xây dựng trên mọi diện tích và mọi phong cách thiết kế. Mái Nhật sẽ mang đến cảm giác tinh tế, đẳng cấp và thời thượng. Với mẫu nhà mang phong cách hiện đại này kết hợp với ánh sáng vàng ấm cúng làm tôn lên vẻ đẹp sang trọng, ấm cúng và gần gũi cho không gian sống.

Mẫu nhà mái Nhật 2 tầng 3 phòng ngủ
Mẫu nhà mái Nhật 2 tầng có 3 phòng ngủ sẽ phù hợp với gia đình có 4 – 5 thành viên. Kiểu thiết kế nhà ở này sẽ vừa đảm bảo được không gian sinh hoạt chung vừa có đủ không gian sinh hoạt riêng tư cho các thành viên trong gia đình. Nhà được bố trí nhiều cửa sổ cùng với việc trồng nhiều cây xanh tươi giúp gia chủ tận hưởng được không khí mát lành ngay trong khu vực sinh hoạt.

Mẫu nhà mái Nhật 2 tầng 4 phòng ngủ
Mẫu nhà mái Nhật 2 tầng 4 phòng ngủ này được thiết kế theo kiểu mới mẻ, sang trọng và tiện nghi hơn rất nhiều so với những mẫu nhà mái Nhật truyền thống trước đây. Với mẫu thiết kế này thì màu sơn là một yếu tố làm tăng thêm vẻ đẹp nổi bật của ngôi nhà. Lớp sơn màu tím kết hợp màu trắng vừa nhẹ nhàng vừa trẻ trung. Một số mảng tường được ốp gạch giả gỗ làm tăng thêm sự ấn tượng cho vẻ ngoài của ngôi nhà.

Tổng hợp thiết kế nhà 2 tầng mái Nhật theo diện tích
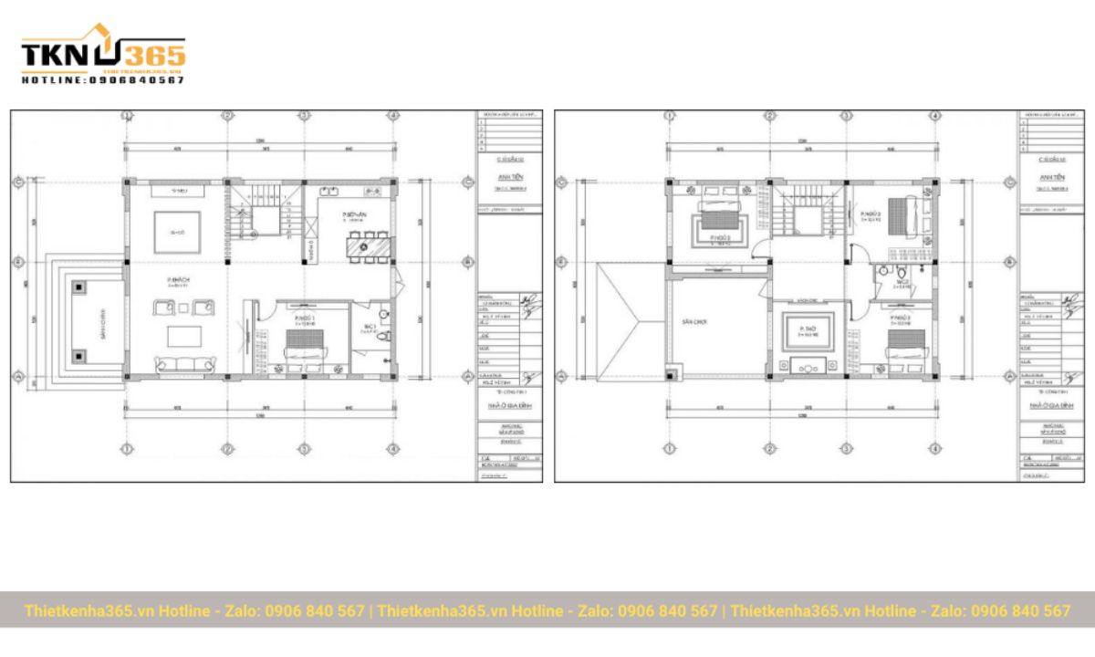
Nhà 2 tầng mái nhật 8x10m
Nhà 2 tầng mái nhật 8x10m được xây dựng trên mảnh đất vuông vắn không chỉ giúp gia chủ dễ dàng bố trí các khu vực chức năng mà còn mang vẻ đẹp thanh lịch đến tuyệt vời. Các đường nét kiến trúc không quá cầu kỳ mà gọn gàng, tinh tế. Mẫu thiết kế nhà ở này còn mang ý nghĩa phong thủy tốt với sự tròn đầy, no ấm.


Thiết kế mẫu nhà 2 tầng mái Nhật 8x12m
Mẫu thiết kế nhà mái Nhật 2 tầng với diện tích 8x12m khoác trên mình gam màu trắng tinh khôi nhưng lại không hề mang đến sự nhàm chán và đơn điệu mà làm toát lên vẻ đẹp hiện đại, đẹp mắt. Ngôi nhà này sẽ được trang trí bởi các đường chỉ phào tinh xảo kết hợp với các cột nhà vuông vắn ấn tượng. Xung quanh nhà được bố trí các chậu cây xanh kết hợp với cửa kính trong suốt sang trọng.

Mặt bằng công năng của mẫu nhà 2 tầng mái Nhật 8x12m được bố trí như sau:
- Tầng 1: Tầng 1 được nhà thiết kế bố trí 1 phòng khách, 1 phòng bếp kết hợp phòng ăn và 1 phòng ngủ.
- Tầng 2: Tầng 2 sẽ được bố trí 3 phòng ngủ, 1 phòng thờ kết hợp phòng sinh hoạt chung và 2 phòng WC.

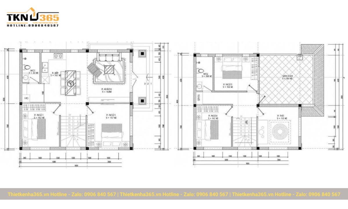
Thiết kế mẫu nhà 2 tầng mái Nhật 9x12m
Sở hữu diện tích đất 9x12m là một mẫu thiết kế nhà ở hoàn hảo về cả tính thẩm mỹ và công năng sử dụng. Bạn có thể lựa chọn phong cách thiết kế nào cho ngôi nhà từ hiện đại, tân cổ điển cho đến cổ điển. Không chỉ thế, bạn còn có có thể bố trí thêm gian hoa, chậu cây xanh để tạo không gian hòa hợp với thiên nhiên. Hệ thống cửa kính sẽ giúp không gian sống trong nhà tràn ngập ánh sáng bình minh vào sáng sớm.

Mặt bằng công năng của mẫu nhà 2 tầng mái Nhật 9x12m được bố trí khoa học như sau:
- Tầng 1: Tầng này được bố trí các không gian sinh hoạt chung như 1 phòng khách, 1 phòng bếp kết hợp phòng ăn. Ngoài ra, tầng 1 còn được bố trí thêm 1 phòng ngủ nhỏ.
- Tầng 2: Tầng 2 sẽ được các kiến trúc sư bố trí 3 phòng ngủ, 1 phòng thờ và 1 sân chơi.

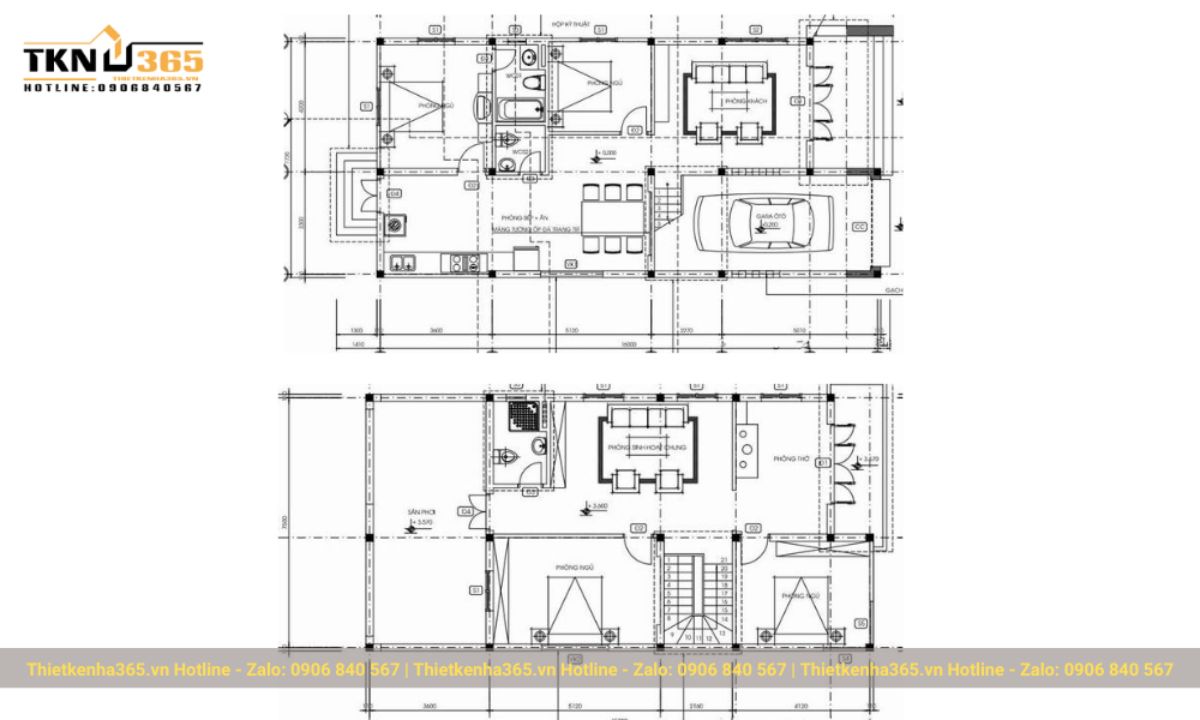
Mẫu nhà 2 tầng mái Nhật 90m2
Mẫu nhà 2 tầng mái Nhật 90m2 này thường được bố trí 4 phòng ngủ phù hợp với gia đình có đông thành viên cùng nhau sinh sống. Mẫu thiết kế này có tính thẩm mỹ cao mà chi phí lại vô cùng hợp lý.
Bên cạnh đó, mẫu thiết kế này còn có gara để ô tô nằm vị trí bên phải của phòng khách. Phía trên của gara được bố trí sân thường cùng với giàn mái che được tận dụng trồng hoa mang đến vẻ đẹp hoàn hảo của thiên nhiên.

Ngôi nhà 2 tầng 90m2 này được bố trí mặt bằng công năng phù hợp dành cho gia đình có từ 5-6 thành viên. Sau đây là bố trí khu vực chức năng tầng 1 và tầng 2 của ngôi nhà:
- Tầng 1: Tầng này được bố trí 1 phòng ngủ và các khu vực còn lại là không gian sinh hoạt chung như phòng khách, phòng bếp + phòng ăn và WC. Phòng ngủ ở tầng này thường dành cho người lớn tuổi trong gia đình như ông bà ở bởi sẽ tạo sự thuận tiện và độ an toàn cho việc đi lại.
- Tầng 2: Tầng này được các nhà thiết kế bố trí 3 phòng ngủ dành cho bố mẹ, con cái trong gia đình. Không gian còn lại sẽ được bố trí 1 phòng thờ và 1 ban công.

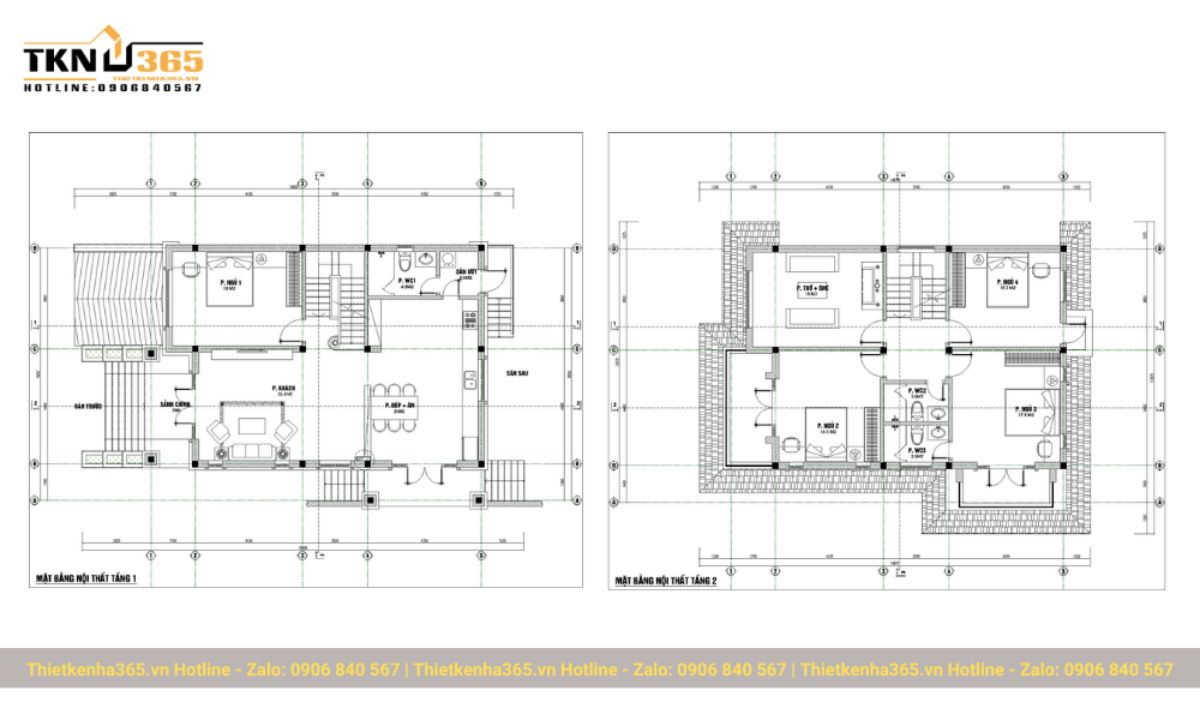
Mẫu nhà 2 tầng mái nhật 100m2
Mẫu nhà 2 tầng mái nhật 100m2 này vẫn lựa chọn màu trắng đơn thuần làm tông màu chính. Tông màu đen của khung cửa kính tạo nên điểm nhấn cực kỳ đẹp mắt trên nền sơn màu trắng tinh khôi, hiện đại. Mẫu nhà này có diện tích rộng phù hợp với các gia đình có đông thành viên.

Đây là một mẫu nhà được thiết kế cho gia đình có 3 thế hệ sinh sống thoải mái. Mặt bằng công năng được bố trí một cách khoa học để mang đến sự thuận tiện trong khi di chuyển và sinh hoạt. Sau đây là bố trí các khu vực chức năng từng tầng cụ thể:
- Tầng 1: Tầng này được bố trí 1 phòng khách, 1 gara được bố trí phía cạnh phòng khách để thuận tiện di chuyển ra vào. Phòng ăn liền với phòng bếp với diện tích rộng rãi đủ để các thành viên quây quần cùng nhau nấu ăn và dùng bữa. Không gian còn lại của tầng 1 được bố trí 2 phòng ngủ ưu tiên cho người lớn tuổi và 2 WC.
- Tầng 2: Đối với tầng 2, các kiến trúc sư bố trí 2 phòng ngủ, 1 phòng sinh hoạt chung, 1 phòng thờ và 1 WC.

Tham khảo mẫu thiết kế nhà mái nhật đẹp khác:
Bí quyết xây nhà mái Nhật 2 tầng đầy thẩm mỹ, công năng
Lựa chọn bảng màu và Phối màu nhà phù hợp
Để xây dựng được một ngôi nhà mái Nhật có 2 tầng đẹp mắt thì bạn cần lựa chọn cẩn thận các màu sắc chủ đạo và các màu sắc phụ để phối cho phù hợp. Tùy vào phong cách thiết kế ngôi nhà mà bạn có thể lựa chọn được màu sắc cho tổ ấm của mình. Bởi vì, mẫu nhà mái Nhật 2 tầng chú trọng vào sự đơn giản, thanh lịch cho nên bạn hãy chọn những gam màu trung tính, nhẹ nhàng như màu xám hay màu xanh quý phái.

Thiết kế cổng nhà phù hợp tổng thể
Thường thì bạn chỉ chú ý đến thiết kế căn nhà bạn ở mà quên đi phần cổng nhà và hàng rào. Đây là phần giúp làm tăng thẩm mỹ cho ngôi nhà, đảm bảo được sự an toàn cho các thành viên trong gia đình.

Trang trí phần ngoại thất
Ngoại thất của công trình đặc biệt là phần mặt tiền của ngôi nhà cần được chú trọng. Ngoài vật liệu làm cửa chính, cửa phụ màu sơn thì bạn cần quan tâm đến việc bố trí cây cảnh. Hãy tạo dựng được một mảng xanh để tăng tính thẩm mỹ và nâng cao chất lượng không gian sống.

Tính toán kết cấu mái Nhật phù hợp
Đây là một yếu tố quan trọng khi bạn lựa chọn thiết kế nhà mái Nhật. Bạn hãy tính toán kết cấu mái làm sao tỷ lệ hình khối một cách cân đối và hài hòa. Phần ngói lợp cũng cần được tính toán cẩn thận để đảm bảo chất lượng phần mái và độ an toàn khi sinh sống.

Thiết Kế Nhà 365 – Đơn vị thiết kế thi công nhà mái Nhật 2 tầng uy tín, chuyên nghiệp
Nếu bạn đang lựa chọn một đơn vị thiết kế nhà mái Nhật 2 tầng uy tín, chuyên nghiệp thì đừng bỏ qua Công ty Thiết Kế Nhà 365. Đây là một đơn vị chuyên cung cấp dịch vụ thiết kế thi công mái Nhật 2 tầng trọn gói với nhiều ưu điểm như:
- Đã có hơn 10 năm hoạt động trong lĩnh vực xây dựng và thiết kế. Chúng tôi đã hoàn thành hơn 100 công trình nhà ở lớn nhỏ khác nhau.
- Có đến 95% khách hàng của công ty hài lòng, tin tưởng đánh giá 5 sao dành cho các công trình mà chúng tôi bàn giao.
- Không có chi phí phát sinh ngoài chi phí đã được tính toán trong hợp động thiết kế, thi công trọn gói.
- Được tư vấn miễn phí 100% một cách nhiệt tình cho phù hợp với tình hình thực tế và mức chi phí bạn đang có, chúng tôi sẽ đưa ra mẫu thiết kế nhà mái Nhật 2 tầng hiện đại phù hợp và đảm bảo đủ công năng sử dụng.
- Đối với các hạng mục không cần thiết trong công trình nhà mái Nhật 2 tầng sẽ được chúng tôi lược bỏ.
- Đảm bảo công trình nhà mái Nhật 2 tầng hiện đại được xây dựng nhanh chóng và đúng tiến độ.
- Công trình mẫu nhà mái Nhật 2 tầng hiện đại được hoàn thành sẽ giống đến 99% bản thiết kế.
Vừa rồi là thông tin cơ bản về nhà mái Nhật 2 tầng hiện đại và những mẫu nhà đẹp đón đầu xu hướng năm 2024 để bạn đọc tham khảo. Nếu bạn đang cần được tư vấn miễn phí cụ thể hơn về mẫu nhà 2 tầng mái Nhật nào thì hãy liên hệ đến Công ty Thiết Kế Nhà 365 để được các kiến trúc sư hỗ trợ nhiệt tình.
Công Ty TNHH Thiết Kế Nhà 365
- Địa chỉ office: 294 Lê Trọng Tấn, Phường Tây Thạnh, Quận Tân Phú, Thành Phố Hồ Chí Minh
- Email: thietkenha365@gmail.com
- Số điện thoại: 0906840567 – Mr. Thắng
- Website: https://demo.thietkenha365.vn/









