Thiết kế nhà 1 tầng 3 phòng ngủ đang là xu hướng nhà ở hiện nay, phù hợp với những gia đình đông thành viên và có chi phí khá mềm. Bạn cũng có thể lựa chọn nhiều phong cách khác nhau, bố trí nội ngoại thất theo ý muốn của mình. Trong bài viết này, hãy cùng Thiết Kế Nhà 365 điểm qua một số mẫu nhà 1 tầng 3 phòng ngủ hot nhất hiện nay, cũng như một số lưu ý cần biết khi thi công xây dựng.
Vì sao nên thiết kế nhà 1 tầng 3 phòng ngủ?
Có rất nhiều lý do tại sao thiết kế nhà 1 tầng hiện đại 3 phòng ngủ ngày càng được nhiều người ưa chuộng, có thể kể đến như:
- Thiết kế theo kiểu nhà cấp 4 đơn giản, 1 tầng nên không yêu cầu công nghệ kỹ thuật quá cao, quá trình thi công nhanh giúp gia chủ tiết kiệm chi phí.
- Thiết kế nhà 1 tầng 3 phòng ngủ đảm bảo sự thoải mái và riêng tư cho các thành viên trong gia đình, tạo cảm giác ấm cúng, gần gũi.
- Đây là mẫu nhà phố đẹp gần gũi với thiên nhiên, tạo ra không gian thư giãn và yên bình cho gia chủ.
- Mẫu nhà 1 tầng 3 phòng ngủ đa dạng về kiểu dáng, nhiều thiết kế khác nhau từ tân cổ điển, cổ điển đến hiện đại. Kiến trúc mái thái, mái bằng giúp công trình trở nên sang trọng hơn.

Ưu, nhược điểm của thiết kế nhà 1 tầng 3 phòng ngủ
Trước khi lựa chọn thi công mẫu nhà 1 tầng đẹp 3 phòng ngủ, bạn cần chắc chắn xem liệu nó có phù hợp với nhu cầu và mục đích sử dụng của mình hay không. Dưới đây là những ưu nhược điểm của kiểu nhà này:
Ưu điểm:
- Thiết kế tận dụng được tối đa không gian, mang đến tổng thể kiến trúc cân bằng và đồng điệu.
- Thời gian thi công và xây dựng nhanh hơn so với nhà cao tầng, nên có thể hoàn thiện sớm để đưa vào sử dụng.
- Tiết kiệm chi phí hơn so với những mẫu nhà khác nhưng vẫn đảm bảo đầy đủ công năng sử dụng cho gia đình.
- Phù hợp với những gia đình có người già và trẻ nhỏ do không sử dụng cầu thang, hạn chế rủi ro khi di chuyển, đi lại.
Nhược điểm:
- Việc bố trí và phân chia không gian các phòng sẽ khó khăn hơn. Do đó, gia chủ cần tính toán kỹ lưỡng để phân chia phòng sao cho phù hợp, đảm bảo tính riêng tư khi sử dụng.
- Kết cấu 1 tầng nên việc tối ưu diện tích sẽ khó khăn hơn so với nhà cao tầng.

Một số yêu cầu trong thiết kế nhà 1 tầng 3 phòng ngủ
Để công trình thi công thiết kế nhà 1 tầng 3 phòng ngủ không xảy ra sai sót, dưới đây là một số yêu cầu mà bạn cần quan tâm:
Diện tích đất xây dựng
Diện tích đất phù hợp để xây dựng các mẫu nhà 1 tầng 3 phòng ngủ thường là từ 100m2 trở lên. Tuy nhiên, không phải gia chủ nào cũng sở hữu quỹ đất rộng đến vậy để xây nhà. Do đó, các kiến trúc sư sẽ cân nhắc dựa trên nhiều yếu tố để tối ưu hóa không gian, đảm bảo cung cấp đầy đủ công năng sinh hoạt tối thiểu cho tất cả các thành viên trong gia đình.
Ngoài ra, quỹ đất phù hợp để xây nhà 1 tầng 3 phòng ngủ thường là những mảnh đất vườn rộng rãi, có không gian để làm sân trước và sân sau, tạo hiệu ứng gần gũi với thiên nhiên cho ngôi nhà. Với những căn nhà có phần đất sân vườn hạn chế, bạn vẫn có thể khéo léo thiết kế, tạo nên không gian thiên nhiên hòa hợp cho gia đình.

Yêu cầu công năng sử dụng tối thiếu
Dù là kiểu nhà nào thì vẫn cần đáp ứng đầy đủ các yêu cầu công năng sử dụng tối thiểu cho gia đình. Trong xu hướng nội thất tập trung vào tiện ích và công năng hiện nay, bố trí nội thất không chỉ là việc sắp xếp sao cho phù hợp, mà còn phải đảm bảo tính khoa học và tiện nghi trong quá trình sử dụng. Để tạo nên không gian sống đầy đủ công năng, dưới đây là một số yêu cầu cơ bản mà bạn cần biết:
- Công năng trong nhà cần bố trí phù hợp với chức năng, không cản trở việc đi lại và đảm bảo sử dụng dễ dàng, không chồng chéo lên nhau. Từ đó, giúp giảm khối lượng lao động đồng thời rút ngắn thời gian thi công.
- Quá trình quản lý và bảo quản công trình đảm bảo thực hiện dễ dàng, cân nhắc kỹ những yếu tố như sắp xếp không gian, kết cấu và bố trí hệ thống kỹ thuật. Từ đó, biểu đạt hình khối và mặt đứng của công trình nhà ở. Điều này sẽ giúp sinh hoạt của các thành viên trong gia đình trở nên hợp lý và tiện nghi hơn.
- Để có được thiết kế nhà 1 tầng 3 phòng ngủ đúng với ý muốn của gia chủ, các thiết kế sư cần làm việc hiệu quả, nghiêm túc, cân nhắc đến nhiều yếu tố khác nhau để tạo nên dịch vụ, sản phẩm phù hợp, nhận được sự hài lòng của khách hàng.
Dựa trên những yêu cầu trên về công năng trong nhà ở, bạn cần tính toán và đưa ra được những giải pháp tối ưu cho công trình. Sau đó, các thiết kế sư sẽ thảo luận với khách hàng để đưa ra bản thiết kế mặt bằng phù hợp nhất, đúng với mong muốn của gia chủ và các thành viên khác trong gia đình.

Vấn đề thẩm mỹ kiến trúc sẽ yêu cầu những gì?
Bên cạnh yếu tố công năng và diện tích đất xây dựng, thẩm mỹ và thông số kỹ thuật của công trình cũng là điều vô cùng quan trọng mà bạn nên lưu ý. Đảm bảo tính thẩm mỹ chính là mang đến vẻ đẹp cho tổng thể kiến trúc, thông qua việc sắp xếp hài hòa các yếu tố trong không gian.

Dù bạn lựa chọn phong cách cổ điển, tân cổ điển hay hiện đại thì các yếu tố không gian cũng cần được sắp xếp hợp lý và cân bằng. Điều này sẽ giúp bạn sở hữu một căn nhà có vẻ đẹp truyền thống đơn giản theo phong cách tối giản hoặc tỉ mỉ, tinh xảo với nhiều chi tiết đặc trưng của phong cách cổ điển tùy theo sở thích.
Những mẫu thiết kế nhà 1 tầng 3 phòng ngủ đẹp nhất
Các mẫu thiết kế nhà đẹp 1 tầng 3 phòng ngủ hiện nay vô cùng đa dạng. Tùy theo sở thích và mục đích sử dụng mà bạn có thể lựa chọn sao cho phù hợp. Dưới đây là một số mẫu thiết kế được nhiều người ưa chuộng nhất hiện nay:
Thiết kế nhà ống 1 tầng 3 phòng ngủ
Mẫu nhà ống 1 tầng 3 phòng ngủ được nhiều gia đình trẻ lựa chọn nhờ chi phí thi công mềm. Sử dụng thiết kế mái lệch ấn tượng cùng những đường nét vuông vức, mạnh mẽ mang đến vẻ đẹp khỏe khoắn cho toàn bộ căn nhà. Chất liệu kính được phân bổ hợp lý tối ưu sự hấp thụ ánh sáng tự nhiên.

Thiết kế nhà 1 tầng 3 phòng ngủ mái lệch
Mái lệch hiện đang là xu hướng trong thiết kế nhà ở hiện nay, mang đến vẻ đẹp ấn tượng và độc đáo. Sử dụng gam màu trắng làm chủ đạo mang đến vẻ đẹp sang trọng và trang nhã. Hệ thống cửa kính được bố trí trên khắp các mặt tường cùng hệ thống sân trước, sân sau rộng tạo cảm giác hài hòa với thiên nhiên.

Thiết kế nhà 1 tầng 3 phòng ngủ mái bằng
Thiết kế nhà 1 tầng 3 phòng ngủ mái bằng có thể xây dựng ở cả thành phố và nông thôn với chi phí mềm. Mẫu nhà dưới đây được thiết kế theo phong cách truyền thống, đơn giản, các chi tiết tinh tế và gọn gàng. Sân trước rộng được sử dụng để trồng cây xanh hoặc làm gara đậu xe cho gia chủ.

Thiết kế nhà 1 tầng 3 phòng ngủ mái chữ A
Sử dụng mái chữ A với cấu trúc bất cân xứng là một điểm nhấn đặc biệt cho toàn bộ căn nhà. Thiết kế cột trụ với các chi tiết tinh xảo, tỉ mỉ mang đến hơi thở tân cổ điển rõ ràng. Hệ thống ánh sáng được sử dụng hợp lý giúp căn nhà thêm phần ấm cúng và gần gũi.

Thiết kế nhà nông thôn mái thái 3 phòng ngủ
Thiết kế nhà 1 tầng với mái Thái là mẫu nhà đang ngày càng được ưa chuộng ở nông thôn. Diện tích đất rộng nên bạn có thể lắp đặt cả công năng sân sau và sân trước, tận dụng không gian để trồng cây xanh hoặc dùng làm gara đậu xe. Cửa ra vào và cửa sổ được làm từ chất liệu gỗ truyền thống tạo cảm giác ấm cúng, nổi bật trên gam màu xám của tổng thể.

Thiết kế nhà 1 tầng mái thái chữ L
Mẫu nhà 1 tầng mái Thái hình chữ L giúp gia chủ tối ưu được diện tích không gian. Khoảng sân trước rộng dùng làm gara để xe hoặc kê thêm bàn ghế thư giãn nếu muốn. Sử dụng gam màu trắng cho tường và xanh dương cho mái tạo cảm giác thoải mái dễ chịu. Điểm nhấn của căn nhà là những dải màu nâu nổi bật và chất liệu đá hoa cương trên sân trước.

Thiết kế nhà 1 tầng 3 phòng ngủ phong cách tối giản
Nhà ở phong cách tối giản ngày càng được nhiều người lựa chọn. Mẫu nhà dưới đây sử dụng thiết kế mái đôi với đường nét vuông vức và mạnh mẽ. Hệ thống cửa kính được bố trí ở các mặt tường giúp tối ưu lượng ánh sáng tự nhiên hấp thụ. Sân trước dùng để trồng cây xanh thoáng mát.

Thiết kế nhà 1 tầng 3 phòng ngủ phong cách hiện đại
Thiết kế nhà 1 tầng 3 phòng ngủ dưới đây sử dụng cấu trúc mái lệch hiện đại và ấn tượng. Dù nhà 1 tầng nhưng vẫn đảm bảo đầy đủ công năng và tiện ích, có phần sân trước, sân sau để trồng cây xanh hoặc đặt bản ghế thư giãn cho gia chủ. Chất liệu sử dụng đa dạng từ đá hoa cương, gạch, gỗ…

Thiết kế nhà vườn 1 tầng phong cách châu Âu
Mẫu thiết kế dưới đây lấy phong cách Châu Âu cổ điển làm chủ đạo, thể hiện rõ qua nhiều chi tiết như các cột trụ, hoa văn tinh xảo và cửa hình vòm. Gam màu trắng đặc trưng mang đến cảm giác sang trọng, đảm bảo tính thẩm mỹ cho tổng thể căn nhà. Sân trước có kích thước rộng được sử dụng để làm vườn cây.

Thiết kế nhà 1 tầng 3 phòng ngủ có gác lửng
Thiết kế nhà ở có gác lửng giúp bạn tối ưu được công năng sử dụng, lắp đặt thêm nhiều tiện ích. Cấu trúc mái Thái là điểm nhấn đặc biệt, kết hợp cùng những chi tiết bằng gỗ tạo cảm giác ấm cúng và thoải mái khi sinh hoạt. Xung quanh nhà bao quanh bởi hàng rào có trồng cây xanh.

Thiết kế nhà 1 tầng 3 phòng ngủ và 1 phòng thờ
Phòng thờ thường được các gia chủ tách ra thành một không gian riêng để đảm bảo sự uy nghiêm và kín đáo. Mẫu thiết kế dưới đây sử dụng hệ thống cửa kính pano lắp đặt ở các mặt tường, dễ dàng hấp thụ được ánh sáng tự nhiên. Sân trước kích thước lớn dùng để trồng cây xanh và lắp đặt các tiện ích khác nếu muốn.

Thiết kế nhà 1 tầng kiểu biệt thự sang trọng
Nhà 1 tầng kiểu biệt thự sang trọng thường sử dụng phong cách thiết kế Châu Âu cổ điển, sang trọng. Có thể nhận thấy rõ qua những chi tiết như ban công hình vòm, cột trụ hoa văn và các bậc thang uốn lượn. Phần sân trước kích thước rộng, có thể lắp đặt nhiều công năng như vườn hoa hay dùng làm nơi đậu xe.

Thiết kế nhà phố mái thái 3 phòng ngủ
Mẫu thiết kế nhà phố mái Thái 3 phòng ngủ sử dụng rất nhiều chất liệu khác nhau từ kính, gỗ cho đến đá hoa cương, gạch hoa bông. Sử dụng tông màu trắng làm chủ đạo mang đến cảm giác sang trọng và hiện đại, kết hợp cùng cấu trúc mái Thái ấn tượng rất phù hợp với phong cách của các gia đình trẻ hiện nay.

Thiết kế nhà vườn 1 tầng kích thước 12x8m
Nhà vườn 1 tầng thường được xây dựng trên những quỹ đất có diện tích rộng, sân trước và sân sau đều lớn được dùng để trồng cây xanh. Hệ thống đèn vàng chiếu sáng lắp đặt phù hợp mang đến cảm giác gần gũi và ấm áp, phía trước có lắp đặt bàn ghế để gia chủ và các thành viên trong gia đình nghỉ ngơi.

Thiết kế nhà 1 tầng 3 phòng ngủ có sân đỗ ô tô
Mẫu thiết kế dưới đây có phần sân trước được tận dụng làm nơi đậu xe ô tô. Thiết kế mặt tiền hình chữ U bao quanh bởi hàng rào. Điểm nhấn của mẫu thiết kế này là các vách ngăn bằng gỗ được đặt giữa phần mái và mặt bằng tầng 1, không chỉ chống nóng mà còn giúp hấp thụ tối đa ánh sáng tự nhiên.

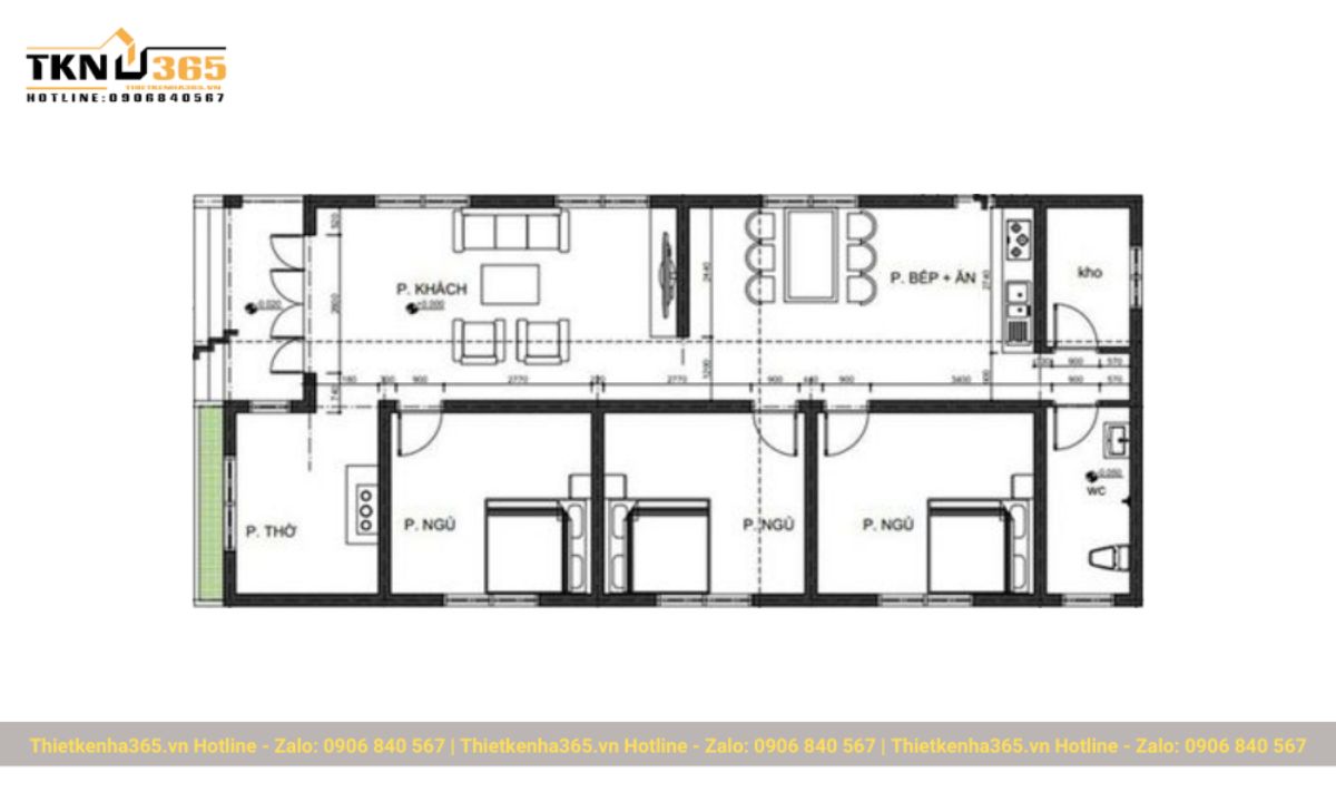
Bản vẽ công năng cho thiết kế nhà 1 tầng 3 phòng ngủ
Bản vẽ công năng sẽ giúp bạn hình dung rõ hơn về nội ngoại thất của căn nhà. Thiết Kế Nhà 365 đã tổng hợp một số bản vẽ công năng cho nhà 1 tầng 3 phòng ngủ để bạn tham khảo dễ dàng:
Bản vẽ nhà 1 tầng 3 phòng ngủ kiểu nhà ống
Đi từ ngoài vào là không gian dành cho phòng khách được nối thông với phòng bếp và phòng ăn để tối ưu diện tích nhà ở. Nằm về bên phải là khu vực riêng tư dành cho phòng thờ. Bên cạnh phòng thờ là 3 phòng ngủ nối tiếp nhau dành cho các thành viên. Cuối cùng là phòng kho để vật dụng được đặt ở phía bên trái.

Bản vẽ nhà 1 tầng 3 phòng ngủ phong cách hiện đại
Phòng khách, phòng bếp và phòng ăn là 3 khu vực bắt gặp đầu tiên khi đi từ ngoài vào. Nếu có nhiều diện tích sân trước, bạn có thể tận dụng làm gara đậu xe hoặc sân chơi cho trẻ. Nằm sâu về phía bên phải là phòng ngủ cho bà đảm bảo sự kín đáo và riêng tư, còn phòng ngủ con và phòng ngủ bố mẹ được lắp đặt ở vị trí sâu nhất.

Bản vẽ nhà 1 tầng 3 phòng ngủ có gara để ô tô
Đi từ ngoài vào là khu vực gara để xe ô tô nằm ở phía bên phải, phòng khách và khu vực bếp ăn, giặt là cùng nằm trên một đường thẳng. Phía bên trái là 3 phòng ngủ đặt cạnh nhau theo chiều dọc, đảm bảo sự kín đáo và riêng tư. Giữa phòng ngủ 1 và phòng ngủ 2 là nhà vệ sinh tiện lợi.

Bản vẽ nhà 1 tầng 3 phòng ngủ hình chữ U
Công năng nhà 1 tầng 3 phòng ngủ hình chữ U được tối ưu về diện tích, đảm bảo gia chủ vẫn có không gian để làm vườn và trồng cây xanh, đặt bàn ghế bên ngoài thư giãn. Đi thẳng sẽ thấy khu vực phòng khách và bếp ăn được nối thông với nhau, bên phải là hệ thống 3 phòng ngủ dành cho các thành viên trong gia đình.

Bản vẽ nhà 1 tầng 3 phòng ngủ sang trọng
Từ sảnh chính đi vào là khu vực phòng khách và phòng thờ. Phòng ăn và phòng bếp tách riêng lắp đặt về phía bên phải, bên trái là phòng ngủ 1. Phòng ngủ 2 và 3 được đặt 2 bên sảnh chính, có trồng cây xanh thoáng mát. Phòng kho nằm ở vị trí sâu nhất về bên phải, bên cạnh sảnh phụ.

Trên đây là một số mẫu thiết kế nhà 1 tầng 3 phòng ngủ đẹp và độc đáo hiện nay. Bạn có thể tham khảo và lựa chọn cho mình phong cách nhà ở phù hợp nhất. Nếu còn bất cứ thắc mắc gì, đừng quên liên hệ ngay với Thiết Kế Nhà 365 để được tư vấn thông tin chi tiết, đầy đủ.
Công Ty TNHH Thiết Kế Nhà 365
- Địa chỉ office: 294 Lê Trọng Tấn, Phường Tây Thạnh, Quận Tân Phú, Thành Phố Hồ Chí Minh
- Email: thietkenha365@gmail.com
- Số điện thoại: 0906840567 – Mr. Thắng
- Website: https://demo.thietkenha365.vn/









