Search
Close this search box.

40+ Mẫu thiết kế nhà 2 tầng giá 400 triệu đẹp, đầy đủ công năng

Ai cũng mong muốn có một ngôi nhà đẹp để cùng gia đình mình sinh sống và an cư lạc nghiệp nhưng vấn đề kinh phí xây nhà lại khiến nhiều người đắn đo. Nhằm giúp bạn giải đáp được những băn khoăn về việc xây nhà 2 tầng giá 400 triệu có khả thi không thì dưới đây là những mẫu thiết kế nhà 2 tầng 400 triệu đẹp, ấn tượng để bạn đọc tham khảo.

Mục lục hiện

Xây nhà 2 tầng 400 triệu có được không?

Trong nhiều năm qua, Công ty Thiết kế Nhà 365 cũng đã triển khai nhiều dự án, vì vậy chúng tôi xác nhận rằng bạn hoàn toàn có thể xây dựng một căn nhà 2 tầng với đầy đủ tiện nghi với giá chỉ khoảng 400 triệu. Với mức đầu tư như vậy, phù hợp với các khu đất có diện tích đất xây dựng không quá rộng, hoặc phù hợp với các thiết kế nhà 2 tầng giá 400 triệu dành cho gia đình không quá nhiều thành viên.

Để làm được điều đó, dưới đây là vài gợi ý mà chúng tôi đã đúc kết được sau nhiều công trình, mời các gia chủ tham khảo:

Về diện tích xây dựng nhà 2 tầng 400 triệu

Diện tích đất xây dựng là yếu tố quan trọng nhất ảnh hưởng trực tiếp đến chi phí thiết kế thi công của công trình. Với mức đầu tư khoảng 400 triệu, khi muốn xây một ngôi nhà 2 tầng (1 trệt 1 lầu), bạn nên chọn khu đất có diện tích đất xây dựng khoảng 40m2 là đẹp nhất. Với diện tích đất xây dựng như vậy, bạn sẽ tiết kiệm được chi phí cả về nguyên vật liệu, chi phí thiết kế, thi công lẫn nội ngoại thất hay chi phí nhân công.

Nên lựa diện tích khoảng 40m2 để xây nhà 2 tầng giá 400 triệu đồng
Nên lựa diện tích khoảng 40m2 để xây nhà 2 tầng giá 400 triệu đồng

Về nguyên vật liệu xây dựng nhà 2 tầng 400 triệu

Thường thì cái gì tốt sẽ không đi đôi với rẻ. Tuy nhiên, nếu chịu khó tìm hiểu hoặc có những am hiểu trong lĩnh vực xây dựng, bạn hoàn toàn có thể lựa chọn những loại nguyên vật liệu phù hợp nhất cho ngôi nhà của mình.

Lời khuyên của Công ty Thiết Kế Nhà 365 cho những ai muốn xây nhà 2 tầng 400 triệu là lựa chọn những loại nguyên vật liệu không quá xa xỉ, nhưng vẫn đảm bảo chất lượng, tránh những lãng phí không cần thiết. Việc đầu tư nguyên vật liệu phù hợp sẽ đảm bảo tính bền vững lâu dài của căn nhà, đồng thời vẫn giữ được tính thẩm mỹ.

Chọn nguyên vật liệu xây dựng cũng là một phần rất quan trọng khi thiết kế và thi công công trình
Chọn nguyên vật liệu xây dựng cũng là một phần rất quan trọng khi thiết kế và thi công công trình

Về chi phí thiết kế thi công

Khi xây dựng một căn nhà, chi phí thiết kế và thi công là một trong những khoản chi phí quan trọng. Tuy nhiên, để tiết kiệm chi phí thì bạn có thể lựa chọn một kiến trúc sư hoặc nhà thầu có kinh nghiệm, đồng thời bạn cũng cần thận trọng khi lựa chọn giá trị dịch vụ của họ. Bạn có thể tham khảo ý kiến của những người có kinh nghiệm trong lĩnh vực xây dựng để đưa ra quyết định chính xác nhất.

Về nội thất cho mẫu nhà 400 triệu 2 tầng

Nội thất là yếu tố quan trọng của ngôi nhà, nhưng bạn cần phải cân nhắc khi đầu tư cho nó. Trước tiên, bạn nên chọn những món đồ cần thiết, đơn giản và phù hợp với nhu cầu sinh hoạt của gia đình. Hiện nay, trên thị trường có rất nhiều loại nội thất với thiết kế đẹp và chất lượng tốt, đồng thời giá cả cũng phải chăng. Vì vậy, bạn nên lựa chọn những loại nội thất phù hợp và tránh đầu tư quá nhiều vào các món đồ không cần thiết, tránh lãng phí tài chính.

Lựa chọn mua đồ nội ngoại thất sao cho phù hợp với sở thích và hài hoà về cách sắp xếp bố trí
Lựa chọn mua đồ nội ngoại thất sao cho phù hợp với sở thích và hài hoà về cách sắp xếp bố trí

Về phần thiết kế và kết cấu ngôi nhà 2 tầng 400 triệu

Tùy theo số lượng thành viên trong gia đình mà bạn có thể cân nhắc 2 phương án sau đây của Thiết Kế Nhà 365:

Gợi ý mẫu nhà 2 tầng đẹp giá 400 triệu với 2 phòng ngủ

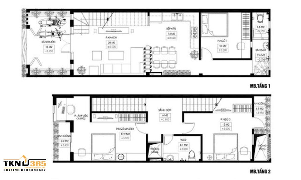
Đối với gia đình có từ 2 đến 4 thành viên, một mẫu thiết kế nhà phố 2 tầng như sau sẽ phù hợp:

Tầng 1 được thiết kế với không gian để xe, tiếp đến là khu vực phòng khách liền kề với phòng bếp, tạo ra một không gian rộng rãi, thoải mái. Cầu thang được đặt ngay bên cạnh khu vực bếp, tiện lợi cho việc di chuyển lên xuống. Có 1 nhà wc ở đây để gia đình dễ dàng sử dụng.

Tầng 2 được chia thành 4 khu vực bao gồm 2 phòng ngủ, 1 nhà vệ sinh chung bên ngoài.

Gợi ý thiết kế nhà 2 tầng giá 400 triệu có 2 phòng ngủ
Gợi ý thiết kế nhà 2 tầng giá 400 triệu có 2 phòng ngủ

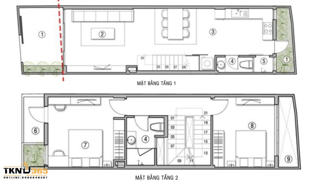
Gợi ý mẫu nhà 2 tầng đẹp giá 400 triệu với 3 phòng ngủ

Đây là mẫu nhà 2 tầng thiết kế phù hợp dành cho các gia đình có hơn 4 thành viên, có thêm ông bà lớn tuổi hoặc con nhỏ.

Tầng 1 bao gồm sân trước để xe, phòng khách liền bếp và khu vực ăn uống. Sau đó là 1 phòng ngủ nhỏ và 1 nhà wc. Có khoảng sân sau rộng rãi để gia đình giặt giũ, phơi quần áo.

Tầng 2 sẽ có 1 sảnh chung để mọi người sinh hoạt, 2 phòng ngủ, 1 wc chung, cả 2 phòng đều có thêm 1 khoảng ban công nhỏ. Riêng phòng ngủ master thì sẽ có thêm phòng làm việc nho nhỏ cho gia chủ.

Gợi ý thiết kế nhà 2 tầng giá 400 triệu có 3 phòng ngủ
Gợi ý thiết kế nhà 2 tầng giá 400 triệu có 3 phòng ngủ

Các mẫu thiết kế nhà 2 tầng 400 triệu trên đây thật sự rất tiện nghi và đẹp mắt. Tuy nhiên, khi chọn một mẫu thiết kế, chủ nhà cần phải cân nhắc đến các yếu tố khác như diện tích đất, ngân sách, vị trí, hướng nhà và phong cách kiến trúc mà mình yêu thích.

Để có được một ngôi nhà ưng ý nhất, bạn có thể tham khảo các mẫu thiết kế của Công ty Thiết Kế Nhà 365. Với đội ngũ kiến trúc sư và nhân viên giàu kinh nghiệm, chúng tôi cam kết sẽ giúp bạn tạo ra một ngôi nhà đẹp, tiện nghi và phù hợp với ngân sách của gia đình. Hãy liên hệ với chúng tôi để được tư vấn và giải đáp các thắc mắc của bạn.

Tham khảo mẫu thiết kế nhà 2 tầng giá 400 triệu đẹp mê mẩn nhất 2023

Mẫu nhà 2 tầng 400 triệu đẹp hiện đại

mẫu nhà 2 tầng 400 triệu
Mẫu nhà 2 tầng giá 400 triệu đẹp và hiện đại
mẫu nhà 2 tầng 400 triệu
Mẫu nhà 2 tầng với chi phí 400 triệu mà bạn có thể tham khảo
Bố trí mặt bằng công năng của ngôi nhà hai tầng chi phí 400 triệu
Bố trí mặt bằng công năng của ngôi nhà hai tầng chi phí 400 triệu

Mẫu nhà 400 triệu 2 tầng sang trọng và cá tính

mẫu nhà 400 triệu 2 tầng
Thiết kế nhà 2 tầng sang trọng và cá tính với chi phí 400 triệu
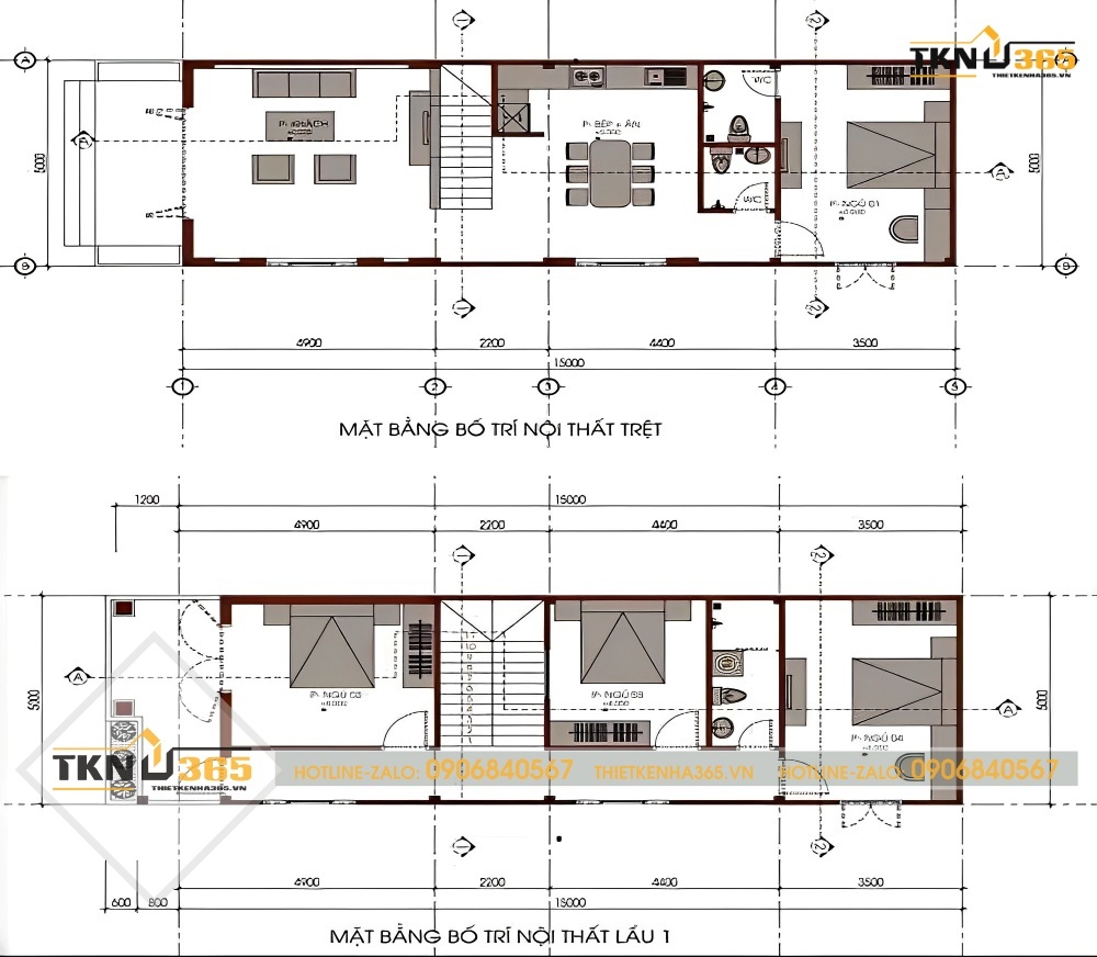
Thiết kế mặt bằng công năng tầng 1 nhà 400 triệu đảm bảo đầy đủ chức năng
Thiết kế mặt bằng công năng tầng 1 nhà 400 triệu đảm bảo đầy đủ chức năng
Thiết kế mặt bằng công năng tầng 2 nhà 400 triệu vừa tiết kiệm vừa đẹp
Thiết kế mặt bằng công năng tầng 2 nhà 400 triệu vừa tiết kiệm vừa đẹp

Mẫu nhà 2 tầng nông thôn 400 triệu nhỏ xinh

mẫu nhà 2 tầng nông thôn 400 triệu
Mẫu thiết kế nhà 2 tầng ở nông thôn nhỏ xinh chi phí 400 triệu
Mẫu nhà 2 tầng 400 triệu ở nông thôn cho các cặp vợ chồng trẻ
Mẫu nhà 2 tầng 400 triệu ở nông thôn cho các cặp vợ chồng trẻ
Mặt bằng công năng của nhà 2 tầng nhỏ xinh chi phí 400 triệu
Mặt bằng công năng của nhà 2 tầng nhỏ xinh chi phí 400 triệu

Mẫu nhà 2 tầng đẹp giá 400 triệu mái lệch độc đáo

nhà 2 tầng đẹp giá 400 triệu
Mẫu nhà mái lệch khác lạ, độc đáo có giá 400 triệu
Mặt bằng công năng tầng 1 của nhà 400 triệu mái lệch đẹp, độc đáo
Mặt bằng công năng tầng 1 của nhà 400 triệu mái lệch đẹp, độc đáo
Mặt bằng công năng tầng 2 của nhà 400 triệu mái lệch
Mặt bằng công năng tầng 2 của nhà 400 triệu mái lệch

Mẫu nhà 2 tầng 400 triệu ở nông thôn hiện đại

xây nhà 2 tầng 400 triệu ở nông thôn
Mẫu nhà 2 tầng ở nông thôn hiện đại chi phí thấp trong khoảng 400 triệu đáng để bạn lựa chọn
Bản vẽ nội thất tầng 1 của ngôi nhà hiện đại giá 400 triệu
Bản vẽ nội thất tầng 1 của ngôi nhà hiện đại giá 400 triệu
Tầng 2 của ngôi nhà 400 triệu đảm bảo đầy đủ các chức năng cho mọi thành viên trong gia đình
Tầng 2 của ngôi nhà 400 triệu đảm bảo đầy đủ các chức năng cho mọi thành viên trong gia đình

Mẫu nhà 2 tầng khoảng 400 triệu đẳng cấp

xây nhà 2 tầng khoảng 400 triệu
Mẫu nhà 2 tầng đẳng cấp giá khoảng 400 triệu với vườn cỏ xanh mướt
Ngôi nhà 2 tầng với giá 400 triệu nhưng vẫn sang trọng và đẳng cấp
Ngôi nhà 2 tầng với giá 400 triệu nhưng vẫn sang trọng và đẳng cấp
Một mẫu nhà 2 tầng 400 triệu đẹp hiện đại, sang trọng và đẳng cấp
Một mẫu nhà 2 tầng 400 triệu đẹp hiện đại, sang trọng và đẳng cấp

Thiết kế nhà 2 tầng đẹp giá 400 triệu có sân vườn rộng

thiết kế nhà 2 tầng đẹp giá 400 triệu
Ngôi nhà 2 tầng đẹp giá 400 triệu giữa một khu vườn có cây cỏ xanh mát
Nhà 2 tầng giá 400 triệu với một khu vườn đẹp là điều nhiều người mong ước
Nhà 2 tầng giá 400 triệu với một khu vườn đẹp là điều nhiều người mong ước
Mẫu nhà 2 tầng 400 triệu với khu vườn rộng mà ai cũng muốn có được
Mẫu nhà 2 tầng 400 triệu với khu vườn rộng mà ai cũng muốn có được

Thiết kế nhà 2 tầng giá 400 triệu nông thôn mái lệch đầy thẩm mỹ

mẫu nhà 2 tầng nông thôn 400 triệu
Mẫu thiết kế nhà 2 tầng giá 400 triệu ở nông thôn với mái lệch đẹp hiện đại
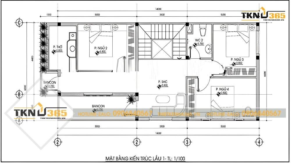
Mặt bằng công năng tầng 1 của ngôi nhà 2 tầng mái lệch giá 400 triệu
Mặt bằng công năng tầng 1 của ngôi nhà 2 tầng mái lệch giá 400 triệu
Mặt bằng công năng tầng 2 của ngôi nhà hai tầng mái lệch 400 triệu
Mặt bằng công năng tầng 2 của ngôi nhà hai tầng mái lệch 400 triệu

Thiết kế nhà 2 tầng 400 triệu diện tích nhỏ

thiết kế nhà 2 tầng 400 triệu
Ngôi nhà ống 2 tầng 400 triệu xây dựng trên diện tích đất nhỏ
Ngôi nhà ống 2 tầng 400 khá đẹp và hiện đại với tone màu trắng - nâu nhã nhặn, tinh tế
Ngôi nhà ống 2 tầng 400 khá đẹp và hiện đại với tone màu trắng – nâu nhã nhặn, tinh tế
Mẫu nhà 2 tầng 400 triệu trên nền đất nhỏ kết hợp cây xây hai bên tạo cảm giác thoáng mát
Mẫu nhà 2 tầng 400 triệu trên nền đất nhỏ kết hợp cây xây hai bên tạo cảm giác thoáng mát

Thiết kế nhà 2 tầng không gian mở giá 400 triệu

thiết kế nhà 2 tầng 400 triệu
Một ngôi nhà nhỏ 2 tầng giá 400 triệu có ban công thoáng mát được tận dụng để trồng cây xanh
Mẫu nhà 2 tầng 400 triệu có thêm tầng thượng có thể dùng làm nơi thư giãn
Mẫu nhà 2 tầng 400 triệu có thêm tầng thượng có thể dùng làm nơi thư giãn
Ngôi nhà 2 tầng giá 400 triệu với mặt tiền thu hút nhờ sự kết hợp mái bằng và mái chóp nhọn.
Ngôi nhà 2 tầng giá 400 triệu với mặt tiền thu hút nhờ sự kết hợp mái bằng và mái chóp nhọn.

Tính toán chi phí và thời gian xây nhà 2 tầng 400 triệu

Với ngân sách 400 triệu đồng, gia chủ cần có sự tính toán cẩn thận, tỉ mỉ từ khâu thiết kế cho tới khi bắt đầu thi công. Sau đây Công ty Thiết Kế Nhà 365 sẽ hướng dẫn bạn cách tính toán chi phí xây dựng nhà 2 tầng đẹp trong tầm giá 400 triệu đồng.

Ví dụ: bạn muốn xây nhà 2 tầng diện tích 4x10m gồm có 1 tầng trệt, 1 lầu và lợp mái tôn, sử dụng loại vật tư trung bình thì chi phí được tính như sau:

Tính diện tích xây dựng

  • Phần móng bằng: 4 x 10 x 40% = 16m2
  • Tầng trệt: 4 x 10 x 100% = 40m2
  • Lầu 1: 4 x 10 x 100% = 40m2
  • Phần mái tôn: 4×10 x 30% = 12m2

=> Như vậy, tổng diện tích xây dựng sàn cần thi công bằng: 108m2

Đơn giá xây thô của chúng tôi là: 3.500.000đ

=> Tổng đơn giá xây nhà thô: 108 x 3.500.000đ = 378.000.00đ

Bạn có thể tham khảo và tính toán chi tiết hơn tại trang tính online trên trang web của chúng tôi.

Về phần thời gian xây dựng nhà 2 tầng 400 triệu, sẽ tùy thuộc vào từng công trình cụ thể và có thể dao động ít hoặc nhiều. Tuy nhiên, thời gian dự kiến hoàn thành của Công ty thiết kế Nhà 365 là như sau:

  • Thời gian ép cọc gia cố nền: 7 ngày.
  • Thời gian hoàn thành bê tông móng và sàn nền trệt: khoảng 15 ngày.
  • Thời gian thi công đổ bê tông sàn: dự kiến 14 ngày.
  • Thời gian thi công đổ sàn sân thượng: dự kiến 7 ngày.
  • Thời gian thi công mái che thang: khoảng 7 ngày.

Tổng thời gian dự kiến để xây dựng một ngôi nhà 2 tầng với mức giá 400 triệu là khoảng 50 ngày. Tuy nhiên, để đảm bảo chất lượng và tiến độ công trình, bạn nên liên hệ với chúng tôi để có thời gian và chi phí cụ thể hơn.

Công Ty Thiết Kế Nhà 365 – Đơn vị thiết kế và xây nhà 2 tầng giá 400 triệu uy tín, chuyên nghiệp

Thiết kế nhà 2 tầng 400 triệu
Công trình nhà ở do Công ty Thiết Kế Nhà 365 thi công luôn đảm bảo chất lượng và bền đẹp theo thời gian

Hiện nay, có rất nhiều đơn vị thiết kế và thi công nhà ở tại TPHCM khiến bạn hoang mang không biết đâu là địa chỉ uy tín. Nếu bạn đang phân vân chưa chọn được địa chỉ đáng tin cậy thì công ty Thiết Kế Nhà 365 sẽ là cái tên đáng để bạn lưu tâm. Công ty Thiết Kế Nhà 365 có những ưu điểm đáng để cân nhắc lựa chọn như:

  • Đơn vị đã có hơn 10 năm kinh nghiệm hoạt động trong lĩnh vực xây dựng.
  • Có đầy đủ các trang thiết bị hiện đại, tiên tiến nhất để thi công công trình.
  • Có đội ngũ thi công giàu kiến thức, kinh nghiệm chuyên môn, đã thực hiện hơn 100+ dự án lớn nhỏ.
  • Tư vấn miễn phí mẫu thiết kế nhà ở phù hợp nhất với mức kinh phí của khách hàng.
  • Cam kết thi công đúng 100% các hạng mục trong hợp đồng, không phát sinh thêm phí ngoài mong muốn.
  • Công trình hoàn thiện xong sẽ giống bản vẽ thiết kế đến 99%.
  • Đảm bảo được yếu tố phong thủy, tính thẩm mỹ cũng như công năng của công trình.

Mong rằng qua bài viết trên bạn đã chọn được mẫu thiết kế nhà 2 tầng giá 400 triệu phù hợp nhất với nhu cầu hiện tại của mình. Hãy liên hệ ngay Công ty Thiết Kế Nhà 365 ngay khi có nhu cầu xây dựng nhà 2 tầng 400 triệu để được nhân viên của chúng tôi tư vấn và báo giá thiết kế nhà phố cụ thể, rõ ràng.

Liên hệ ngay với Công Ty Thiết Kế Nhà 365 qua Hotline 0906840567 để nhận báo giá thiết kế thi công nhà phố trọn gói và được tư vấn miễn phí từ Kiến Trúc Sư!

Xu hướng thiết kế nhà 2 tầng:

Công Ty TNHH Thiết Kế Nhà 365

  • Địa chỉ office: 294 Lê Trọng Tấn, Phường Tây Thạnh, Quận Tân Phú, Thành Phố Hồ Chí Minh
  • Email: thietkenha365@gmail.com
  • Số điện thoại: 0906840567 – Mr. Thắng
  • Website: https://demo.thietkenha365.vn/

Hoàng Đức Thắng

Hoàng Đức Thắng là kiến trúc sư đồng thời là CEO của Công ty Thiết Kế Nhà 365, tôi luôn cập nhật những xu hướng mới nhất trong lĩnh vực xây dựng, kiến trúc và nội thất để mang đến cho bạn đọc những thông tin bổ ích nhất. Tôi luôn sẵn sàng chia sẻ những kinh nghiệm của mình để giúp bạn đọc có thể xây dựng được những ngôi nhà không chỉ đẹp mà còn hoàn hảo về mọi mặt.
Hoàng Đức Thắng – CEO của Công ty TNHH Thiết Kế Nhà 365

HẸN GẶP SAU 1H

Trực tiếp với chuyên gia

Gọi: 0906.840.567

(Mr. Thắng)

NHẬN TƯ VẤN MIỄN PHÍ

Trao đổi trực tiếp với KTS 10 năm kinh nghiệm.

Nhận thiết kế và thi công nhà ở khu vực miền Nam





    Gợi ý viết yêu cầu: bạn cần sửa nhà hay xây mới, diện tích bao nhiêu, ngân sách dự kiến,...

    ĐỂ THÔNG TIN NHẬN TƯ VẤN NGAY





      Gợi ý viết yêu cầu: bạn cần sửa nhà hay xây mới, diện tích bao nhiêu, ngân sách dự kiến,...