Search
Close this search box.

55+ Mẫu thiết kế nhà 2 tầng 7x11m đẹp mê ly đầy đủ tiện nghi

Thiết kế nhà 2 tầng trên một mảnh đất có diện tích 7x11m vừa đảm bảo tính thẩm mỹ vừa đảm bảo đầy đủ công năng sử dụng là những mẫu thiết kế được nhiều người tìm kiếm. Để đáp ứng nhu cầu của người dân hiện nay, chúng tôi xin giới thiệu đến bạn những mẫu thiết kế nhà 2 tầng 7x11m đẹp hiện đại và sang trọng nhất hiện nay để bạn tham khảo.

Liên hệ ngay với Công Ty Thiết Kế Nhà 365 để nhận báo giá thi công nhà phố trọn gói và được tư vấn miễn phí từ Kiến Trúc Sư!

call

Tham khảo bản vẽ bản vẽ thiết kế nhà 2 tầng 7x11m

Đầu tiên, chúng ta cùng xem bản vẽ thiết kế nhà 2 tầng 7x11m bố trí công năng chi tiết. Tầng 1 sẽ bao gồm với 1 phòng khách lớn, 1 phòng ngủ, 1 WC chung và 1 phòng bếp sinh hoạt ăn uống. Không gian phòng khách được thiết kế rộng rãi và thoáng mát ở ngay lối cửa đi vào.

thiết kế nhà 2 tầng 7x11m
Bản vẽ nhà 2 tầng 7x11m với tầng 1 đầy đủ tiện nghi

Đi vào bên trong nhà là khu vực cầu thang. Đối diện cầu thang là nhà vệ sinh chung kín đáo. Sâu trong cùng là một phòng bếp kết hợp phòng ăn thông với lối đi cửa sau tiện lợi. Phòng ngủ được bố trí ở góc đối diện phòng bếp để tạo sự riêng tư cho thành viên sử dụng.

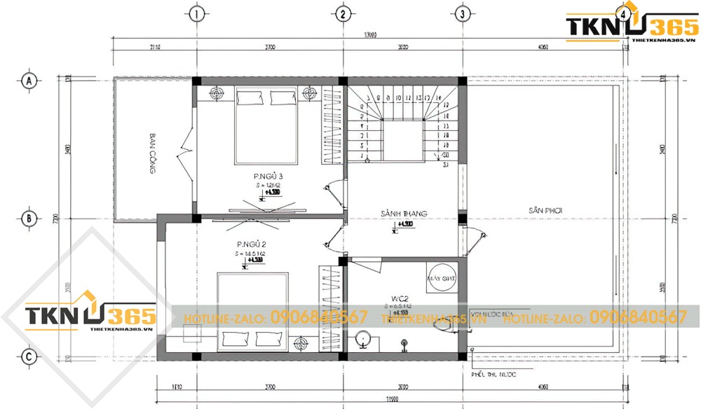
thiết kế nhà 2 tầng 7x11m
Bản vẽ nhà 2 tầng 7x11m với tầng 2 có 2 phòng ngủ, sân phơi lớn

Đây là bản vẽ thiết kế nhà 2 tầng 7x11m khoa học, hợp lý. Các kiến trúc sư đã thiết kế đơn giản với 2 phòng ngủ, 1 WC và khu vực sân phơi đồ rộng rãi ở phía sau nhà. Mẫu thiết kế này vừa đảm bảo được khu vực sinh  hoạt chung rộng rãi vừa đảm bảo sự riêng tư kín đáo cho những không gian riêng.

55+ Mẫu thiết kế nhà 2 tầng 7x11m đẹp hiện đại, sang trọng

Sau đây là những mẫu thiết kế nhà phố 7m dài 11m 2 tầng đẹp hiện đại, sang. Những mẫu nhà mặt phố đẹp này có kiến trúc mặt tiền 7m tập trung chủ yếu vào những hình khối đơn giản không rườm rà, rối mắt.

Thiết kế nhà 2 tầng 7x11m
Mẫu thiết kế nhà 2 tầng 7x11m đơn giản nhưng vẫn sang trọng
Thiết kế nhà 2 tầng 7x11m
Sự phối hợp những hình khối vuông vức tạo nên sự độc đáo trong thiết kế
Thiết kế nhà 2 tầng 7x11m
Đây cũng là một mẫu nhà mang phong cách hiện đại rất đáng để tham khảo
Thiết kế nhà 2 tầng hình chữ L
Thiết kế nhà 2 tầng hình chữ L cũng được nhiều người lựa chọn
thiết kế nhà 2 tầng 7x11m
Một mẫu thiết kế nhà 2 tầng 7x11m tối giản, hiện đại phù hợp với cặp đôi vợ chồng trẻ
thiết kế nhà 2 tầng 7x11m
Thiết kế  mái lệch độc đáo với tông màu trắng làm chủ đạo, kết hợp chút màu nâu, chấm phá thêm và đường màu cam nổi bật
thiết kế nhà 2 tầng 7x11m
Các cửa đều được làm bằng nhôm kính kết hợp ban công để tận dụng tối đa ánh sáng tự nhiên
Thiết kế nhà 2 tầng với diện tích 7x11m
Thiết kế nhà 2 tầng với diện tích 7x11m đơn giản nhưng đầy đủ tiện ích
Mẫu nhà 2 tầng 7x11m
Một mẫu nhà 2 tầng 7x11m với sân vườn có nhiều cây xanh
Thiết kế nhà kiểu mái Nhật
Thiết kế nhà kiểu mái Nhật, có thêm ban công trồng cây xanh đẹp mê đắm lòng người
Thiết kế nhà 2 tầng 7x11m
Với những hình khối đơn giản nhưng đem đến một ngôi nhà mới lạ, hiện đại
Thiết kế nhà 2 tầng 7x11m
Tông màu trắng kết hợp màu xám luôn đem đến sự hiện đại, trẻ trung
Nhà phố 2 tầng 7x11m có ban công
Nhà phố 2 tầng 7x11m có ban công tận dụng ánh sáng tự nhiên
Mẫu thiết kế nhà 2 tầng 7x11m
Mẫu thiết kế nhà 2 tầng 7x11m mái bằng được sơn màu trắng kết hợp cửa nhôm kính
Một mẫu nhà có sân vườn
Một mẫu nhà có sân vườn cây xanh nhiều người mơ ước
Thiết kế nhà tối giản
Thiết kế tối giản nhưng trẻ trung hiện đại
Thiết kế nhà mái nhật
Thiết kế mái nhật cùng phong cách tân cổ điển sang trọng
Mẫu nhà có gara ô tô
Mẫu nhà có gara ô tô, có ban công với tone nâu cam làm màu chủ đạo
thiết kế nhà 2 tầng 7x11m
Với những đường nét đơn giản, các kiến trúc sư đã mang đến một mẫu nhà tràn ngập ánh sáng và cây xanh
thiết kế nhà 2 tầng 7x11m
Mái nhà hình chóp nhọn, kết hợp ban công phù hợp với những người không thích sự nhàm chán
thiết kế nhà 2 tầng 7x11m
Tông màu trắng kết hợp màu xám luôn đem đến sự hiện đại, trẻ trung
thiết kế nhà 2 tầng 7x11m
Mẫu thiết kế nhà nhà 2 tầng 7x11m có sân vườn rộng rãi
thiết kế nhà 2 tầng 7x11m
Mẫu nhà thiết kế hình chữ L có không gian để xe rộng rãi
thiết kế nhà 2 tầng 7x11m
Mẫu nhà 2 tầng 7x11m mái bằng với thiết kế đơn giản
thiết kế nhà 2 tầng 7x11m
Nhà 2 tầng 7x11 có gara ô tô hiện đại, kín đáo
thiết kế nhà 2 tầng 7x11m
Ngôi nhà 2 tầng có sân vườn, ban công

Đơn vị thiết kế thi công nhà 2 tầng 7x11m chuyên nghiệp – Công Ty Thiết Kế Nhà 365

Công ty Thiết Kế Nhà 365 là một trong những công ty nổi tiếng với những công trình nhà ở đẹp, chất lượng được nhiều khách hàng tin tưởng. Đây là công ty có đầy đủ những yếu tố của một đơn vị thiết kế và thi công nhà ở chuyên nghiệp:

  • Đã có hơn 10 năm kinh nghiệm trong lĩnh vực thiết kế và thi công công trình.
  • Có đầy đủ các trang thiết bị từ đơn giản đến hiện đại như máy ép cọc, máy khoan,… để phục vụ thi công công trình.
  • Đội ngũ nhân viên giàu kiến thức, kinh nghiệm chuyên môn.
  • Tư vấn thiết kế miễn phí nhà 2 tầng 7x11m phù hợp với mức kinh phí của khách hàng.
  • Cam kết thi công đúng 100% các hạng mục đã thỏa thuận trong hợp đồng.
  • Đảm bảo không có phát sinh thêm phụ phí ngoài chi phí dự tính.
  • Công trình hoàn thiện xong giống bản vẽ thiết kế đến 99%.
  • Luôn đảm bảo yếu tố phong thủy, tính thẩm mỹ cũng như công năng sử dụng của công trình.
  • Nhận thi công thiết kế theo mẫu thiết kế của khách hàng.

thiết kế nhà 2 tầng 7x11m
Hình ảnh thi công thực tế của công ty Thiết Kế Nhà 365

Bài viết trên đây đã giới thiệu đến bạn mẫu thiết kế nhà 2 tầng 7x11m đẹp, chất lượng và đảm bảo công năng sử dụng. Nếu bạn đang cần được tư vấn về mẫu thiết kế thi công nhà trọn gói, hãy liên hệ ngay Công Ty Thiết Kế Nhà 365 qua 0906840567 – Mr. Thắng hoặc info@thietkenha365.vn để được tư vấn miễn phí.

Tham khảo thêm các mẫu thiết kế nhà 2 tầng đẹp khác:

Công Ty TNHH Thiết Kế Nhà 365

  • Địa chỉ office: 294 Lê Trọng Tấn, Phường Tây Thạnh, Quận Tân Phú, Thành Phố Hồ Chí Minh
  • Email: thietkenha365@gmail.com
  • Số điện thoại: 0906840567 – Mr. Thắng
  • Website: https://demo.thietkenha365.vn/

Hoàng Đức Thắng

Hoàng Đức Thắng là kiến trúc sư đồng thời là CEO của Công ty Thiết Kế Nhà 365, tôi luôn cập nhật những xu hướng mới nhất trong lĩnh vực xây dựng, kiến trúc và nội thất để mang đến cho bạn đọc những thông tin bổ ích nhất. Tôi luôn sẵn sàng chia sẻ những kinh nghiệm của mình để giúp bạn đọc có thể xây dựng được những ngôi nhà không chỉ đẹp mà còn hoàn hảo về mọi mặt.
Hoàng Đức Thắng – CEO của Công ty TNHH Thiết Kế Nhà 365

HẸN GẶP SAU 1H

Trực tiếp với chuyên gia

Gọi: 0906.840.567

(Mr. Thắng)

NHẬN TƯ VẤN MIỄN PHÍ

Trao đổi trực tiếp với KTS 10 năm kinh nghiệm.

Nhận thiết kế và thi công nhà ở khu vực miền Nam





    Gợi ý viết yêu cầu: bạn cần sửa nhà hay xây mới, diện tích bao nhiêu, ngân sách dự kiến,...

    ĐỂ THÔNG TIN NHẬN TƯ VẤN NGAY





      Gợi ý viết yêu cầu: bạn cần sửa nhà hay xây mới, diện tích bao nhiêu, ngân sách dự kiến,...