Search
Close this search box.

5 Mẫu thiết kế nhà 5x10m 3 tầng được ưa chuộng nhất hiện nay

Chúng tôi đã nhận được rất nhiều yêu cầu cũng như câu hỏi về thiết kế nhà 5x10m 3 tầng từ email và cuộc gọi trong suốt thời gian qua. Không ít gia đình sở hữu đất nền nhưng chưa biết làm sao để xây dựng tổ ấm hợp lý, đầy đủ công năng, đẹp mắt với mức giá phải chăng nhất. Vì vậy hôm nay Công Ty Thiết Kế Nhà 365 sẽ gợi ý bản vẽ thiết kế nhà đẹp 3 tầng 5x10m theo nguyện vọng của quý khách hàng. Bạn hãy nhanh tay lưu lại để ứng dụng cho không gian sống của mình nhé!

Liên hệ ngay với Công Ty Thiết Kế Nhà 365 để nhận báo giá thi công nhà phố trọn gói và được tư vấn miễn phí từ Kiến Trúc Sư!

call

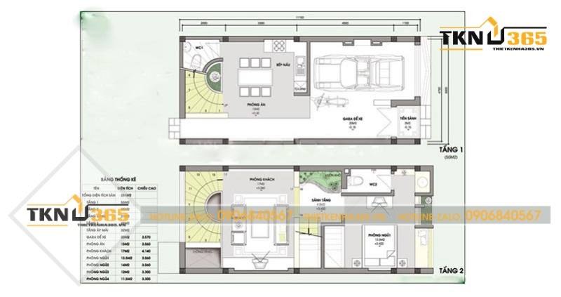
Thông tin công trình mẫu nhà 5x10m 3 tầng

  • Khách hàng: Chị Hiền
  • Địa chỉ: Quận 5, TPHCM
  • Diện tích: 5x10m
  • Số phòng ngủ: 3 phòng
  • Hạng mục thiết kế – thi công: Nhà phố 3 tầng
  • Đơn vị thiết kế – thi công: Công ty Thiết Kế Nhà 365
  • Các phòng chức năng: Phòng khách, phòng bếp + ăn, 03 phòng ngủ, phòng thờ, nhà vệ sinh.

Tư vấn thiết kế nhà 5x10m 3 tầng theo yêu cầu gia chủ

Yêu cầu của chị Hiền là thiết kế một mẫu nhà 3 tầng diện tích 5x10m theo lối kiến trúc nhà phố hiện đại. Trong đó ưu tiên các tone màu ngoại thất sáng, trung tính. Đặc biệt, mặt tiền của ngôi nhà phải có dấu ấn riêng biệt, khác lạ so với những mẫu nhà phố hiện đại thường thấy ngày nay.

Hiện tại gia đình chị Hiền đang có tổng cộng 4 thành viên. Chị mong muốn thiết kế các phòng chức năng cơ bản gồm phòng khách, phòng bếp, phòng ăn, 3 phòng ngủ, phòng thờ và nhà vệ sinh chung. Ở tầng 2 và tầng 3 chị Hiền muốn bố trí thêm ban công để trồng cây xanh. Bên cạnh đó, gia chủ cũng muốn sử dụng chất liệu kính cho toàn bộ cửa ra vào và cửa sổ để tăng cường nguồn sáng tự nhiên.

Sau khi lắng nghe toàn bộ yêu cầu của chị Hiền, đội kiến trúc sư của Công ty Thiết Kế Nhà 365 đã đến tận nơi để khảo sát, đo đạc và bắt đầu lên phương án mặt bằng cho mẫu nhà 3 tầng 5x10m một cách hợp lý nhất.

Phối cảnh ngoại thất mẫu nhà 5x10m 3 tầng

Công ty Thiết Kế Nhà 365 đã lên phương án mặt tiền đúng theo mong muốn thiết kế của chị Hiền. Cụ thể, các kiến trúc sư đã lựa chọn tone màu trắng chủ đạo để mang đến vẻ đẹp thanh lịch, trang nhã cho ngôi nhà. Ban công làm bằng sắt phủ sơn tĩnh điện bền bỉ, có tính thẩm mỹ cao và tiết kiệm chi phí hơn ban công bê tông.

thiết kế nhà 3 tầng 5x10m
Mẫu thiết kế mặt tiền nhà 3 tầng diện tích 5x10m

Bản vẽ thiết kế nhà 5x10m 3 tầng chi tiết

Ngôi nhà 3 tầng 5x10m này cũng có mặt bằng công năng đáp ứng đúng yêu cầu của gia chủ. Sau đây là bản vẽ thiết kế nhà 3 tầng 5x10m đối với từng tầng:

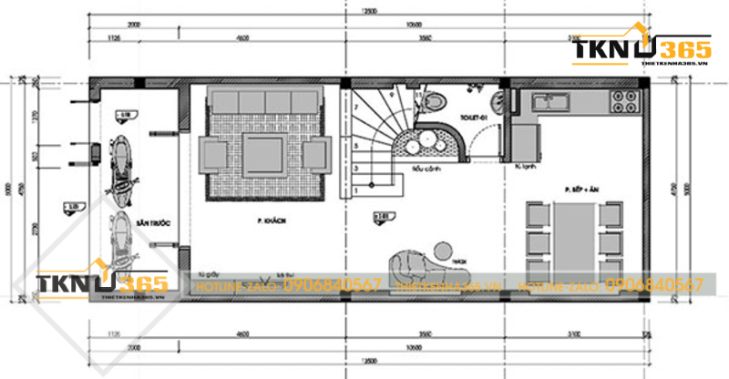
Bản vẽ công năng tầng 1

Tầng 1 của mẫu nhà 3 tầng 5x10m có khoảng sân nhỏ phía trước có thể dùng làm nơi để xe máy. Từ cửa chính bước vào là phòng khách, được ngăn cách với phòng bếp và khu vực để bàn ăn bởi cầu thang thông tầng. Đây là thiết kế thông minh, tạo sự riêng tư kín đáo cho cả hai không gian phòng khách và phòng bếp. Khu vực lối lên cầu thang được kết hợp bài trí tiểu cảnh tạo điểm nhấn đặc sắc cho thiết kế nội thất.

Bản vẽ tầng 1 thiết kế nhà 3 tầng 5x10m
Bản vẽ tầng 1 thiết kế nhà 3 tầng 5x10m

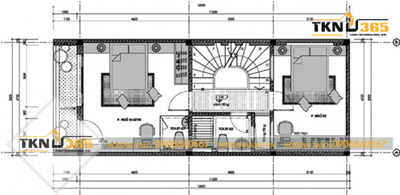
Bản vẽ công năng tầng 2

Toàn bộ tầng 2 được dùng để bố trí 02 phòng ngủ với 2 nhà vệ sinh khép kín riêng biệt và ban công trước nhà. Phòng ngủ master dành cho bố mẹ được thiết kế với diện tích lớn hơn và có cửa ra vào, cửa sổ mở ra ban công để tạo sự thông thoáng và tăng nguồn sáng tự nhiên.

Mặt bằng công năng tầng 2 của bản vẽ thiết kế nhà 3 tầng 5x10m
Mặt bằng công năng tầng 2 của bản vẽ thiết kế nhà 3 tầng 5x10m

Bản vẽ công năng tầng 3

Theo bản vẽ thiết kế nhà 3 tầng 5x10m, tầng 3 của ngôi nhà cũng được bố trí vô cùng hợp lý, khoa học. Sân thượng chiếm khoảng diện tích rộng phía trước nhà, tại đây gia chủ có thể tận dụng để phơi quần áo, bài trí các chậu cây cảnh, hòn non bộ… Phòng thờ được đặt ngay cạnh sân thượng, có cửa mở ra ngoài sân để đón gió mát. Phòng ngủ thứ 3 được đặt ở phía cuối cùng của ngôi nhà, bên trái cầu thang.

Mặt bằng tầng 3 của bản vẽ thiết kế nhà 3 tầng 5x10m
Mặt bằng tầng 3 của bản vẽ thiết kế nhà 3 tầng 5x10m

Phối cảnh nội thất mẫu nhà 5x10m 3 tầng

Nội thất không gian phòng khách

Nội thất phòng khách được bài trí vô cùng ấm cúng và trang nhã. Kiến trúc sư lựa chọn thiết kế sofa dạng quay tròn vừa tiết kiệm diện tích, vừa giúp các thành viên trong gia đình xích lại gần nhau hơn. Tone màu trắng của sàn nhà, ghế sofa và tấm ốp tường vân đá tạo cảm giác ngôi nhà như rộng rãi hơn.

thiết kế nhà 3 tầng 5x10m
Thiết kế nội thất phòng khách nhà 5x10m 3 tầng

Nội thất không gian phòng bếp

Ngôi nhà có phòng bếp được thiết kế thanh lịch, gọn gàng và hiện đại, đúng theo tiêu chí mà gia chủ đặt ra. Tủ bếp chữ L nhỏ gọn, không chiếm nhiều không gian lắp đặt. Tủ bếp trên phủ Acrylic phản gương mang đến vẻ đẹp lịch lãm.

thiết kế nhà 3 tầng 5x10m
Nội thất phòng bếp thiết kế nhà 3 tầng 5x10m của chị Hiền Quận 5

Nội thất không gian phòng ngủ

Bước vào phòng ngủ, gia chủ cảm thấy vô cùng hài lòng với các chất liệu cao cấp được sử dụng như thảm nhung, chăn lông, ốp tường bọc da… Bên cạnh giường còn có tủ quần áo được trang bị hệ thống đèn chiếu sáng lung linh, huyền ảo.

thiết kế nhà 3 tầng 5x10m
Mẫu nội thất phòng ngủ nhà 3 tầng diện tích 5x10m

Nội thất không gian phòng thờ

Phòng thờ của ngôi nhà có thiết kế không quá cầu kỳ nhưng đầy trang nghiêm, tôn kính. Phần lớn các món đồ nội thất trong phòng thờ đều làm bằng gỗ tự nhiên với vẻ đẹp truyền thống. Hai bên bàn thờ còn được bố trí hai chậu cây xanh để tạo điểm nhấn xanh mát cho căn phòng.

thiết kế nhà 3 tầng 5x10m
Thiết kế nội thất phòng thờ nhà 3 tầng 5x10m

Nội thất không gian phòng tắm và vệ sinh

Mặc dù có diện tích không quá rộng rãi nhưng không gian phòng tắm và vệ sinh của ngôi nhà vẫn đảm bảo sự thuận tiện khi sử dụng. Kiến trúc sư lựa chọn bồn tắm thay vì thiết kế phòng tắm đứng để mang đến cảm giác thư giãn, thoải mái cho gia chủ sau một ngày dài làm việc.

thiết kế nhà 3 tầng 5x10m
Nội thất phòng tắm và nhà vệ sinh tại nhà 3 tầng 5x10m của chị Hiền Quận 5

Một số mẫu nhà 5x10m 3 tầng đẹp đáng tham khảo khác

Mẫu 1: Thiết kế nhà 5x10m 3 tầng đẹp, hiện đại

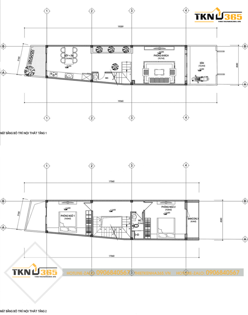
Đây là thiết kế nhà ống 3 tầng 5x10m hiện đại và đẹp mắt. Tầng trệt của ngôi nhà có tường rào bao quanh để đảm bảo sự riêng tư, an toàn cho gia chủ. Tầng 2 và tầng 3 có ban công xây đưa ra phía ngoài để tăng diện tích sử dụng nhưng vẫn đảm bảo tính thẩm mỹ.

thiết kế nhà 3 tầng 5x10m
Mẫu thiết kế mặt tiền nhà 3 tầng diện tích 5x10 hiện đại
bản vẽ thiết kế nhà 3 tầng 5x10m
Bản vẽ thiết kế nhà 3 tầng 5x10m tầng 1 và tầng 2

Với mẫu nhà ống 5x10m này, kiến trúc sư thiết kế tầng 1 gồm các khu vực như sân phía trước nhà, phòng khách, phòng bếp ăn và sảnh. Đặc biệt trung tâm ngôi nhà còn có giếng trời để tăng cường đối lưu không khí. Tầng 2 của ngôi nhà là nơi nghỉ ngơi của các thành viên trong gia đình, với 1 phòng ngủ rộng dành cho bố mẹ và 1 phòng ngủ nhỏ hơn cho con.

thiet ke nha 3 tang 5x10m 12
Mặt bằng công năng tầng 3 nhà 5x10m 3 tầng

Lên đến tầng 3, ngoài phòng ngủ và phòng thờ thì kiến trúc sư cũng dành một khoảng không gian nhỏ làm nhà kho chứa đồ. Thiết kế này đặc biệt hữu ích với những gia đình có đông thành viên và nhiều đồ đạc.

Mẫu 2: Mẫu nhà 3 tầng 1 tum 5x10m độc đáo

Đây là thiết kế nhà 3 tầng 1 tum diện tích 5x10m độc đáo và hiện đại. Kiến trúc sư đã phối hợp nhiều mảng màu khác nhau một cách hài hòa để tạo điểm nhấn ấn tượng cho công trình. Các mảng xanh kiến trúc ở ban công và sân thượng giúp ngôi nhà trở nên gần gũi hơn với thiên nhiên.

mẫu nhà 3 tầng 5x10m
Phối cảnh mặt tiền thiết kế nhà 3 tầng 5x10m

Phần lớn diện tích tầng 1 được tận dụng làm gara để ô tô và xe máy. Vì vậy kiến trúc sư đã tận dụng phần không gian còn lại làm phòng bếp kết hợp phòng ăn. Ở tầng 2 của ngôi nhà là phòng ngủ master dành cho bố mẹ với diện tích rộng. Căn phòng có cửa hướng ra ban công để đón nhận ánh sáng và gió mát.

bản vẽ thiết kế nhà 3 tầng 5x10m
Thiết kế mặt bằng tầng 1 và tầng 2 nhà 3 tầng 5x10m

Tầng 2 của ngôi nhà có 2 phòng ngủ cho con và 1 WC dùng chung cho cả hai phòng, được bố trí ở cuối nhà. Cuối cùng là tầng tum gồm sân thượng, phòng thờ, phòng giặt và sân phơi đồ. Tất cả đều được bố trí một cách hợp lý, hài hòa về phong thủy.

bản vẽ thiết kế nhà 3 tầng 5x10m
Mặt bằng công năng tầng 2 và tầng tum nhà 3 tầng 5x10m độc đáo

Mẫu 3: Thiết kế nhà 3 tầng 5x10m dạng ống

Mẫu nhà ống 3 tầng 5x10m này có thiết kế mặt tiền đơn giản, giúp gia chủ tiết kiệm nhiều chi phí thi công. Tone màu chủ đạo của ngôi nhà là trắng và ghi xám tạo ấn tượng nhẹ nhàng, thanh lịch. Hệ thống cửa sổ và ban công làm bằng kính tạo tầm nhìn rộng mở và đón sáng tốt hơn.

mẫu nhà 3 tầng 5x10m
Thiết kế mặt tiền nhà ống 5x10m 3 tầng

Mặt bằng tầng 1 của ngôi nhà được bố trí khoa học với cửa chính dẫn vào phòng khách. Tiếp đến là phòng bếp và phòng ăn được tích hợp trên cùng một không gian. Phía cuối nhà có 1 phòng ngủ và 1 WC chung. Tầng 2 gồm có 2 phòng ngủ, 1 phòng sinh hoạt chung và 1 WC dùng chung.

bản vẽ thiết kế nhà 3 tầng 5x10m
Bản vẽ mặt bằng tầng 1 và tầng 2 nhà ống 3 tầng 5x10m giá rẻ

Ở khu vực tầng 3 của ngôi nhà, kiến trúc sư đã bố trí 1 phòng thờ, 1 phòng sinh hoạt chung, 1 sân chơi và 1 sân phơi. Việc dành nhiều không gian cho sân chơi và sân phơi giúp ngôi nhà trở nên thông thoáng hơn.

bản vẽ thiết kế nhà 3 tầng 5x10m
Bản vẽ thiết kế tầng 3 nhà ống 3 tầng 5x10m

Mẫu 4: Thiết kế nhà 5x10m 3 tầng có gara

Ngôi nhà 3 tầng 5x10m có gara này sở hữu thiết kế mặt tiền hiện đại, thanh lịch. Tone màu trắng chủ đạo được điểm xuyết bởi màu ghi xám, đen và nâu. Ban công sắt phủ sơn tĩnh điện màu đen tinh tế, thanh mảnh.

mẫu nhà 3 tầng 5x10m
Mặt tiền nhà 3 tầng 5x10m có gara

Thiết kế mặt bằng công năng tầng 1 có gara rộng lớn trước nhà để xe ô tô, xe máy. Tiến vào bên trong là bếp và phòng ăn và nằm ở phía trong cùng có 1 nhà vệ sinh nhỏ. Tầng 2 của ngôi nhà có phòng khách, phòng ngủ và 1 WC dùng chung. Đặc biệt khu vực sảnh tầng còn được bố trí tiểu cảnh tạo mảng xanh thư giãn cho ngôi nhà.

bản vẽ thiết kế nhà 3 tầng 5x10m
Mặt bằng công năng tầng nhà 3 tầng 5x10m có gara

Do gara tầng 1 chiếm khá nhiều diện tích, kiến trúc sư đã thiết kế thêm tầng lửng để đáp ứng đủ nhu cầu sử dụng. Tầng lửng gồm có 2 phòng ngủ, 1 WC dùng chung và có khoảng thông tầng rộng thoáng. Tầng 3 được bố trí thêm 2 phòng ngủ nữa và 1 ban công rộng để làm sân phơi.

bản vẽ thiết kế nhà 3 tầng 5x10m
Thiết kế nội thất tầng lửng và tầng 3 nhà 3 tầng 5x10m có gara

Mẫu 5: Thiết kế nhà 3 tầng 50m2 đơn giản, tinh tế

Đây là mẫu thiết kế mặt tiền nhà 3 tầng 5x10m đơn giản nhưng vô cùng tinh tế. Nhìn chung thiết kế ngôi nhà không quá cầu kỳ chỉ có điểm nhấn duy nhất là phần mái nhà được chạm trổ hoa văn và hai bên tường tạo hình kẻ sọc.

mẫu nhà 3 tầng 5x10m
Thiết kế ngoại thất nhà 3 tầng 50m2 đơn giản, tinh tế

Thiết kế mặt bằng của ngôi nhà khá đơn giản nhưng vẫn đầy đủ các không gian chức năng. Tầng 1 gồm phòng khách và phòng ăn + bếp. Tầng 2 có 2 phòng ngủ và 1 WC dùng chung. Cuối cùng là tầng 3 có 1 phòng thờ kết hợp phòng ngủ, sân chơi kết hợp sân phơi và 1 WC.

bản vẽ thiết kế nhà 3 tầng 5x10m
Mặt bằng công năng chi tiết của thiết kế nhà 3 tầng 5x10m đơn giản, tinh tế

Công Ty Thiết Kế Nhà 365 – Đơn vị thiết kế nhà thiết kế nhà 5x10m 3 tầng uy tín, chất lượng

Kể từ khi thành lập vào năm 2012 đến nay, Công ty Thiết Kế Nhà 365 đã hoàn thành hơn 1.000 dự án thiết kế thi công nhà ở, biệt thự tại TPHCM và nhiều tỉnh thành lân cận. Mặc dù là doanh nghiệp non trẻ, ra đời trong bối cảnh cạnh tranh gay gắt nhưng công ty đã biết bất lợi thành lợi thế, không ngừng nỗ lực học hỏi, trau dồi để mang đến chất lượng dịch vụ tốt nhất cho khách hàng.

Chìa khóa thành công của Công ty Thiết Kế Nhà 365 chính là đầu tư vào con người. Toàn thể các kỹ sư xây dựng, kiến trúc sư, nhân viên và thợ thi công trong công ty luôn nỗ lực nâng cao trình độ chuyên môn nhằm tạo ra giá trị thiết thực và các công trình vững bền cùng thời gian.

Công ty Thiết Kế Nhà 365 chuyên thiết kế, thi công nhà 3 tầng 5x10m đẹp giá rẻ
Công ty Thiết Kế Nhà 365 chuyên thiết kế, thi công nhà 3 tầng 5x10m đẹp giá rẻ

Không chỉ có ưu thế về nguồn nhân lực chất lượng cao mà công ty còn sở hữu nhiều lợi thế cạnh tranh khác như:

  • Vận dụng nhiều kỹ thuật trong thiết kế, thi công nhà để mang đến công trình hài hòa về mặt công năng, tính thẩm mỹ, phong thủy, thân thiện với thiên nhiên – thổ nhưỡng và đáp ứng tốt lối sống của người Việt.
  • Có văn phòng rộng 325m2 và tổng diện tích kho bãi, khu vực để máy móc thiết bị, khu vực đúc ép và phơi bê tông cọc,… lên đến 1.325m2.
  • Áp dụng tiêu chuẩn ISO khắt khe trong mọi khâu xây dựng và quản lý, sử dụng nhiều loại máy móc tiên tiến như máy khoan cọc nhồi, máy trộn bê tông, máy ép cọc, máy đào đất…
  • Có đội ngũ thợ thi công đông đảo, đảm bảo xây dựng hiệu quả và đúng tiến độ.
  • Chỉ sử dụng các loại vật liệu xây dựng có nguồn gốc rõ ràng, vật liệu được nhập trực tiếp từ hãng nên có giá thấp hơn thị trường, cam kết thống kê vật liệu minh bạch.

Với mong muốn kiến tạo nên không gian sống lý tưởng cho mọi nhà, Công ty Thiết Kế Nhà 365 luôn cung cấp cho khách hàng những thiết kế nhà 3 tầng 5x10m đầy đủ tiện nghi và có tính thẩm mỹ cao. Quý khách có nhu cầu được tư vấn và báo giá chi tiết vui lòng liên hệ hotline của chúng tôi để được trợ giúp nhanh chóng.

Công Ty TNHH Thiết Kế Nhà 365

  • Địa chỉ office: 294 Lê Trọng Tấn, Phường Tây Thạnh, Quận Tân Phú, Thành Phố Hồ Chí Minh
  • Email: thietkenha365@gmail.com
  • Số điện thoại: 0906840567 – Mr. Thắng
  • Website: https://demo.thietkenha365.vn/

Hoàng Đức Thắng

Hoàng Đức Thắng là kiến trúc sư đồng thời là CEO của Công ty Thiết Kế Nhà 365, tôi luôn cập nhật những xu hướng mới nhất trong lĩnh vực xây dựng, kiến trúc và nội thất để mang đến cho bạn đọc những thông tin bổ ích nhất. Tôi luôn sẵn sàng chia sẻ những kinh nghiệm của mình để giúp bạn đọc có thể xây dựng được những ngôi nhà không chỉ đẹp mà còn hoàn hảo về mọi mặt.
Hoàng Đức Thắng – CEO của Công ty TNHH Thiết Kế Nhà 365

HẸN GẶP SAU 1H

Trực tiếp với chuyên gia

Gọi: 0906.840.567

(Mr. Thắng)

NHẬN TƯ VẤN MIỄN PHÍ

Trao đổi trực tiếp với KTS 10 năm kinh nghiệm.

Nhận thiết kế và thi công nhà ở khu vực miền Nam





    Gợi ý viết yêu cầu: bạn cần sửa nhà hay xây mới, diện tích bao nhiêu, ngân sách dự kiến,...

    ĐỂ THÔNG TIN NHẬN TƯ VẤN NGAY





      Gợi ý viết yêu cầu: bạn cần sửa nhà hay xây mới, diện tích bao nhiêu, ngân sách dự kiến,...