Mẫu thiết kế nhà 3 tầng 60m2 là xu hướng được nhiều gia đình lựa chọn gần đây. Những ngôi nhà 60m2 3 tầng không chỉ đáp ứng về mặt thẩm mỹ, đầy đủ công năng mà mức chi phí xây dựng cũng tiết kiệm hơn so với các mẫu nhà khác. Trong bài viết này, hãy cùng Thiết Kế Nhà 365 khám phá 55+ mẫu thiết kế nhà 3 tầng 60m2 đẹp, hiện đại, giá từ 900tr.
Xu hướng thiết kế nhà 60m2 có 3 tầng
Mẫu thiết kế nhà 3 tầng 60m2 thường được ưa chuộng với chi phí xây dựng phù hợp và tiện ích tối đa. Công việc thi công trên diện tích này dễ dàng hơn, giúp giảm thiểu chi phí không mong muốn. Bên cạnh đó, gia chủ có thể lựa chọn nhiều phong cách thiết kế như tân cổ điển, cổ điển, hiện đại cho mẫu nhà này.
Kiến trúc sư cũng dễ dàng tối ưu diện tích sử dụng, bố trí các phòng chức năng phù hợp. Việc lựa chọn nội thất cũng đơn giản và đa dạng hơn những mẫu nhà có kích thước nhỏ hẹp. Mẫu thiết kế nhà phố 3 tầng 60m2 là lựa chọn hoàn hảo, đảm bảo thẩm mỹ mà vẫn tối ưu công năng hiệu quả.

Gợi ý bản vẽ công năng nhà 3 tầng 60m2
Thiết kế bản vẽ công năng cho nhà 3 tầng diện tích 60m2 đòi hỏi sự cân nhắc kỹ lưỡng để đảm bảo tính logic, hợp lý, đủ công năng sinh hoạt mà vẫn tạo ra không gian thoải mái. Tầng trệt có sân trước đậu xe và trồng cây cảnh, phòng khách tiện nghi kết hợp với tiểu cảnh xanh mát, bếp ăn thoải mái, sân sau tiện lợi được bố trí cạnh nhà vệ sinh.

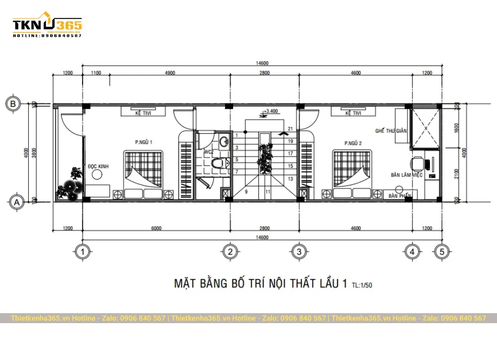
Lầu 1 của căn nhà là không gian riêng tư cho các thành viên trong gia đình. Điểm nhấn của lầu này là ban công thoáng đãng phù hợp để trồng cây xanh và tận hưởng không khí trong lành. Ở lầu 1 có 2 phòng ngủ thoải mái, được trang bị đầy đủ nội thất như: kệ tivi, bàn làm việc, bàn trang điểm,… 1 nhà vệ sinh tiện lợi cũng được bổ sung ở lầu này.

Lầu 2 của mẫu nhà phố 3 tầng diện tích 60m2 được thiết kế kỹ lưỡng nhằm tối ưu hóa công năng. Sân thượng là không gian lý tưởng cho việc thư giãn và tận hưởng không gian xanh. Phòng thờ được bố trí phía ngoài với hướng hợp phong thủy, đồng thời đảm bảo sự yên tĩnh cho việc tập trung và cầu nguyện. 1 phòng ngủ bổ sung được thêm vào lầu này, có thể sử dụng cho khách đến thăm hoặc như không gian làm việc tạm thời.

Các mẫu thiết kế nhà đẹp 3 tầng 60m2 hiện đại, được yêu thích nhất
Với sự kết hợp tinh tế giữa kiến trúc sang trọng và tính tiện ích, những mẫu thiết kế nhà 3 tầng 60m2 đang được nhiều gia đình lựa chọn. Mẫu nhà không chỉ thu hút bởi vẻ đẹp ngoại thất mà còn bởi không gian sống linh hoạt và thoải mái bên trong. Hãy cùng khám phá thêm các mẫu thiết kế nhà đẹp 3 tầng 60m2 hiện đại, được yêu thích nhất dưới đây:










Thiết Kế Nhà 365 – đơn vị thiết kế & xây dựng nhà 3 tầng 60m2
Bạn đang ấp ủ ý tưởng xây dựng một ngôi nhà 3 tầng 60m2 cho gia đình? Thiết Kế Nhà 365 chính là đơn vị đồng hành lý tưởng giúp bạn biến ước mơ thành hiện thực.
Với đội ngũ kiến trúc sư và kỹ sư dày dặn kinh nghiệm, cùng quy trình làm việc chuyên nghiệp, Thiết Kế Nhà 365 cam kết mang đến cho bạn những giải pháp thiết kế tối ưu cho ngôi nhà 3 tầng 60m2 của bạn.
Thiết kế thông minh, bố trí khoa học giúp tận dụng tối đa diện tích, đảm bảo công năng sử dụng cho từng khu vực trong nhà. Chúng tôi luôn lắng nghe mong muốn của gia chủ để thiết kế không gian sống phù hợp với sở thích, phong cách sống và ngân sách của bạn.
Bên cạnh đó, Thiết Kế Nhà 365 còn cung cấp dịch vụ thi công nhà trọn gói giúp bạn tiết kiệm thời gian và chi phí. Đội ngũ thi công lành nghề, đảm bảo chất lượng công trình theo đúng cam kết. Hệ thống giám sát thi công chặt chẽ giúp kiểm soát tiến độ và chất lượng công trình một cách hiệu quả.

Với hơn 10 năm kinh nghiệm trong lĩnh vực thiết kế và thi công nhà ở, Thiết Kế Nhà 365 đã tạo dựng được uy tín và niềm tin với khách hàng. Chúng tôi cam kết chất lượng công trình, bảo hành dài hạn và hỗ trợ khách hàng tận tình.
Với hơn 55 mẫu thiết kế nhà 3 tầng 60m2 đẹp, hiện đại, giá từ 900tr trên đây, chắc chắn bạn sẽ tìm thấy sự lựa chọn phù hợp với nhu cầu và mong muốn của mình. Tận dụng những giải pháp thiết kế sáng tạo, ngôi nhà của bạn sẽ trở thành không gian sống lý tưởng, đáp ứng đầy đủ các tiêu chí về thẩm mỹ, tiện nghi và hiện đại.
Công Ty TNHH Thiết Kế Nhà 365
- Địa chỉ office: 294 Lê Trọng Tấn, Phường Tây Thạnh, Quận Tân Phú, Thành Phố Hồ Chí Minh
- Email: thietkenha365@gmail.com
- Số điện thoại: 0906840567 – Mr. Thắng
- Website: https://demo.thietkenha365.vn/









