Thiết kế nhà 4x10 luôn khiến nhiều gia chủ đau đầu và băn khoăn trong việc bố trí các khu vực chức năng sao cho thật khoa học và thuận tiện bởi diện tích nhỏ. Bài viết dưới đây sẽ gợi ý 55+ mẫu thiết kế nhà diện tích nhỏ 4x10m khoa học, đầy đủ tiện nghi nhất hiện nay để bạn ứng dụng cho tổ ấm của mình.
-
1. Tuyển chọn 55+ mẫu thiết kế nhà 4x10m đẹp lung linh, ai cũng ngoái nhìn
- 1.1. Thiết kế nhà diện tích nhỏ 4x10m có gác lửng
- 1.2. Mẫu thiết kế nhà 4x10m mái lệch màu trắng tinh khôi
- 1.3. Mẫu thiết kế nhà 4x10m 2 tầng đơn giản, tinh tế
- 1.4. Thiết kế nhà 4x10m có tầng lửng với 7 phòng ngủ
- 1.5. Mẫu thiết kế nhà 4x10m 3 tầng mái thái
- 1.6. Thiết kế nhà 4x10m 3 tầng nhỏ xinh tiện nghi
- 1.7. Thiết kế nhà 4x10m 3 tầng năng động trẻ trung
- 1.8. Mẫu thiết kế nhà 4x10m 3 tầng tối giản thanh lịch
- 2. Các nguyên tắc thiết kế nhà 4x10m
1. Tuyển chọn 55+ mẫu thiết kế nhà 4x10m đẹp lung linh, ai cũng ngoái nhìn
Sau đây là một số mẫu thiết kế nhà 4x10m đẹp đáng kể bạn tham khảo nhất:
1.1. Thiết kế nhà diện tích nhỏ 4x10m có gác lửng
Mẫu nhà hiện đại diện tích nhỏ 4x10m có gác lửng được pha trộn giữa nét hiện đại và truyền thống. Tất cả tạo nên một tổng thể ngôi nhà ấn tượng, độc đáo. Thiết kế gác lửng thông minh giúp không gian sống được tối đa hóa, kết nối với phần dưới bằng một cầu thang đúc đẹp mắt.
Đây là một lựa chọn tuyệt vời cho những người muốn xây dựng một ngôi nhà nhỏ gọn hoặc những mẫu nhà cấp 4 hiện đại nhưng vẫn đầy đủ các tiện nghi, thoải mái.



1.2. Mẫu thiết kế nhà 4x10m mái lệch màu trắng tinh khôi
Mẫu thiết kế nhà nhỏ 4x10 mái lệch theo phong cách hiện đại với tone màu trắng tinh khôi làm tông màu chủ đạo tạo ra vẻ ngoài sạch sẽ và thanh lịch. Cửa chính được đơn giản nhưng đẹp mắt. Bên trái cửa chính là một cửa sổ lớn, cho phép ánh sáng tự nhiên đi vào ngôi nhà.






1.3. Mẫu thiết kế nhà 4x10m 2 tầng đơn giản, tinh tế
Mẫu thiết kế nhà 2 tầng 4x10m với hai tông màu đơn giản nâu và trắng. Tuy không quá cầu kỳ nhưng cũng không kém phần tinh tế cho tổng thể không gian nhà ở.





1.4. Thiết kế nhà 4x10m có tầng lửng với 7 phòng ngủ
Ngôi nhà đẹp có thiết kế độc lạ kết hợp cửa kính tạo nên vẻ thanh thoát, hiện đại cho ngôi nhà. Mẫu nhà này có tới 7 phòng ngủ để đảm bảo đủ không gian sinh hoạt cho nhiều người. Thích hợp với những gia đình có nhiều thế hệ chung sống trong một nhà.










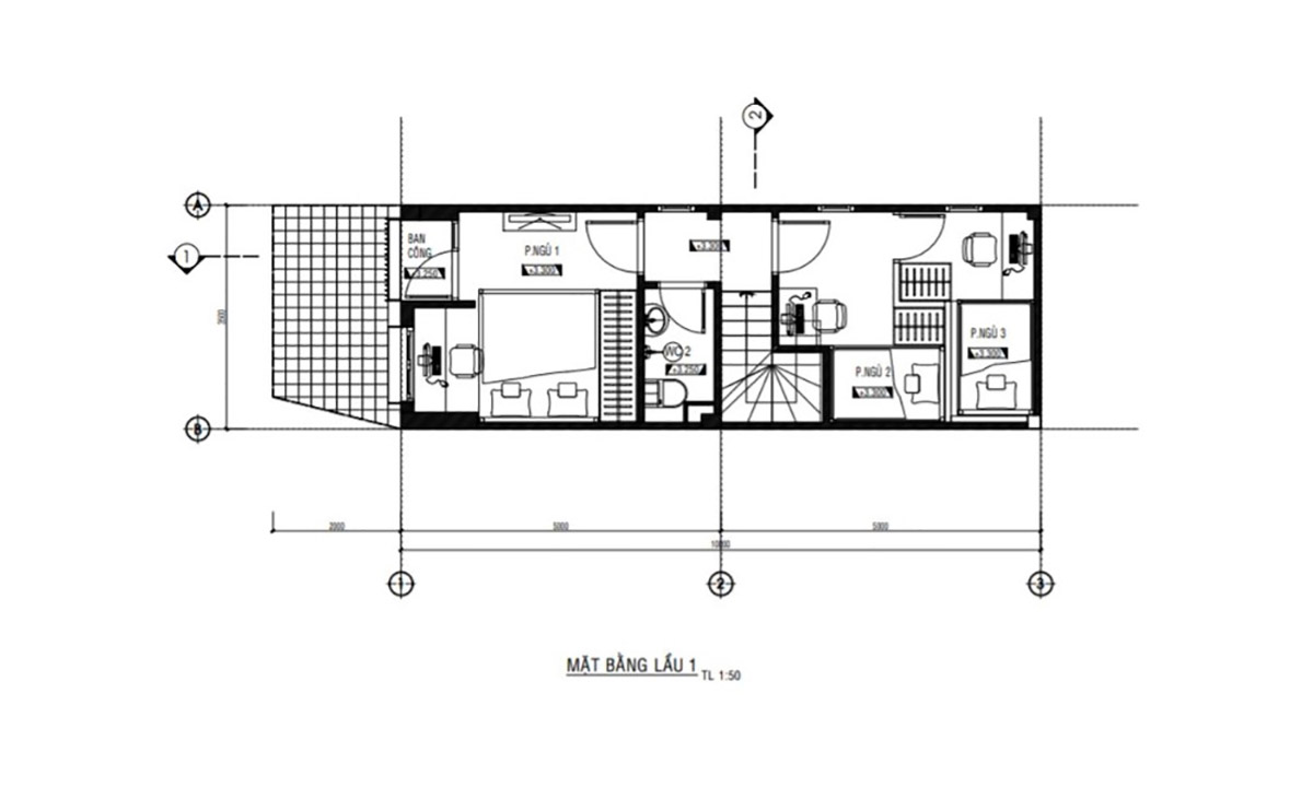
1.5. Mẫu thiết kế nhà 4x10m 3 tầng mái thái
Thiết kế nhà diện tích nhỏ 4x10 có tầng mái thái luôn là mẫu thiết kế nhà được nhiều khách hàng ưa chuộng bởi nó vừa đảm bảo được sự mát mẻ vừa đảm bảo tính thẩm mỹ của tổng thể ngôi nhà. Phần mặt tiền với các chi tiết trang trí đơn giản nhưng tinh tế, tạo ra vẻ đẹp hiện đại đậm hơi thở Á Đông. Màu sắc từ tường đến mái đều là gam màu nhẹ, tạo ra sự mát mẻ và dễ chịu trong thời tiết nắng nóng thường xuyên ở nước ta.








1.6. Thiết kế nhà 4x10m 3 tầng nhỏ xinh tiện nghi
Đây là một mẫu nhà có diện tích nhỏ 4x10m với 3 tầng nhỏ xinh đầy tiện nghi dành cho gia đình đông thành viên. Với mẫu nhà này, gia đình sẽ có không gian sinh hoạt đầy đủ chức năng, tận dụng được diện tích nhỏ hẹp. Kiến trúc sư cũng tính toán tỉ mỉ để bố trí hợp lý nhất giúp không gian thông thoáng, giàu ánh sáng tự nhiên và đảm bảo an toàn cho các thành viên sinh sống tại đây.







1.7. Thiết kế nhà 4x10m 3 tầng năng động trẻ trung
Ngôi nhà 3 tầng chọn tông màu trắng hiện đại làm tông màu chủ đạo cùng ban công hứng nắng kết hợp cây xanh. Mặt tiền nhà năng động và phá cách được thiết kế với sự đa dạng về hình dạng, kết cấu tạo nên một diện mạo độc đáo và khác biệt so với các ngôi nhà xung quanh.






1.8. Mẫu thiết kế nhà 4x10m 3 tầng tối giản thanh lịch
Mẫu nhà nhỏ 4x10m 3 tầng với màu trắng làm màu chủ đạo trên toàn bộ mặt tiền, từ tường, cửa sổ, cửa ra vào đến các chi tiết nhỏ như thanh nẹp và đường viền, tạo nên sự tinh tế và trang nhã. Màu xanh được sử dụng để tôn lên các chi tiết cửa sổ và ban công, tạo thành nhấn độc đáo và dịu mắt cho tổng thể công trình.






Tham khảo: Mẫu thiết kế nhà ống 2 tầng 4x12m đẹp, kèm bản vẽ chi tiết
2. Các nguyên tắc thiết kế nhà 4x10m
Dưới đây là một số lưu ý bạn cần nắm khi thiết kế nhà nhỏ 4x10m:
2.1. Sử dụng gam màu sáng
Khi thiết kế một ngôi nhà có diện tích nhỏ thì tông màu sơn vô cùng quan trọng. Hãy sử dụng những tông màu sáng như pastel, kem, be, xám, trắng cho ngôi nhà. Đây là những tông màu giúp cho không gian như mở rộng hơn, hẹn chế tông màu tối có thể khiến ngôi nhà của bạn trở nên bí bách, chật hẹp.

2.2. Lựa chọn đồ nội thất có thiết kế và màu sắc đơn giản
Vì diện tích nhà ở không lớn nên cần lựa chọn đồ nội thất cho phù hợp. Nếu chọn quá nhiều đồ nội thất sẽ khiến không gian nhà trở nên chật hẹp. Hãy ưu tiên lựa chọn những thiết bị đa năng, có màu sắc tươi sáng. Tránh chọn những vật dụng có màu sắc hoa văn rườm rà, nhiều họa tiết.
2.3. Tận dụng tối đa các khoảng trống trong ngôi nhà
Một trong những điều cần thiết khi thiết kế ngôi nhà có diện tích nhỏ 4x10m2 là tận dụng tất cả góc chết. Các khoảng trống trong ngôi nhà như vách tường, gầm cầu thang không được bỏ trống. Điều này giúp bạn mở rộng được không gian sử dụng, ngôi nhà sẽ trông rộng rãi, gọn gàng hơn.
2.4. Sử dụng nội thất có thiết kế đụng trần
Chọn những loại tủ kịch trần để tăng không gian lưu trữ đồ đạc. Chẳng hạn như nên chọn tủ quần áo hoặc tủ bếp kịch trần. Khi thi công nhà ở nên xây trần cao hơn một chút để đóng được nhiều tủ hơn.

Hiện nay Công ty Thiết Kế Nhà 365 là một trong những đơn vị chuyên thiết kế nhà 4x10m được nhiều khách hàng tin tưởng lựa chọn nhờ những ưu điểm sau:
- Với hơn 10 năm hoạt động trong lĩnh vực xây dựng, Công ty Thiết Kế Nhà 365 luôn bắt kịp các xu hướng kiến trúc mới nhất để đem đến cho khách hàng những mẫu nhà ưng ý nhất.
- Trang bị đầy đủ các loại máy móc hiện đại: Công ty có các máy khoan nhồi cọc, máy trộn bê tông cùng nhiều thiết bị hiện đại khác phục vụ cho quá trình thi công được nhanh chóng hơn.
- Đội ngũ nhân viên, kiến trúc sư giàu kinh nghiệm với thái độ làm việc vô cùng tận tâm, nhiệt tình.
- Luôn cam kết thi công đúng 100% các hạng mục trong hợp đồng.
- Tư vấn thiết kế miễn phí, giúp khách hàng tiết kiệm được một khoản chi phí lớn khi xây nhà.
- Công trình nhà ở hoàn thiện xong sẽ giống bản vẽ thiết kế đến 99%, đảm bảo đem đến sự hài lòng tuyệt đối cho khách hàng.
Mong rằng với những mẫu thiết kế nhà 4x10m trên đã giúp bạn có thêm nhiều ý tưởng hay cho căn nhà tương lai của mình. Nếu có nhu cầu cần được tư vấn và thiết kế nhà hãy liên hệ ngay đến Công ty Thiết Kế Nhà 365 để được nhân viên của chúng tôi hỗ trợ nhiệt tình nhất.
Liên hệ ngay với Công Ty Thiết Kế Nhà 365 để nhận báo giá thiết kế nhà phố trọn gói và được tư vấn miễn phí từ Kiến Trúc Sư!











