Thiết kế nhà 5x12 cần bám sát nhu cầu sinh hoạt của từng thành viên trong gia đình. Từ thiết kế mặt tiền bên ngoài cho đến mặt bằng công năng bên trong đều cần có sự tính toán, lên kế hoạch chi tiết và tỉ mỉ. Trong bài viết này, Công ty Thiết Kế Nhà 365 sẽ giới thiệu đến bạn các mẫu bản vẽ thiết kế nhà 5x12m đẹp nhất để bạn tham khảo.
- 1. Gợi ý các mẫu thiết kế nhà 5x12 đẹp được ưa chuộng nhất
-
2. Tham khảo bản vẽ thiết kế nhà 5x12m hiện đại, tiện nghi
- 2.1. Bản vẽ thiết kế nhà ống 5x12m 2 tầng
- 2.2. Bản vẽ thiết kế nhà phố 5x12m 3 phòng ngủ
- 2.3. Bản vẽ thiết kế nhà 5x12m 2 tầng 1 tum
- 2.4. Bản vẽ thiết kế nhà 1 trệt 1 lầu 5x12m 2 phòng ngủ
- 2.5. Bản vẽ thiết kế nhà ống 5x12m 3 tầng
- 2.6. Bản vẽ thiết kế nhà 5x12m 3 phòng ngủ có gác lửng
- 2.7. Bản vẽ thiết kế nhà cấp 4 5x12m hiện đại
- 2.8. Bản vẽ thiết kế nhà cấp 4 5x12m có gara
- 2.9. Mẫu thiết kế nhà 5x12m 2 tầng ở nông thôn
- 3. Tư vấn xây nhà 5x12m tiết kiệm chi phí
- 4. Chi phí thiết kế nhà 5x12m là bao nhiêu?
- 5. Công ty Thiết Kế Nhà 365 – Đơn vị thiết kế nhà 5x12m uy tín và chuyên nghiệp
1. Gợi ý các mẫu thiết kế nhà 5x12 đẹp được ưa chuộng nhất
Nhà ống 2 tầng 5x12 là mẫu nhà hiện đại rất được lòng các cư dân ở đô thị lớn. Thiết kế tận dụng tối đa diện tích sử dụng, có thể ở từ 4-6 người.

Thiết kế nhà phố diện tích 5x12m mái bằng đẹp mắt và thông thoáng. Nếu gia chủ muốn tiết kiệm chi phí và bảo vệ môi trường thì việc lắp đặt hệ thống năng lượng mặt trời cũng khá dễ dàng.

Với thiết kế nhà diện tích 5x12m có tum thu hút với cách phối hợp hình khối ở mặt tiền. Các mảng màu đậm nhạt hài hòa với nhau cùng hệ thống cửa, lan can sắt sơn tĩnh điện kẽ thưa tạo cảm giác thoáng đãng.

Thiết kế nhà 2 tầng 5x12m mái thái quý phái và sang trọng. Phần mái lợp ngói chống nóng cực tốt, giúp không gian nội thất bên trong mát mẻ hơn.

Thiết kế nhà 5x12m 3 tầng tân cổ điển với mặt tiền không quá cầu kỳ nhưng vẫn toát lên nét nguy nga. Lan can sắt nghệ thuật và cổng sắt kết hợp gỗ tạo điểm nhấn đậm sắc cổ kính mà vẫn hài hòa với phong cách, màu sắc tường, mái, cửa sổ.

Mẫu nhà đẹp với diện tích 5x12m và thiết kế mái bằng là một kiệt tác kiến trúc độc đáo, tạo nên một không gian sống hiện đại và ấn tượng. Mặt tiền của ngôi nhà thường mang đậm phong cách thiết kế riêng, với các chi tiết độc đáo tạo nên điểm nhấn. Màu sắc thường được lựa chọn cân nhắc, tùy thuộc vào sở thích của gia chủ, có thể là gam màu tương phản như đen và trắng, hoặc màu sắc ấm áp như nâu và vàng. Ngôi nhà vào thường được thiết kế theo phong cách hiện đại và sáng tạo, tạo điểm nhấn trong thiết kế tổng thể.

Phối cảnh mặt tiền của căn nhà ống 5x12m với gác lửng thiết kế đẹp và hiện đại là một tác phẩm kiến trúc đầy ấn tượng và tạo ấn tượng sâu sắc. Ngôi nhà này thể hiện sự sáng tạo và tối giản trong thiết kế. Gác lửng là một đặc điểm độc đáo của ngôi nhà, tạo nên sự linh hoạt và sáng tạo trong sử dụng diện tích. Nó có thể được sử dụng làm phòng ngủ thêm, phòng làm việc hoặc thậm chí là không gian giải trí gia đình.

Thiết kế nhà 5x12 hiện đại đơn giản gây ấn tượng bằng các gam màu trung tính như đen, nâu, kem, nhấn nhá bằng vài mảng màu cam, đèn vàng hắt sáng ở bậc tam cấp. Không gian nhỏ ấm cúng phù hợp cho gia đình từ 3-5 người sinh hoạt.

Mẫu nhà 5x12m thiết kế hiện đại với không gian nhiều cửa sổ giúp lưu thông khí tốt và nhận nhiều ánh sáng. Lan can kính tạo cảm giác năng động. Cây xanh trên sân sẽ làm không khí trong lành hơn. Không gian nhiều cửa sổ tạo điểm nhấn trong thiết kế và đồng thời tạo cảm giác thoải mái, với ánh sáng tự nhiên và không khí tươi mát xâm nhập từ nhiều hướng khác nhau. Các cửa sổ lớn, thường có cửa sổ trần, giúp cải thiện quạt không khí và giữ cho không gian luôn thoáng đãng.

Xem thêm: 60+ Mẫu nhà ống 2 tầng mái thái mặt tiền 5m đẹp ấn tượng
2. Tham khảo bản vẽ thiết kế nhà 5x12m hiện đại, tiện nghi
Nhà 5x12m có chiều rộng mặt tiền là 5m và chiều dài 12m. Nói cách khác đây là kiểu nhà ống nhỏ, thường thấy ở các đô thị và thành phố lớn. Khi tham khảo các mẫu phối cảnh nhà 5x12m, bạn sẽ thấy có điểm chung là hầu hết đều được thiết kế theo lối kiến trúc hiện đại hoặc tân cổ điển. Những chi tiết ngoại thất cầu kỳ, rườm rà hầu như không xuất hiện.
Đối với bản vẽ thiết kế mặt bằng, ngôi nhà này vẫn có đầy đủ các không gian chức năng cần thiết như phòng khách, phòng bếp ăn, phòng ngủ, phòng sinh hoạt chung, phòng thờ, sân phơi, WC,… Ngoài ra nếu có đủ diện tích, gia chủ có thể đầu tư thêm phòng hát karaoke, phòng làm việc, phòng giặt, phòng tắm, sân thượng, nhà kho, phòng thư giãn,…
Dưới đây là một số mẫu bản vẽ thiết kế nhà 5x12m bạn có thể tham khảo để có thêm ý tưởng cho tổ ấm của mình.
2.1. Bản vẽ thiết kế nhà ống 5x12m 2 tầng
Bản thiết kế nhà ống diện tích 5x12 2 tầng đơn giản phù hợp với gia đình ít người, các đôi vợ chồng mới cưới. Không gian tầng 1 được bố trí phòng khách, phòng bếp kiêm phòng ăn, không gian đệm và giếng trời tạo cảm giác thông thoáng, ngay cửa ra vào có khu vực phụ để đậu xe gắn máy. Tầng 2 là khu vực nghỉ ngơi với 2 phòng ngủ và 2 phòng vệ sinh riêng biệt.

2.2. Bản vẽ thiết kế nhà phố 5x12m 3 phòng ngủ
Với diện tích xây dựng 120m2 cho 2 tầng, các không gian chức năng trong thiết kế nhà 5x12m không quá rộng rãi. Tuy nhiên bằng cách bố trí khoa học, 3 phòng ngủ, 1 phòng khách, 1 phòng bếp nối liền khu vực ăn uống vẫn đảm bảo đáp ứng đầy đủ nhu cầu sử dụng và ở được từ 3 đến 6 người.

2.3. Bản vẽ thiết kế nhà 5x12m 2 tầng 1 tum
Thiết kế nhà phố 5x12m thông thoáng hơn nhờ tầng tum với hai sân thượng trước và sau. Tầng 1 và tầng 2 gồm 1 phòng ngủ cho người lớn, 2 phòng ngủ cho bé, phòng khách và phòng bếp. Ngoài ra kiến trúc sư còn bố trí thêm không gian chứa đồ và một khoảng không gian đệm ở cầu thang tầng 2.

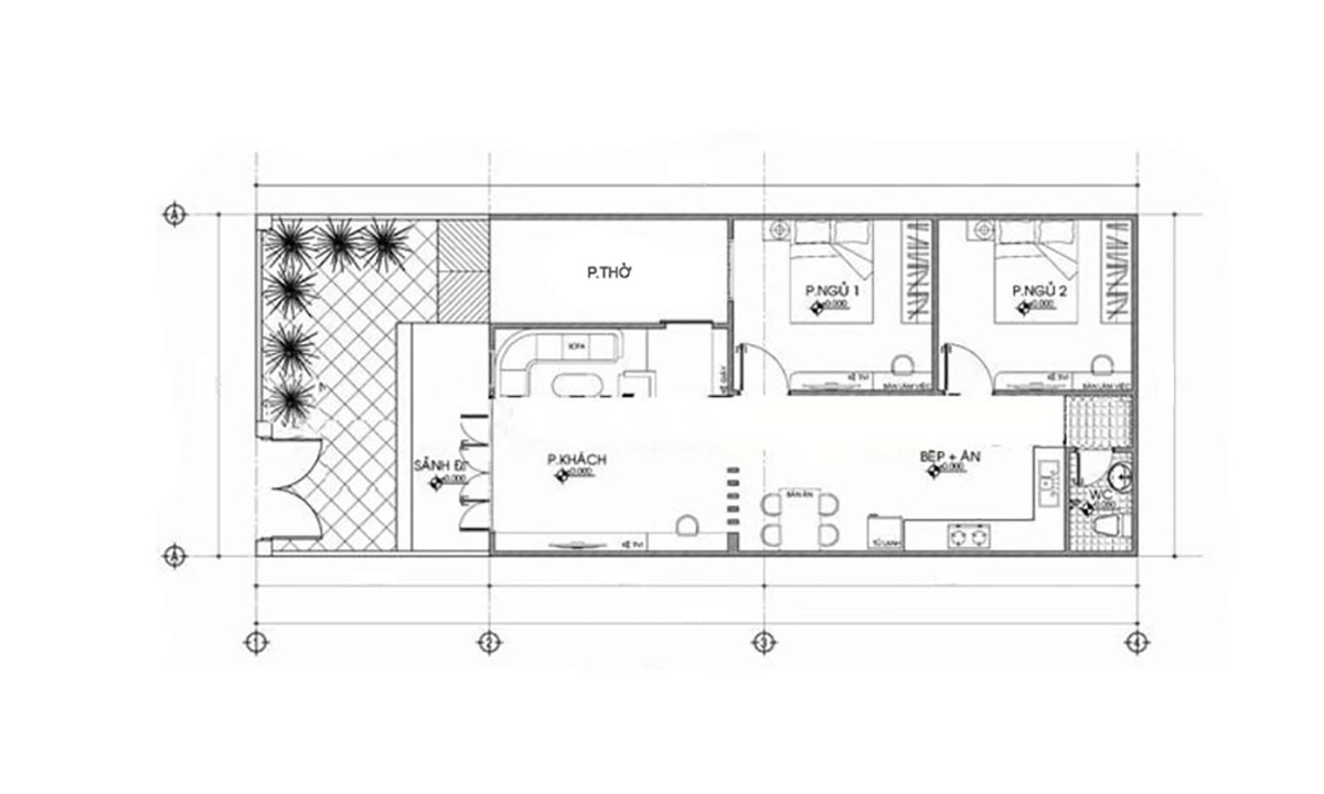
2.4. Bản vẽ thiết kế nhà 1 trệt 1 lầu 5x12m 2 phòng ngủ
Mẫu nhà 5x12m 2 phòng ngủ tạo cảm giác cực kỳ rộng thoáng. Cả 2 tầng chỉ có các khu vực cơ bản như phòng khách, phòng bếp cũng là phòng ăn, 2 phòng ngủ, 2 WC. Gia chủ còn trồng một ít cây xanh trước sau nhà, ở ban công tầng 2 giúp không gian thêm mát mẻ.

2.5. Bản vẽ thiết kế nhà ống 5x12m 3 tầng
Thiết kế nhà ống 5x12m 3 tầng rất tiện nghi và đảm bảo tính thẩm mỹ cao. Đặc biệt, khu vực tiểu cảnh vừa giúp ngôi nhà thêm phần thu hút vừa là nơi để thư giãn. Không giản sử dụng lớn phù hợp cho gia đình đông người/ nhiều thế hệ.

2.6. Bản vẽ thiết kế nhà 5x12m 3 phòng ngủ có gác lửng
Kiến trúc nhà 5x12m 1 tầng tương đối nhỏ hẹp. Do đó một số gia chủ đã yêu cầu thêm phần gác lửng. 2 phòng ngủ chính và phòng thờ nằm ngay tầng trệt. Còn tầng lửng sẽ được sử dụng như một phòng ngủ.

2.7. Bản vẽ thiết kế nhà cấp 4 5x12m hiện đại
Thiết kế nhà 5x12m cấp 4 hiện đại khá giống phong cách studio, đề cao tính tiện dụng. Nhà có một khoảng sân trước để đỗ xe và trang trí tiểu cảnh bắt mắt. Nối tiếp cửa ra vào là không gian phòng khách tích hợp bếp để tiết kiệm diện tích. Giữa hai phòng ngủ là một khoảng sân phơi kiêm khu vườn nhỏ tạo sự thoáng mát cho cả ngôi nhà.

2.8. Bản vẽ thiết kế nhà cấp 4 5x12m có gara
Mẫu nhà cấp 4 có gara 5x12m phù hợp với các hộ gia đình sinh sống tại đô thị đông đúc. Tuy diện tích xây dựng không quá lớn nhưng vẫn đảm bảo các thành viên có thể sinh hoạt thoải mái và riêng tư với 3 phòng ngủ, phòng khách, bếp và kho.

2.9. Mẫu thiết kế nhà 5x12m 2 tầng ở nông thôn
Mẫu nhà 5x12m 2 tầng ở nông thôn khá thoáng, gia chủ không chú trọng trang trí rườm rà; chỉ sử dụng đồ nội thất thiết yếu. Tầng 1 gồm phòng khách, nhà bếp và khu vực ăn uống, 1 WC. Tầng 2 gồm 2 phòng ngủ 2 WC, đảm bảo không gian nghỉ ngơi rộng rãi.

Xem thêm: 22+ Mẫu nhà lệch tầng 5x20m không bao giờ lỗi thời
3. Tư vấn xây nhà 5x12m tiết kiệm chi phí
Thiết kế nhà 5x12 hai tầng vừa phải đảm bảo sự tiện nghi, vừa phải đáp ứng các quy luật về phong thủy. Sau đây Công ty Thiết Kế Nhà 365 sẽ tư vấn kinh nghiệm xây nhà 5x12m hữu ích nhất dành cho bạn:
3.1. Tường nhà
Chân tường cần được xây dựng vững chãi, điều này tượng trưng cho sự vững chắc của móng nhà. Tường bao quanh nhà nên có chiều cao vừa phải để mang lại sự kín đáo, riêng tư nhưng không được quá bí bách.
3.2. Cầu thang trong nhà
Cầu thang phải nằm trong cung tốt, bậc cầu thang cuối cùng phải quay về hướng tốt. Tổng số các bậc cần được tính toán sao cho chia hết cho 4 dư 2 rơi vào cung lão hoặc dư 1 rơi vào cung sinh. Bậc cầu thang lên/xuống cuối cùng không được đối diện với phòng bếp, bàn thờ hay nhà vệ sinh.

3.3. Số phòng trong nhà
Bao gồm toàn bộ các phòng chức năng như phòng khách, phòng ngủ, phòng bếp, phòng thờ, nhà vệ sinh… Tổng số phòng nên là 1, 5, 6, 7, 9 là cát, tránh các con số hung như 3, 4 hay 8. Ngoài ra phòng chính nên được thiết kế rộng và cao hơn so với các phòng bên.

3.4. Cửa, cổng
Không nên bố trí toilet đối diện phòng bếp, điều này sẽ làm ảnh hưởng không tốt đến vận khí của gia đình. Cửa và cổng chính nên có kích thước vừa phải, tránh xây quá lớn có thể gây hao hụt tài lộc hoặc quá nhỏ gây bất tiện khi di chuyển.

3.5. Các phòng trong nhà
- Phòng khách: Cần đảm bảo sự xuyên suốt, không bị che chắn hay cản trở. Nếu nhà có 2 phòng khách thì nên xây phòng lớn phía trước, phòng nhỏ phía sau.
- Phòng ngủ: Tránh bố trí bàn thờ trong phòng ngủ. Khi đặt giường ngủ, không nên đặt phía trên bàn thờ và phòng bếp hay phía dưới gầm nhà, xà nhà, các đồ vật có hình dạng nhọn.
- Phòng bếp: Không nên bố trí bếp giữa hai vòi nước/bồn rửa hoặc đối diện vòi nước. Vị trí thiết kế phòng bếp lý tưởng nhất là khu vực sau cùng của ngôi nhà.
- Phòng thờ: Tránh bố trí bàn thờ ở bên trên hoặc dưới WC, dưới bể nước hoặc giường ngủ. Ngoài ra việc thiết kế phòng thờ dựa lưng vào khoảng trống hoặc cửa sổ cũng không hài hòa về phong thủy.

3.6. Thiết kế mái
Có khá nhiều loại hình mái nhà để gia chủ lựa chọn khi thiết kế nhà 5x12 như mái thái với khả năng che mưa che nắng tốt, cách âm và cách nhiệt hiệu quả. Mái bằng có thể dùng làm sân thượng trồng cây cảnh, sân phơi,… Mái tôn có chi phí rẻ nhưng hấp thụ nhiệt lượng lớn, nhanh xuống cấp, oxy hóa và dễ bị bay tốc khi có mưa bão.
Xem thêm: Mẫu thiết kế nhà ống 1 tầng 5x20m đẹp, đáng sở hữu
4. Chi phí thiết kế nhà 5x12m là bao nhiêu?
Chi phí thiết kế các mẫu nhà 5x12m được quyết định bởi nhiều yếu tố như phong cách thiết kế, đơn giá thi công, thời điểm khởi công, giá vật tư,… Sau đây là bảng giá thiết kế, thi công nhà ống 5x12m trên thị trường (đã bao gồm VAT):
| Nội dung | Kiến trúc hiện đại | Kiến trúc tân cổ điển | Kiến trúc cổ điển |
| Chi phí thiết kế | 100.000vnđ/m2 | 120.000vnđ/m2 | 150.000vnđ/m2 |
| Chi phí thi công | 5-6 triệu đồng/m2 | 6-8 triệu đồng/m2 | 8-10 triệu đồng/m2 |
Lưu ý: Bảng giá xây nhà 5x12m trên đây chỉ mang tính tham khảo. Quý khách vui lòng liên hệ trực tiếp hotline 0906840567 – Mr. Thắng của Công ty Thiết Kế Nhà 365 để được báo giá và tư vấn chi tiết, chính xác nhất.
Xem thêm: Mẫu nhà 4 tầng 4x16m đẹp, tiện nghi, chi phí cực nhỏ
5. Công ty Thiết Kế Nhà 365 – Đơn vị thiết kế nhà 5x12m uy tín và chuyên nghiệp

Công ty Thiết Kế Nhà 365 là cái tên được nhiều khách hàng tin tưởng lựa chọn với hơn 10 năm kinh nghiệm trong ngành xây dựng. Công ty quy tụ đội ngũ kỹ sư, đội thợ với trình độ chuyên môn cao, có thâm niên và nhiệt huyết với nghề. Mỗi công trình được chúng tôi kiến tạo nên đều là sự tổng hòa của tinh hoa kiến trúc, gần gũi với thiên nhiên – thổ nhưỡng, hài hòa về mặt phong thủy. Hiện Công ty Thiết Kế Nhà 365 đang áp dụng nhiều chính sách hấp dẫn như:
- Tư vấn, khảo sát và thiết kế nhà miễn phí 100%
- Miễn hoàn toàn chi phí vận chuyển nội thất nếu khách hàng sử dụng dịch vụ thiết kế thi công nội thất trọn gói
- Bảo hành lâu dài nên khách hàng hoàn toàn có thể yên tâm khi sử dụng dịch vụ tại chúng tôi
- Xây nhà trọn gói hỗ trợ 100% các thủ tục pháp lý, quý khách không cần phải tốn thời gian để lo liệu giấy tờ khi tiến hành xây nhà
Mong rằng qua bài viết này bạn đã có thêm cho mình ý tưởng bản vẽ thiết kế nhà 5x12m mới lạ và ấn tượng. Hãy gọi đến hotline của Công ty Thiết Kế Nhà 365 để được nhân viên của chúng tôi tư vấn và giải đáp thắc mắc tận tình nhất.
Liên hệ ngay với Công Ty Thiết Kế Nhà 365 để nhận báo giá thiết kế nhà phố trọn gói và được tư vấn miễn phí từ Kiến Trúc Sư!











