Search
Close this search box.

45+ Mẫu thiết kế nhà ngang 6m dài 15m đẹp, độc đáo nhất 2024

Nếu bạn đang có dự định xây dựng một ngôi nhà ấm cúng nhưng vẫn đảm bảo yếu tố tiện nghi và hiện đại thì mẫu thiết kế nhà ngang 6m dài 15m là gợi ý lý tưởng. Mẫu nhà đẹp này có đa dạng phong cách kiến trúc phù hợp với sở thích của nhiều người hứa hẹn sẽ mang tới không gian sống trọn vẹn cho gia đình bạn. Xem ngay các mẫu thiết kế nhà ngang 6m dài 15m độc đáo, ấn tượng trong bài viết sau!

Liên hệ ngay với Công Ty Thiết Kế Nhà 365 để nhận báo giá thi công nhà phố trọn gói và được tư vấn miễn phí từ Kiến Trúc Sư!

call

Phối cảnh mặt tiền mẫu thiết kế nhà ngang 6m dài 15m hiện đại

Mẫu thiết kế nhà mặt tiền 6m dài 15m theo phong cách đơn giản, phối hợp cùng gam màu trắng sáng thể hiện sự tinh tế, giúp căn nhà toát lên vẻ đẹp tinh khôi và nhẹ nhàng.

Thiết kế nhà ngang 6m dài 15m 2 tầng
Mặt tiền thiết kế nhà ngang 6m dài 15m 2 tầng

Hệ thống cửa kính chắc chắn, sang trọng cùng tầng lầu trồng cây xanh giúp điều hòa không khí mang đến không gian sống thoải mái, trong lành vừa tạo ấn tượng thu hút người nhìn. Thiết kế mái bằng hiện đại và quen thuộc cùng góc nhỏ ban công đón ánh sáng và gió trời. Đây là một mẫu nhà phố với thiết kế giản dị nhưng được nhiều người lựa chọn bởi sự kinh tế và nhẹ nhàng mà nó mang lại.

Bản vẽ mặt bằng mẫu thiết kế nhà ngang 6m dài 15m đẹp

Sau đây là bản vẽ công năng thiết kế nhà ngang 6m dài 15m để bạn tham khảo:

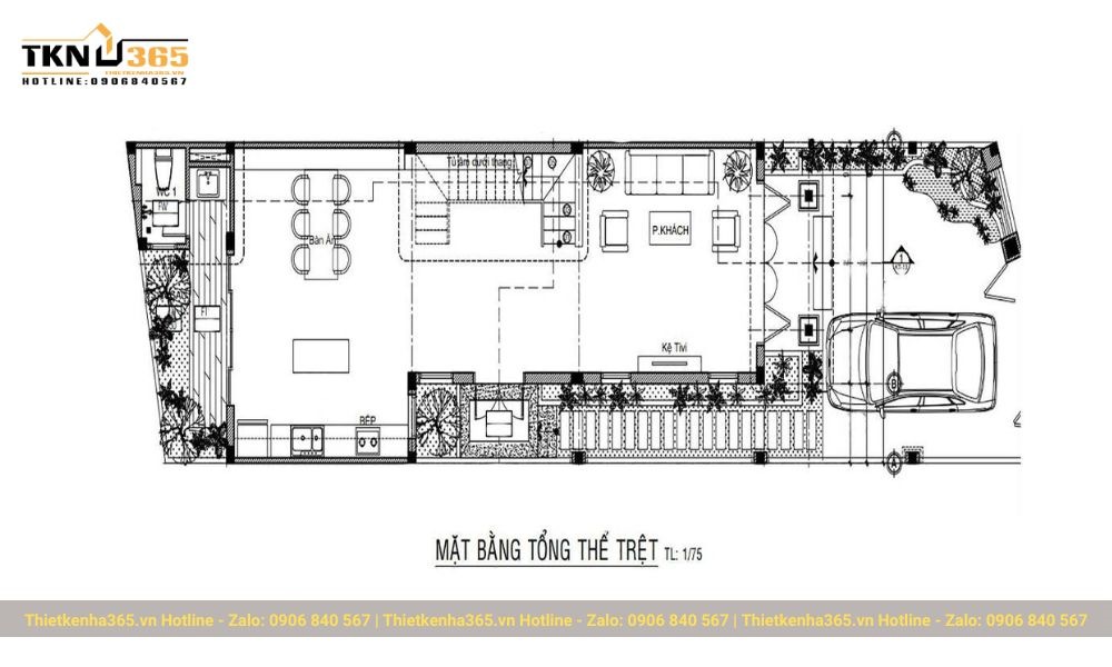
Mặt bằng công năng tầng trệt

Tầng trệt được thiết kế bao gồm: Gara, phòng khách, phòng bếp, phòng ăn, 1 nhà vệ sinh và khoảng sân sau. Phía sau là khu vực nhà vệ sinh, bên cạnh đó là khoảng sân sau tận dụng làm sân phơi đồ vô cùng hợp lý.

Thiết kế nhà ngang 6m dài 15m
Mặt bằng công năng tầng trệt của thiết kế nhà ngang 6m dài 15m

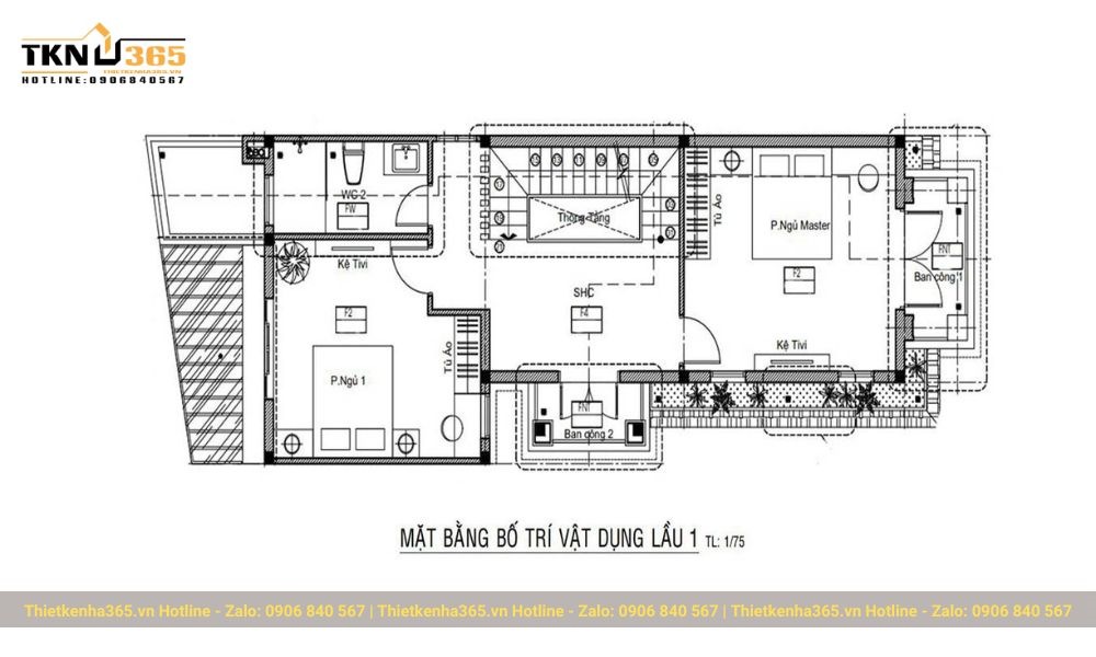
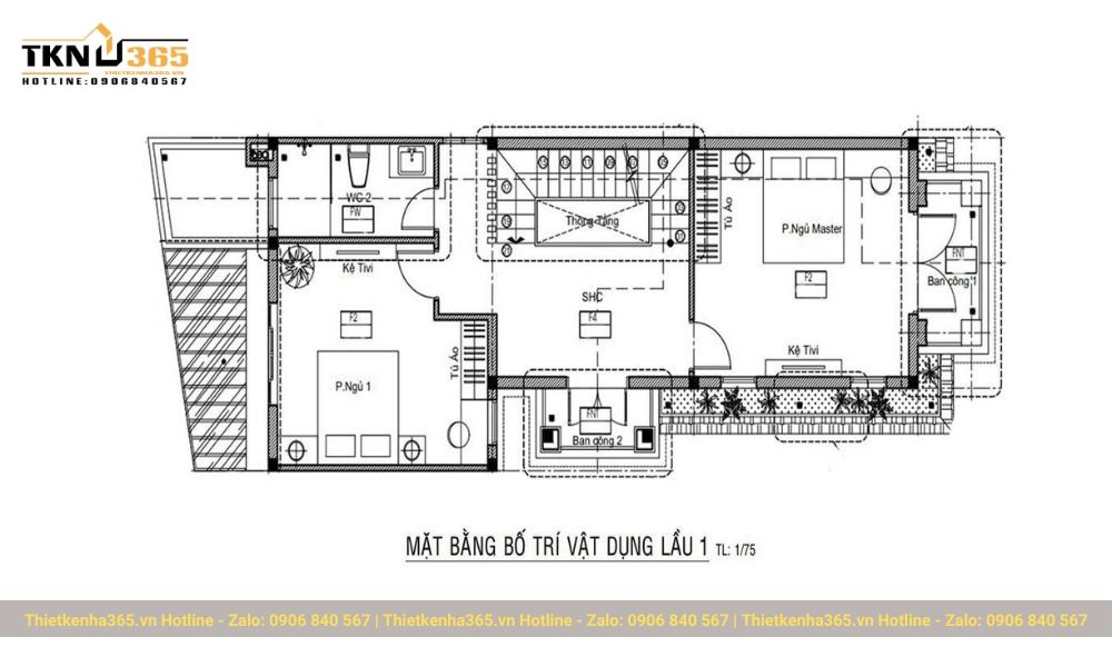
Mặt bằng công năng lầu 1

Lầu 1 thiết kế nhà ngang 6m dài 15m bao gồm: 2 phòng ngủ, 1 phòng sinh hoạt chung, 1 phòng vệ sinh, và 1 sân thượng. Đặc biệt, 2 phòng ngủ có không gian rộng có thể bố trí thêm nội thất như bàn làm việc hay tủ quần áo,…nhằm tận dụng triệt để không gian. Với điểm nhấn là khoảng sân thượng tuy có diện tích nhỏ nhưng có khả năng đòn ánh sáng và không khí tự nhiên vào ngôi nhà. Phòng sinh hoạt chung được đặt giữa nhà nhằm mang lại sự thuận tiện cho tất cả các thành viên và giúp gắn kết tình cảm gia đình tốt hơn.

Mặt bằng tầng 1 nhà 6x15m
Mặt bằng bố trí tầng 1 nhà 6x15m

thiet ke nha ngang 6m dai 15m 3 6 1

Ngất ngây trước nội thất mẫu thiết kế nhà ngang 6m dài 15m đẹp

Chắc chắn bạn sẽ ưng ý ngay lần đầu tiên khi nhìn thấy những mẫu thiết kế nội thất cho nhà ngang 6m dài 15m sau đây.

Nội thất phòng khách 

Phòng khách được bố trí và sắp xếp nội thất khoa học, gọn gàng. Sử dụng chủ đạo gam màu trắng giúp tôn lên sự nổi bật của những vật dụng khác như ghế sofa vàng hoặc nâu đậm. Khi kết hợp các màu sắc hài hòa và ăn ý sẽ mang lại một không gian năng động trẻ trung đồng thời toát lên tính cách và gu thẩm mỹ của chủ nhân. Có thể kết hợp một số điểm nhấn khác cho căn phòng như: Trồng cây xanh để điều hòa không khí, gắn tranh treo tường, sử dụng thảm trải sàn họa tiết,…

Thiết kế nhà ngang 6m dài 15m
Nội thất phòng khách của nhà ngang 6m dài 15m đơn giản, tinh tế với các vật dụng bằng gỗ sang trọng

Nội thất phòng ăn 

Phòng ăn tiện nghi nên sử dụng các bộ bàn ghế được bọc đệm với khung gỗ mộc mạc vừa sang trọng, tinh tế vừa êm ái thoải mái khi sử dụng. Phần sơn tường màu tối điểm thêm các bức tranh với họa tiết độc đáo màu trắng tạo không gian phòng bếp thêm ấm cúng.

Thiết kế nhà ngang 6m dài 15m
Nội thất phòng ăn nhà ngang 6m dài 15m với gam màu bé nhẹ nhàng, hiện đại

Nội thất phòng ngủ 

Phòng ngủ nên ưu tiên sử dụng các chất liệu nội thất được làm từ gỗ tuy đơn giản, nhẹ nhàng nhưng sang trọng và ấm áp. Phòng ngủ thiết kế với không gian khép kín trang trí những chậu cây xanh giúp điều hòa không khí. Ngoài ra bạn cũng có thể kết hợp những bức tranh nghệ thuật để tạo cho không gian phòng ngủ tinh tế, thư giãn hơn.

Lưu ý khi thiết kế phòng ngủ cho trẻ sẽ trang trí màu sắc theo sở thích, giới tính của trẻ. Trần nhà có thể lắp đặt đèn âm trần với màu sắc nhẹ nhàng. Các đồ nội thất được bố trí khoa học, gọn gàng để phòng ngủ rộng rãi, sạch sẽ và mang đến cho trẻ không gian học tập vui chơi thoải mái nhất.

Thiết kế nhà ngang 6m dài 15m
Nội thất phòng ngủ nhà ngang 6m dài 15m thiết kế tối giản với hệ tủ lớn dùng để chứa đồ

Nội thất phòng thờ 

Phòng thờ có nội thất làm từ chất liệu gỗ sang trọng thể hiện đẳng cấp của gia chủ. Nên thiết kế hai chậu cây hai bên vừa đẹp mắt vừa mang lại không khí trang nghiêm cho khu vực phòng thờ. Vị trí nền nhà được lót gỗ tinh tế và dễ dàng vệ sinh.

Thiết kế nhà ngang 6m dài 15m
Nội thất phòng thờ thiết kế nhà ngang 6m dài 15m bằng gỗ màu trầm tăng vẻ trang trọng

Nội thất phòng tắm

Nội thất phòng tắm khi thiết kế nhà ngang 6m dài 15m phải sang trọng và đầy đủ tiện nghi. Thiết bị tự động hiện đại mang lại cảm giác thoải mái cho người dùng. Khu vực tắm và khu vực vệ sinh được ngăn cách bởi tấm kính để hạn chế tình trạng bắn nước gây trơn trượt.

Thiết kế nhà ngang 6m dài 15m
Nội thất phòng tắm nhà ngang 6m dài 15m màu sắc nhẹ nhàng, tinh tế

Ngắm nhìn 45+ mẫu thiết kế nhà ngang 6m dài 15m ấn tượng

Dưới đây là những mẫu thiết kế nhà ngang 6m dài 15m ấn tượng và thịnh hành nhất hiện nay:

Mẫu nhà ngang 6m dài 15m
Mẫu nhà ngang 6m dài 15m được nhiều người ưa chuộng
Mẫu nhà 3 tầng 6x15m tân cổ điển
Mẫu nhà 3 tầng 6x15m phong cách tân cổ điển
Nhà 6x15m 3 tầng
Nhà 6x15m 3 tầng với thiết kế độc đáo, thu hút mọi ánh nhìn
Mẫu nhà ngang 6m dài 15m
Mẫu nhà ngang 6m dài 15m có không gian xanh thoáng đãng
Mẫu nhà 6x15m 2 tầng
Các hình khối độc đáo, đẹp mắt được thiết kế chỉnh chu trong mẫu nhà 6x15m 2 tầng
Nhà 3 tầng 6x15m có gara ô tô
Nhà 3 tầng 6x15m có gara ô tô và khoảng sân bên cạnh nhà rộng rãi
Ngôi nhà 6x15m phong cách hiện đại
Ngôi nhà 6x15m phong cách hiện đại không chỉ là nơi ở lý tưởng mà còn là biểu tượng của sự tinh tế
Mẫu nhà 6x15m phong cách hiện đại
Mẫu nhà 6x15m phong cách hiện đại kết hợp với nét thiết kế độc đáo, thu hút mọi ánh nhìn.
Mẫu nhà ngang 6m dài 15m
Mẫu nhà ngang 6m dài 15m nằm ở trục đường lớn với mặt tiền bằng gỗ độc đáo, ấn tượng
Thiết kế mẫu nhà ngang 6m dài 15m
Phối cảnh thiết kế mẫu nhà ngang 6m dài 15m cấu trúc bậc thang ấn tượng
Mẫu thiết kế nhà ngang 6m dài 15m
Mẫu thiết kế nhà ngang 6m dài 15m đơn giản, hiện đại

Đơn vị thiết kế nhà ngang 6m dài 15m uy tín – Công ty Thiết Kế Nhà 365

Công ty Thiết Kế Nhà 365 được đánh giá là một trong những đơn vị chuyên thi công các công trình xây dựng uy tín hàng đầu được nhiều người tin tưởng lựa chọn hiện nay. Trong đó nổi bật phải kể đến các dự án nhà ngang 6m dài 15m hiện đại, tinh tế.

Thế mạnh của Công ty Thiết Kế Nhà 365 chính là sở hữu nguồn nhân lực chất lượng cao. Đội ngũ kiến trúc sư, chuyên viên kỹ thuật, công nhân thi công được tuyển chọn, đào tạo bài bản, tâm huyết với nghề và có trình độ chuyên môn cao. Hơn nữa khi hợp tác với Công ty Thiết Kế Nhà 365 khách hàng hoàn toàn có thể yên tâm về tiến độ thi công công trình.

thiet ke nha ngang 6m dai 15m 3 3
Đội ngũ nhân viên TKN 365 luôn sẵn lòng phục vụ, đáp ứng mọi yêu cầu xây dựng của khách hàng

Mọi hoạt động thi công đều tuân theo tiến trình đã đề ra trước đó. Luôn có chuyên viên giám sát để đảm bảo tốc độ, chất lượng cũng như kịp thời giải quyết những vấn đề phát sinh.

Khách hàng được tư vấn giá cả và báo giá cơ bản tùy theo yêu cầu. Cam kết không xảy ra tình trạng ép giá gây bất lợi cho khách hàng. Đảm bảo giá thành hợp lý và cạnh tranh nhất trên thị trường. Hơn nữa khách hàng lựa chọn sử dụng dịch vụ trọn gói thiết kế thi công nhà tại Công ty Thiết Kế Nhà 365 sẽ được miễn phí toàn bộ chi phí thiết kế và vận chuyển nội thất giúp khách hàng tiết kiệm được một khoản chi phí khi xây nhà.

Với những thông tin và các mẫu thiết kế nhà ngang 6m dài 15m mà chúng tôi chia sẻ qua bài viết trên chắc chắn sẽ là một trong những gợi ý xây nhà tuyệt vời dành cho bạn. Nếu bạn đang có nhu cầu thiết kế hoặc xây dựng nhà hãy liên hệ đến Công ty Thiết Kế Nhà 365 để được hỗ trợ tư vấn và báo giá chuẩn xác nhất.

Công Ty TNHH Thiết Kế Nhà 365

  • Địa chỉ office: 294 Lê Trọng Tấn, Phường Tây Thạnh, Quận Tân Phú, Thành Phố Hồ Chí Minh
  • Email: thietkenha365@gmail.com
  • Số điện thoại: 0906840567 – Mr. Thắng
  • Website: https://demo.thietkenha365.vn/

Hoàng Đức Thắng

Hoàng Đức Thắng là kiến trúc sư đồng thời là CEO của Công ty Thiết Kế Nhà 365, tôi luôn cập nhật những xu hướng mới nhất trong lĩnh vực xây dựng, kiến trúc và nội thất để mang đến cho bạn đọc những thông tin bổ ích nhất. Tôi luôn sẵn sàng chia sẻ những kinh nghiệm của mình để giúp bạn đọc có thể xây dựng được những ngôi nhà không chỉ đẹp mà còn hoàn hảo về mọi mặt.
Hoàng Đức Thắng – CEO của Công ty TNHH Thiết Kế Nhà 365

HẸN GẶP SAU 1H

Trực tiếp với chuyên gia

Gọi: 0906.840.567

(Mr. Thắng)

NHẬN TƯ VẤN MIỄN PHÍ

Trao đổi trực tiếp với KTS 10 năm kinh nghiệm.

Nhận thiết kế và thi công nhà ở khu vực miền Nam





    Gợi ý viết yêu cầu: bạn cần sửa nhà hay xây mới, diện tích bao nhiêu, ngân sách dự kiến,...

    ĐỂ THÔNG TIN NHẬN TƯ VẤN NGAY





      Gợi ý viết yêu cầu: bạn cần sửa nhà hay xây mới, diện tích bao nhiêu, ngân sách dự kiến,...