Search
Close this search box.

99+ Mẫu thiết kế nhà ngang 8m cấp 4 dẫn đầu xu hướng 2024

Bạn đang có ý định thiết kế nhà ngang 8m và muốn tìm hiểu các ý tưởng nhà cấp 4 ngang 8m hiện đại, độc đáo, tiện nghi thì không thể bỏ lỡ hàng loạt thông tin được cung cấp trong bài viết sau!

Liên hệ ngay với Công Ty Thiết Kế Nhà 365 để nhận báo giá thi công nhà phố trọn gói và được tư vấn miễn phí từ Kiến Trúc Sư!

call

Mục lục hiện

Điểm nổi bật khi thiết kế nhà ngang 8m

Thiết kế nhà ngang 8m có ưu điểm mặt tiền rộng 8m nên có thể linh hoạt trong kiến trúc và phong cách thiết kế. Tùy theo chiều dài của lô đất xây dựng để lựa chọn mẫu nhà phù hợp.

Hiện nay mẫu thiết kế mẫu nhà ngang 8m đa dạng cho khách hàng lựa chọn, ví dụ với một số mẫu sau:

  • Nhà cấp 4 thiết kế mái Thái
  • Nhà cấp 4 mái bằng
  • Nhà cấp 4 mái lệch
  • Nhà cấp 4 với kiểu dáng chữ I
  • Nhà cấp 4 với kiểu dáng chữ L
  • Nhà cấp 4 với thiết kế sân vườn
  • Nhà cấp 4 có Gara oto
  • Nhà cấp 4 có gác lửng

Chính sự đa dạng trong kiến trúc thiết kế là điểm cộng lớn khiến nhà cấp 4 mặt tiền ngang 8m luôn là sự lựa chọn hàng đầu của nhiều khách hàng hiện nay. Hơn thế nữa mặt tiền 8m mang đến cho ngôi nhà cấp 4 không gian thoáng đãng, rộng rãi và có thể tận dụng tối đa nguồn ánh sáng tự nhiên cho căn nhà thêm rộng rãi, thoáng mát.

nhà cấp 4 ngang 8m đẹp
Điểm nổi bật của mẫu nhà cấp 4 ngang 8m đẹp

Bên cạnh đó, bạn hoàn toàn có thể kết hợp thiết kế nhà cấp 4 mặt tiền 8m có sân vườn phía trước. Sự kết hợp này mang đến một không gian sống hài hòa với thiên nhiên, tạo nên sự thư thái và thoải mái cho gia chủ.

Một điểm đặc biệt không thể không nhắc tới chính là các mẫu nhà ngang cấp 4 mặt tiền 8m có cấu trúc đơn giản, chú trọng tới công năng nên kinh phí thiết kế xây dựng rất phải chăng, phù hợp với điều kiện của nhiều gia đình khác nhau.

Xu hướng thiết kế nhà cấp 4 ngang 8m

Thiết kế nhà cấp 4 ngang 8m mái bằng

Vật liệu chính thường gặp nhất ở thiết kế nhà cấp 4 ngang 8m mái bằng là bê tông cốt thép. Vì vậy mà công trình này rất chắc chắn, sừng sững trước cái yếu tố thời tiết cũng như bền đẹp cùng thời gian. Chưa kể mẫu kiến trúc mái bằng còn đảm bảo tính thẩm mỹ, công năng, cho phép lắp đặt các thiết bị có kích thước lớn, trọng lượng năng như hệ thống năng lượng mặt trời, chi tiết chống nắng, chống dột,…

nhà cấp 4 mái bằng 8m
Mẫu nhà cấp 4 ngang 8m thiết kế mái bằng

Nhà cấp 4 mái thái mặt tiền 8m

Nhà cấp 4 mặt tiền 8m mái thái gây ấn tượng bởi phần mái ngói dốc chồng lên nhau, kiến trúc thấp tầng (thường không quá 3 tầng; sự hài hòa trong phối hợp màu sắc cũng như độ thoáng có được nhờ khu vực ban công. Ưu điểm lớn nhất của mẫu nhà này là chống ẩm, chống nóng hiệu quả và hợp thẩm mỹ của người dân Việt.

nhà cấp 4 mái thái cổ điển
Thiết kế nhà cấp 4 mái thái mặt tiền 8m

Thiết kế nhà cấp 4 ngang 8m mái nhật

Thiết kế nhà ngang 8m cấp 4 mái nhật ngày càng phổ biến. Mái nhật tuy không dốc như mái thái nhưng vẫn đảm bảo thoát nước nhanh, không gây ứ đọng vào mùa mưa. Kiến trúc này được ưa chuộng bởi sự đa dạng mẫu mã như mái ngói, mái sóng nhỏ, mái giả đá, mái giật cấp,… hiện đại và sang trọng.

Thiết kế nhà cấp 4 ngang 8m mái nhật
Thiết kế nhà cấp 4 ngang 8m mái nhật

Nhà ngang 8m mái lửng phá cách

Thiết kế nhà cấp 4 8m mặt tiền mái lửng được rất nhiều gia chủ lựa chọn khi có thể giúp tối đa hóa diện tích sử dụng. Kiến trúc sư sẽ khéo léo biến tấu tầng lửng cho phù hợp với nhu cầu của từng gia chủ. Để đảm bảo thoáng khí, đầy đủ ánh sáng, cần lưu ý:

  • Mái phải xây cao hơn so với độ cao thông thường
  • Bố trí nhiều cửa sổ/ sử dụng cửa sổ kiểu Pháp
  • Hình dáng cầu thang đơn giản, vật liệu gọn nhẹ tránh chiếm không gian/ cản sáng

Nhà ngang 8m mái lửng phá cách
Nhà ngang 8m mái lửng phá cách

Mẫu nhà cấp 4 ngang 8m có sân vườn

Thiết kế nhà ngang 8m kết hợp thêm sân vườn hoặc gara để ô tô làm không gian sống thêm sinh động và tiện nghi hơn. Công trình này thích hợp nhất khi xây dựng trên diện tích đất lớn hoặc ở vùng nông thôn. Mẫu nhà cấp 4 ngang 8m sân vườn thường theo lối kiến trúc hiện đại, châu Âu, cổ điển hoặc tân cổ điển. Cần lưu ý lấy nhà làm trung tâm, sân vườn hay các chi tiết khác chỉ là phụ trợ; sân vườn đơn giản với các loại cây nhỏ đan xen thảm cỏ là lựa chọn tốt nhất.

nhà cấp 4 ngang 8m có sân vườn
Mẫu nhà cấp 4 ngang 8m có sân vườn

Mẫu thiết kế nhà ngang 8m hiện đại thu hút nhất

Dưới đây là tổng hợp các mẫu nhà cấp 4 mặt tiền 8m theo xu hướng mới nhất được nhiều gia đình Việt lựa chọn:

Mẫu nhà cấp 4 ngang 8m đẹp với mái bằng

Mẫu nhà cấp 4 ngang 8m với mái bằng với phong cách trẻ trung, hiện đại được nhiều khách hàng lựa chọn và đánh giá cao về tính thẩm mỹ cũng như độ bền. Kiến trúc nhà mái bằng được làm từ nguyên liệu bê tông cốt thép nên có khả năng chịu lực vượt trội, phù hợp với điều kiện thời tiết khắc nghiệt tại Việt Nam.

nhà cấp 4 mái bằng
Mẫu nhà ngang 8m cấp 4 với mái bằng hiện đại, kiên cố

Mẫu nhà cấp 4 ngang 8m với mái Thái 

Mẫu nhà chiều ngang 8m cấp 4 mái Thái có thể dễ dàng bắt gặp tại các khu vực vùng nông thôn hiện nay. Ưu điểm của mẫu thiết kế này chính là kết cấu sang trọng, hơn nữa mái Thái có khả năng ứng biến tốt với điều kiện khí hậu khắc nghiệt. Nhà mái Thái thiết kế dốc có khả năng thoát nước mưa hiệu quả, bên cạnh đó còn có thể chống nóng và chống ẩm mốc tốt.

nhà cấp 4 mái thái ngang 8m
Nhà cấp 4 ngang 8m với mái Thái cùng hệ ngói màu xanh cho ngôi nhà thêm mát mẻ, tản nhiệt tốt

Mẫu nhà phố ngang 8m cấp 4 có tầng lửng

Một trong những mẫu nhà đẹp nhà được ưa chuộng nhất hiện nay chính là mẫu nhà cấp 4 ngang 8m có tầng lửng. Với kiểu thiết kế này bạn có thể tiết kiệm tối đa diện tích sử dụng. Tùy theo nhu cầu và mục đích sử dụng của gia chủ không gian gác lửng được thiết kế khác nhau, có thể làm ban công một phòng chức năng bất kỳ.

Tuy nhiên khi thiết kế nhà theo kiến trúc này bạn cần lưu ý một số yếu tố sau:

  • Phần mái phải được xây cao hơn thông thường.
  • Thiết kế nhiều cửa sổ và sử dụng hệ thống cửa kính giúp lưu thông không khí tốt hơn cũng như tận dụng tối đa ánh sáng bên ngoài.
  • Cầu thang kết nối với tầng lửng nên được làm từ nguyên liệu nhẹ nhàng để không chiếm nhiều không gian và tạo cảm giác thoải mái.

nhà ngang 8m hiện đại
Mẫu nhà phố ngang 8m cấp 4 có gác lửng phù hợp gia đình đông người

Mẫu nhà cấp 4 ngang 8m mái Nhật

Với mẫu nhà 1 tầng đẹp này yếu tố thông thoáng luôn được đặt lên hàng đầu. Kiến trúc sư thiết kế một cửa chính và một cửa phụ kết hợp với các ô cửa sổ rộng rãi cho ngôi nhà thêm thông thoáng. Nhà thiết kế mái Nhật mang đến một tổng thể hài hòa cân đối không kém phần sang trọng và bề thế.

Thiết kế nhà ngang 8m
Nhà đẹp ngang 8m cấp 4 mái Nhật với khuôn viên rộng rãi phù hợp cho những gia đình ở nông thôn

Mẫu nhà cấp 4 ngang 8m sân vườn

Mẫu thiết kế nhà ngang 8m cấp 4 kết hợp với khoảng sân vườn rộng rãi phía trước để trồng cây xanh vừa có chức năng tạo điểm nhấn cho ngôi nhà vừa mang lại cảm giác thư giãn khi được hòa mình với thiên nhiên. Ngoài ra diện tích sân vườn cũng được sử dụng làm nơi để xe, xây dựng tiểu cảnh hay đặt bàn trà đều xinh xắn và tiện lợi.

Thiết kế nhà ngang 8m
Nhà cấp 4 ngang 8m với sân vườn rộng rãi, thông thoáng

Mẫu nhà cấp 4 diện tích chữ L

Mẫu nhà này tuy có thiết kế đơn giản nhưng có sức hút đặc biệt bởi nhà chữ L mang lại cảm giác thông thoáng cho không gian phòng ốc. Đặc điểm mẫu nhà này được thiết kế cao ráo, phần chân tường được ốp gạch vừa tăng tính thẩm mỹ vừa chống hiện tượng thấm nước, ẩm mốc.

Thiết kế nhà ngang 8m
Nhà cấp 4 ngang 8m hình chữ L với mái ngói màu đỏ đầy ấn tượng

Mẫu nhà cấp 4 diện tích 8x12m

Mẫu nhà cấp 4 này phù hợp để sắp đặt không gian bao gồm: 1 phòng khách, 1 phòng bếp cùng với phòng ăn và 2 phòng ngủ. Không gian này hoàn toàn thích hợp với những gia đình có hai vợ chồng và con nhỏ.

nhà cấp 4 hiện đại
Nhà cấp 4 ngang 8m diện tích 8x12m phù hợp cho gia đình nhỏ

Mẫu nhà cấp 4 diện tích 8x14m

Thêm một mẫu nhà cấp 4 diện tích 8x14m thiết kế theo hình chữ L được ưa chuộng nhất hiện nay. Điểm nhấn của căn nhà chính là thiết kế bởi các hình khối vững chắc, cứng rắn hợp với phần mái thái mềm mại, hiện đại tạo nên một tổng thể hài hòa và đẹp mắt. Kết hợp với không gian xanh phía trước ngôi nhà tạo nên cảm giác thư thái cho người dùng. Mặt bằng được bố trí đảm bảo các công năng tối đa phù hợp với những gia đình có từ 3 đến 5 thành viên.

nhà cấp 4 mái bằng ngang 8m
Nhà cấp 4 ngang 8m với diện tích 8x14m phù hợp cho mọi gia đình

Mẫu nhà cấp 4 diện tích 8x15m

Mẫu nhà này tận dụng lợi thế về chiều sâu để thiết kế và bài trí các không gian chức năng khác nhau. Bên cạnh các phòng cơ bản như phòng ngủ, phòng khách, phòng vệ sinh, phòng bếp bạn có thể bố trí linh hoạt các phòng chức năng khác như phòng làm việc, phòng thờ đều hợp lý.

Thiết kế nhà ngang 8m
Nhà cấp 4 ngang 8m diện tích 8x15m đơn giản với thiết kế Châu Âu

Mẫu nhà cấp 4 ngang 8m dài 16m

Tương tự như mẫu nhà cấp 4 ngang 8m dài 15m, mẫu nhà này cũng tận dụng tối đa lợi thế của chiều sâu để bố trí các phòng chức năng phù hợp với nhu cầu sử dụng của từng thành viên trong gia đình.

nhà cấp 4 mái bằng ngang 8m
Nhà cấp 4 ngang 8m với diện tích 8x16m với thiết kế mái bằng đơn giản

Mẫu nhà cấp 4 diện tích 8x20m rộng rãi

Với mẫu nhà cấp 4 diện tích 8x20m chủ nhân có thể thiết kế 2-3 phòng ngủ. Bên cạnh đó các phòng chức năng khác sẽ được nhà thiết kế cân nhắc tính toán và bố trí sao cho vừa đáp ứng tối đa công năng theo yêu cầu của khách hàng vừa đảm bảo tính thẩm mỹ cao nhất có thể.

nhà đẹp có sân vườn mái thái
Nhà cấp 4 ngang 8m diện tích 8x20m với sân vườn rộng rãi

Mẫu nhà cấp 4 ngang 8m 3 phòng ngủ

Thiết kế nhà ngang 8m cấp 4 phòng ngủ mẫu nhà lý tưởng phù hợp với nhu cầu sử dụng của nhiều gia đình hiện nay. Để có thể tiết kiệm tối đa chi phí đầu tư gia chủ nên lựa chọn những mẫu thiết kế nhà cấp 4 theo lối kiến trúc đơn giản, không gian bố trí hài hòa. Những hình khối được sắp xếp gọn gàng vẫn đảm bảo sự tinh tế nhằm toát lên vẻ đẹp sang trọng cho ngôi nhà.

nhà cấp 4 nhỏ có sân vườn
Nhà cấp 4 ngang 8m với 3 phòng ngủ

Mẫu nhà cấp 4 ngang 8m có gara đậu xe

Nếu bạn muốn sở hữu ngôi nhà cấp 4 ngang 8m kết hợp với Gara đậu xe tiện lợi và thẩm mỹ nên tham khảo ý kiến từ kiến trúc sư và các chuyên gia có nhiều kinh nghiệm trong lĩnh vực này để có được mẫu nhà ưng ý và đáp ứng đầy đủ nhu cầu của gia chủ.

Thiết kế nhà ngang 8m
Nhà cấp 4 ngang 8m có gara đậu xe tiện lợi và hiện đại

Mẫu nhà cấp 4 mái bằng sân vườn mặt tiền 8m

Mẫu nhà rộng 8m sân vườn rộng thoáng với lối đi 4m có thể đậu xe ô tô chia làm 2 gian với thiết kế so le. Công trình ghi điểm bởi khoảng vườn đầy màu sắc kết hợp hài hòa với tông màu sáng của ngoại thất ngôi nhà. Hệ thống cửa diện tích lớn tối ưu hóa việc lấy sáng cũng giúp nội thất bên trong sáng sủa, ấm cúng hơn.

Thiết kế nhà ngang 8m
Mẫu nhà cấp 4 mái bằng sân vườn mặt tiền 8m

Xem thêm: những mẫu nhà phố đẹp tại Thiết Kế Nhà 365

Gợi ý bản vẽ công năng cho thiết kế nhà cấp 4 ngang 8m tiện nghi

Bản vẽ thiết kế nhà ngang 8m 1 tầng

Gia chủ yêu cầu thiết kế nhà ngang 8m 1 tầng cấp 4 đầy đủ công năng, khoa học, sinh hoạt thuận tiện. Kiến trúc sư của Công Ty Thiết Kế Nhà 365 đã nghiên cứu và cho ra đời bản vẽ bố trí các khu vực chức năng như sau:

  • 1 Phòng khách
  • 3 Phòng ngủ: phòng ngủ master và 2 phòng ngủ cho bé
  • 1 Phòng bếp tách biệt khu vực ăn uống và nấu nướng
  • 1 Phòng thờ
  • 1 WC

Bản vẽ thiết kế nhà ngang 8m 1 tầng
Bản vẽ thiết kế nhà ngang 8m 1 tầng

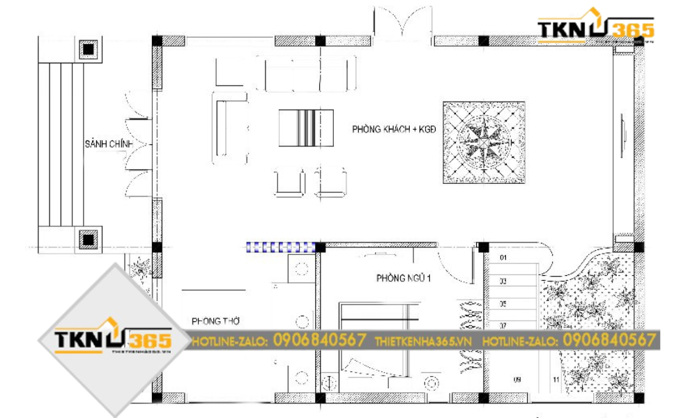
Bản vẽ nhà ngang 8m 2 tầng

Mẫu nhà ngang 8m bố trí công năng tầng trệt gồm 1 phòng ngủ, 1 phòng thờ, phòng khách rộng rãi chiếm khoảng 40% diện tích mặt sàn. Điểm nổi bật ở thiết kế này là tiền sảnh bề thế gây ấn tượng mạnh trước khi bạn bước chân vào phòng khách.

Bản vẽ tầng trệt nhà cấp 4 ngang 8m 2 tầng
Bản vẽ tầng trệt nhà ngang 8m 2 tầng

Không gian mặt bằng tầng 2 được kiến trúc sư bố trí khoa học, vừa đáp ứng được công năng sử dụng, vừa có khoảng không gian để các thành viên trong gia đình vui chơi, giải trí. Cụ thể, công năng mặt bằng tầng 2 gồm có: 3 phòng ngủ, 1 phòng WC, 1 khoảng không gian có diện tích vừa phải để làm sân chơi. Đây sẽ là nơi để các thành viên trong gia đình ngồi đọc sách, thưởng trà hoặc có thể trải nghiệm những bộ môn thể thao không đòi hỏi di chuyển quá nhiều.

Các không gian chức năng tại tầng 2 được bố trí cực kỳ khoa học; đảm bảo đáp ứng nhu sử dụng cơ bản và cả không gian vui chơi, giải trí. Cụ thể bao gồm: 1 khoảng không gian chung để các thành viên uống trà/ đọc sách/ quây quần bên nhau, ban công, 3 phòng ngủ, 1 WC.

Bản vẽ tầng 2 nhà cấp 4 ngang 8m
Bản vẽ tầng 2 nhà ngang 8m

Bản vẽ thiết kế nhà ngang 8m đẹp 3 tầng

Mặt bằng tầng trệt nhà ngang 8m được bố trí các khu vực chức năng gồm 1 phòng khách, 1 phòng bếp tích hợp phòng ăn, 1 WC. Sân vườn sau nhà có thể trồng hoa, làm vườn rau hoặc không gian cà phê, đọc sách, nghỉ ngơi.

Bản vẽ thiết kế tầng trệt nhà cấp 4 ngang 8m đẹp
Bản vẽ thiết kế tầng trệt nhà cấp 4 ngang 8m đẹp

Tầng 2 trong thiết kế nhà cấp 4 mặt tiền 8m gồm hai phòng ngủ có diện tích bằng nhau. Mỗi phòng đều có một khoảng ban công nhỏ để ngắm nhìn quan cảnh bên ngoài.

Bản vẽ thiết kế tầng 2 nhà cấp 4 ngang 8m đẹp
Bản vẽ thiết kế tầng 2 nhà cấp 4 ngang 8m đẹp

Tầng 3 gồm 1 phòng ngủ và 1 phòng thờ kết hợp sân thượng. Không gian mở rộng rãi tùy ý gia chủ bố trí làm sân phơi, khu vực nuôi thú cưng hoặc trồng cây hoa.

Bản vẽ thiết kế tầng 3 nhà cấp 4 ngang 8m đẹp
Bản vẽ thiết kế tầng 3 nhà cấp 4 ngang 8m đẹp

Kinh nghiệm xây nhà cấp 4 rộng 8m tiết kiệm chi phí

Chọn mẫu thiết kế đơn giản, phù hợp với ngân sách

Giải pháp hàng đầu để tiết kiệm chi phí xây nhà ngang 8m cấp 4 là chọn mẫu thiết kế phù hợp. Bản vẽ hài hòa, đảm bảo yếu tố thẩm mỹ và công năng là ưu tiên hàng đầu. Hãy bỏ qua mọi chi tiết rườm rà, cầu kỳ, thay vào đó là ứng dụng hình khối và đường nét tối giản không đòi hỏi kỹ thuật cao.

Lựa chọn vật tư xây nhà ngang 8m cấp 4

Gia chủ cần lựa chọn vật tư xây dựng nhà ngang 8m cấp 4 phù hợp để tối ưu hóa chi phí. Quý gia chủ có thể tự mua vật liệu thanh lý giảm giá, tìm kiếm đơn vị cung cấp lớn để được hưởng chiết khấu cao, mua lại vật tư thừa từ công trình lớn. Song song đó đừng quên kiểm tra chất lượng, hạn sử dụng để đảm bảo tính an toàn, bền bỉ của kiến trúc.

Thiết kế nội thất thông minh

Nếu gia chủ không muốn đầu tư quá nhiều ngân sách, hãy chỉ mua sắm những món đồ nội thất thật sự cần thiết. Sau này khi có điều kiện hơn, bạn có thể bổ sung dần dần. Bạn có thể cân nhắc những vật dụng nội thất thông minh, đồ dùng làm từ chất liệu thân thiện với môi trường.

Thiết kế nhà ngang 8m
Nhà cấp 4 với chiều ngang 8m với sân vườn rộng rãi, thoáng mát

Tìm đơn vị thiết kế xây dựng nhà ngang 8m uy tín, chất lượng

Một trong những đơn vị chuyên thiết kế và thi công nhà phố uy tín hàng đầu hiện nay chính là Công ty Thiết Kế Nhà 365. Khách hàng hợp tác với Công ty Thiết Kế Nhà 365 sẽ được đội ngũ nhân viên hỗ trợ và giúp đỡ tận tình từ khâu tư vấn, thiết kế bản vẽ đến thi công và hoàn thiện công trình.

Tất cả chi phí thi công đều được chúng tôi báo giá chi tiết trong hợp đồng, đảm bảo không phát sinh phụ phí giúp khách hàng yên tâm khi sử dụng dịch vụ tại chúng tôi.

Các mẫu thiết kế nhà đều được hoàn thiện bởi những kiến trúc sư, chuyên viên kỹ thuật và công nhân lành nghề, đảm bảo chất lượng và tiến độ theo đúng kế hoạch.

đội ngũ thiết kế và thi công xấy dựng Thiết Kế Nhà 365
Đội ngũ nhân viên tại Thiết Kế Nhà 365 luôn tận tâm để xây dựng ngôi nhà hoàn hảo cho khách hàng

Đặc biệt khách hàng khi lựa chọn dịch vụ xây nhà trọn gói tại Công ty Thiết Kế nhà 354 sẽ được miễn phí 100% chi phí thiết kế, giúp khách hàng tiết kiệm được một khoản tiền lớn khi xây dựng nhà.

Chúng tôi không ngừng cải tiến các trang thiết bị máy móc để phục vụ quá trình thi công, đem đến những công trình kiến trúc bền đẹp và mang tính thẩm mỹ nhất cho khách hàng.

Trên đây là toàn bộ những thông tin và các mẫu thiết kế nhà ngang 8m hiện đại được ưa chuộng hàng đầu hiện nay để bạn tham khảo. Nếu có nhu cầu được tư vấn xây dựng nhà hãy liên hệ đến Công ty Thiết Kế Nhà 365 để được nhân viên của chúng tôi tư vấn tận tình nhất!

Công Ty TNHH Thiết Kế Nhà 365

  • Địa chỉ office: 294 Lê Trọng Tấn, Phường Tây Thạnh, Quận Tân Phú, Thành Phố Hồ Chí Minh
  • Email: thietkenha365@gmail.com
  • Số điện thoại: 0906840567 – Mr. Thắng
  • Website: https://demo.thietkenha365.vn/

Hoàng Đức Thắng

Hoàng Đức Thắng là kiến trúc sư đồng thời là CEO của Công ty Thiết Kế Nhà 365, tôi luôn cập nhật những xu hướng mới nhất trong lĩnh vực xây dựng, kiến trúc và nội thất để mang đến cho bạn đọc những thông tin bổ ích nhất. Tôi luôn sẵn sàng chia sẻ những kinh nghiệm của mình để giúp bạn đọc có thể xây dựng được những ngôi nhà không chỉ đẹp mà còn hoàn hảo về mọi mặt.
Hoàng Đức Thắng – CEO của Công ty TNHH Thiết Kế Nhà 365

HẸN GẶP SAU 1H

Trực tiếp với chuyên gia

Gọi: 0906.840.567

(Mr. Thắng)

NHẬN TƯ VẤN MIỄN PHÍ

Trao đổi trực tiếp với KTS 10 năm kinh nghiệm.

Nhận thiết kế và thi công nhà ở khu vực miền Nam





    Gợi ý viết yêu cầu: bạn cần sửa nhà hay xây mới, diện tích bao nhiêu, ngân sách dự kiến,...

    ĐỂ THÔNG TIN NHẬN TƯ VẤN NGAY





      Gợi ý viết yêu cầu: bạn cần sửa nhà hay xây mới, diện tích bao nhiêu, ngân sách dự kiến,...