Nhà có diện tích 3x12m thường gặp ở những thành phố lớn như TPHCM. Thiết Kế Nhà 365 đã nhận được nhiều inbox xin tư vấn về thiết kế nhà ống 3x12m. Vì vậy, trong bài viết này, chúng tôi sẽ mang đến gợi ý những mẫu thiết kế nhà ống tiện nghi cho khách hàng muốn xây nhà có diện tích nhỏ như trên.
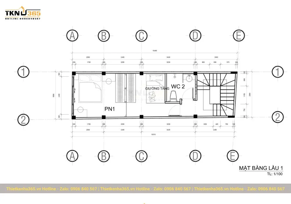
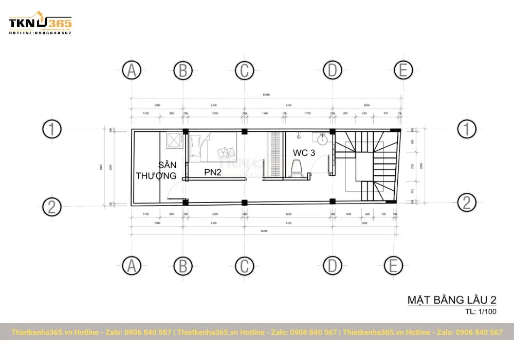
Mặt bằng công năng mẫu nhà ống 3x12m
Mặt bằng công năng mẫu thiết kế nhà ống 3x12m được tối ưu không gian giữa các tầng. Tầng trệt có sân rộng, phòng khách kết nối với phòng bếp ăn thoáng đãng và nhà vệ sinh tiện lợi. Tầng 1 bao gồm phòng ngủ thoải mái và một nhà vệ sinh tiện nghi. Tầng 2 cung cấp thêm một phòng ngủ, nhà vệ sinh và sân thượng tạo không gian thư giãn và tiếp xúc với không khí tự nhiên.



Tham khảo: 60+ Mẫu nhà ống 2 tầng mái thái mặt tiền 5m đẹp ấn tượng
Mẫu nội thất cho nhà ống nhỏ 3x12m phong cách hiện đại
Mẫu nội thất cho nhà ống nhỏ 3x12m phong cách hiện đại có thiết kế tối giản và tiện nghi. Sự sắp xếp thông minh của các đồ nội thất, sử dụng màu sắc tươi sáng và các vật liệu hiện đại như gỗ, kim loại và kính tạo nên không gian mở rộng và thoải mái. Đồ nội thất được chọn lựa cẩn thận để tối ưu hóa không gian và tạo điểm nhấn thẩm mỹ, phản ánh phong cách sống hiện đại và tiện ích.






Tham khảo: 50+ Mẫu nhà 2 tầng chữ L 100m2 hiện đại tiện nghi nhất
Tuyển chọn các mẫu ngoại thất nhà nhỏ 3x12m đa dạng tầng lầu
Mẫu ngoại thất cho nhà nhỏ 3x12m với 5 tầng tại quận 12 nổi bật với thiết kế hiện đại và tối ưu hóa không gian. Sân thượng ở tầng trên mang đến không gian tận hưởng riêng tư và thoải mái. Thiết kế đơn giản nhưng đầy đủ tiện nghi, tạo nên không gian sống đa chiều và tiện lợi.

Mẫu ngoại thất cho nhà nhỏ 3x12m 3 tầng của anh Minh tại quận 2 phản ánh sự sáng tạo và tính hiện đại. Thiết kế thông minh tối ưu hóa không gian, kết hợp với vật liệu và gam màu sáng, tạo nên không gian sống đẳng cấp. Mỗi chi tiết ngoại thất được thiết kế kỹ lưỡng và sắp xếp hợp lý.

Mẫu ngoại thất cho nhà nhỏ 3x12m với tông màu trắng và xám tinh tế tạo nên không gian thanh lịch và sang trọng. Sự kết hợp của hai gam màu này tạo điểm nhấn tinh tế, làm nổi bật các đường nét kiến trúc và chi tiết thiết kế. Mỗi yếu tố trong ngoại thất được chăm chút kỹ lưỡng mang đến không gian nghỉ ngơi và thư giãn lý tưởng cho gia đình.

Mẫu thiết kế nhà ống 3x12m của nhà anh Tuấn tuy đơn giản nhưng tinh tế. Mỗi chi tiết được thiết kế sao cho tối ưu hóa không gian và tạo ra một môi trường sống tiện ích. Sân thượng là một không gian xanh mát với vườn cây, phù hợp để gia đình thư giãn và tụ tập.

Mẫu thiết kế nhà phố 3x12m sang trọng với hệ thống nhiều cửa sổ tạo điểm nhấn cho không gian. Các cửa sổ được bố trí thông minh, tạo cảm giác thoáng đãng và rộng rãi. Sự hiện đại và sang trọng được tôn lên thông qua mỗi chi tiết của thiết kế.

Mẫu thiết kế nhà ống 3x12m mặt phố với sân thượng là điểm nhấn tươi mới của không gian sống. Cây xanh được trồng trên ban công và sân thượng không chỉ tạo không gian xanh mát mà còn làm dịu đi không khí thành phố. Sự kết hợp giữa không gian xanh và kiến trúc hiện đại tạo nên một môi trường sống gần gũi với thiên nhiên và thoải mái.

Mẫu thiết kế nhà phố 3x12m hiện đại của chú Hùng ở quận 7 thể hiện sự sáng tạo và tính thẩm mỹ cao. Kiến trúc hiện đại kết hợp với màu sắc tinh tế và đường nét mềm mại, tạo nên một không gian sống đẳng cấp. Mỗi chi tiết được chăm chút, từ phần nội thất đến hệ thống ánh sáng, tạo ra một môi trường sống thoáng đãng và đầy đủ tiện ích.

Mẫu thiết kế nhà ống 3x12m đẹp, sang trọng của chị Tú tại Gò Vấp thể hiện sự kết hợp hài hòa giữa kiến trúc hiện đại và đẳng cấp. Mỗi chi tiết được chọn lựa kỹ lưỡng, từ lối vào đến không gian nội thất, tạo nên một không gian sống tiện nghi. Sự chăm chút đến từng chi tiết thiết kế phản ánh sự tinh tế và gu thẩm mỹ của gia chủ.

Trong bài viết này, chúng ta đã khám phá các mẫu thiết kế nhà ống 3x12m đa tầng, mang lại không gian sống tiện nghi và hiện đại cho gia đình. Với sự sáng tạo và tính thẩm mỹ, các mẫu nhà hiện đại này không chỉ tối ưu hóa không gian mà còn phản ánh phong cách và cá tính riêng của chủ nhân. Nếu bạn cần tư vấn thêm về thiết kế và thi công nhà ống 3x12m, hãy liên hệ với Thiết Kế Nhà 365 theo thông tin dưới đây!









